查看完整案例


收藏

下载
爱与梦是括弧的两端,
我把我的身体置于中间,
以此,我认识世界。
我的愿望是玫瑰,
点缀着我的岁月。
——阿多尼斯《时光的皱纹》
具有前卫特色并与传统文艺分道扬镳的各种文艺流派和思潮,又称现代派。它曾倾向于效率与实用,但绝对的实用主义让人与人之间的关系变得冷漠与孤僻。
在时代步履匆忙不停的时刻,家除了要构建功能空间,更要满足灵魂深处的渴求。现代风格与传统文艺在心灵需求的撮合下,完美融合,赋予空间更多秩序感和仪式感,带来艺术的共生与灵魂的共鸣,让岁月温暖了诗意栖居。
01
客厅与餐厅相通,光线充足的空间开放疏阔。一抹淡雅的橙色,自由穿梭于沉稳与灵动之间,演绎气质优雅的现代生活美学。
现代风格的家具排布节奏轻快、灵动,点润日常生活的理想场景。
精
神仅限于想象和认知,不囿于方寸
。
主卧的墙上,是吴冠中先生的水墨画《水乡周庄》。在简单的色彩与线条的勾勒中,吴冠中先生创造性地将西方的形式美与中国传统审美中的意境美进行有机结合,勾勒出富有节奏和韵律的形式架构,沉淀出安逸静谧的空间氛围。
低饱和色度空间氛围和意识形态装饰作品之间的巧妙兼柔,结合灯光的映射,为客卧增添了几分雅致柔情。
男孩的房间,充满童趣与想象。简单几何造型与饱和的黄色,塑造出充满阳光与乐趣的童年。
02
人只有“存在”才能体会细水长流,而“存在”需要参照和投射。空间将现代艺术风格与现代品质生活自然融合,诠释着现代艺术美学的生活理念。
黑、白、红三色,几乎是不可复制的经典。黑白能够低调地衬托出红色的时尚感,而优雅的红色给予黑白别样的活力,三种颜色撞击出绝妙的化学反应。
主卧在兼顾浅灰色的基础上,赋予红色更多可供解读的余地。
墙上的《太湖泊舟》,是现代生活里的人们对悠然生活的渴望与向往:简单的水墨线条,在小桥流水里把生活的节奏放缓,慢慢将梦沉静。
客卧则使用了更为淡雅的色彩。简洁有序的空间布局,暗隐内涵沉稳之气度。简洁到不掺杂一丝冗余的块面,意味着居住者内心的充盈和从容。
女孩的房间是俏皮可爱的毛绒感。重复的圆点元素在房间里塑造出属于儿童特别的艺术感,它们像是来自宇宙的和自然的信号,就像草间弥生说的:“地球也不过只是百万个圆点中的一个”。
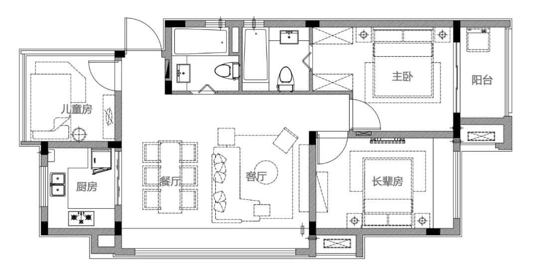
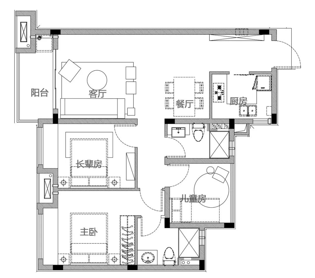
平面图▼
项目名称 | 珠海·宝龙金湾样板房1
业主信息 | 宝龙地产
项目地点 | 广东省珠海市
项目面积 | 89㎡
完成时间 | 2020年8月
业主设计团队 | 王育昆 何龙平
设计单位 | 厦门市漪天装饰设计有限公司
设计团队 | 林艺芬 吴舒兰 何丹
项目名称 | 珠海·宝龙金湾样板房2
业主信息 | 宝龙地产
项目地点 | 广东省珠海市
项目面积 | 87㎡
完成时间 | 2020年8月
业主设计团队 | 王育昆 何龙平
软装单位 | 厦门市漪天装饰设计有限公司
软装团队 | 林艺芬 吴
舒兰 蔡珊妮
关于我们
设计 | 软装 | 生活态度
客服
消息
收藏
下载
最近

























