查看完整案例


收藏

下载

翻译
ソース: АrсhDаilу
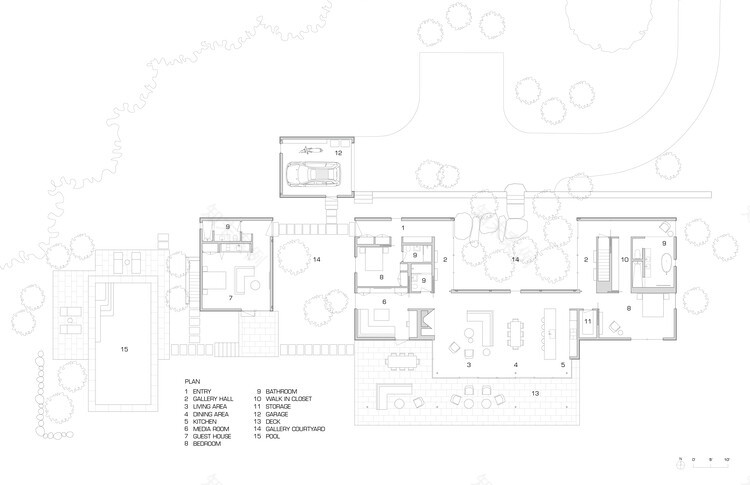
Roxbury House / Desai Chia Architecture
建築家が提供するテキストによる説明。 Roxbury House は、アートと風景を親密で幅広い瞬間に融合させます。 この家は、12 エーカーの敷地の端にある丘の上に位置し、戦略的に卓越風を利用して自然の換気を行い、敷地内の乱れを最小限に抑え、既存の開けた牧草地と森林が地元の野生生物と在来の植生をサポートできるようにします。 起伏のある屋根とその深い張り出しは、1 日のさまざまな時間帯に同時に日光を取り込み、風景の景色を構成すると同時に、直射光と太陽熱の増加を減らします。 一連のレイン ガーデンと貯水池による雨水の管理により、急峻な地形に沿った侵食が緩和されます。
ラテン系アーティストによる現代美術を専門とするアート ギャラリーのオーナーであるクライアントは、自宅をニューヨークのギャラリーの延長として使用し、サイトの一部をサイト固有の屋外インスタレーション用に開いたままにしておく柔軟性を求めていました。 建築家は、クライアントの敷地からそう遠くない場所にあるアレクサンダー カルダーの邸宅に着想を得ました。 Calder の家とスタジオはなだらかな牧草地の頂上にあります。 牧草地はカルダーの野外ワークショップとなり、彼の多数の大規模な彫刻を展示する有機的なキャンバスになりました。
Roxbury House では、屋内空間と屋外の中庭がさまざまなスケールで振動し、家の中の長い軸方向の景色を眺めることができます。部屋を素材と光の美しい層で結び付けながら、風景の遠景で最高潮に達します。
中庭に埋め込まれた自生の白樺の木が、周囲の森と芸術体験を結びつけています。 廊下はギャラリーの壁として機能します。 床から天井までの窓に隣接し、中庭を囲んでいます。
家の外装は、木材を焦がす日本の伝統的な方法である「松杉板」で覆われており、ファサードを腐敗させにくく、虫を寄せ付けず、メンテナンスフリーにしています。 内部では、寿杉板の壁と天井は、アーチ型の空間に落ち着いた色と質感を与えるために、より軽い炭化レベルを持っています.
地元の職人技への敬意は、木工要素のインテリアのディテールに表現されています。 ビルトインの玄関ベンチ、キッチンとバスルームのキャビネット、メディア ルームのデスク、ベッドルームの棚は、機能的かつ彫刻的です。 隠された線形のアクセント照明は、カビーの後ろを覆う陽極酸化アルミニウムを横切って光をかき集めます. メディア ルームのデスクでは、建築家は木工職人と協力して木目にワイヤー ブラシをかけました。針葉樹の素材はブラシで払い落とされ、硬い木目が浮き上がった起伏のある表面として現れ、木の質感の美しさが際立っています。
リビングルームの暖炉は、大きな磁器パネルで覆われており、光と影を捉えるためにカットされた形になっています. バスルームとギャラリーの廊下にある艶をかけられた壁のタイルは、一日を通して刺激的な方法で空間全体に日光を反射します. 廊下のタイルはメキシコで手作りされ、アートワークの触覚的な背景を作り出しています。
ガレージの屋根には太陽光発電アレイが設置されており、停電時に所有者の電気自動車を充電し、家を動かすのに十分な電力を供給します。
ソース: АrсhDаilу
客服
消息
收藏
下载
最近













