查看完整案例


收藏

下载

翻译
N3315 Коммерческие объекты / Joh Sungwook Architects
Изображение зданий в Каннаме, Сеул, высокое и имеет огромные блоки, обращенные к бульвару. С другой стороны, если вы сделаете шаг внутрь с главной улицы, вы можете столкнуться с зданиями человеческого масштаба в плотной городской застройке, примыкающей к проселочной дороге. Цель этого проекта — создать здание, в котором жильцы смогут поддерживать баланс между работой и отдыхом.
Начиная с куба с максимальным объемом на данном участке, здание строится путем разборки массы на части и их непрерывного складывания. Фрагментированные куски располагаются в шахматном порядке слой за слоем, но направление внешнего пространства формируется для каждого слоя по-разному. Поэтому спонтанно создаются террасы разной ширины, длины и направления. Внешнее пространство расширяет внутреннее пространство наружу и обеспечивает достаточно места в ограниченном рабочем пространстве.
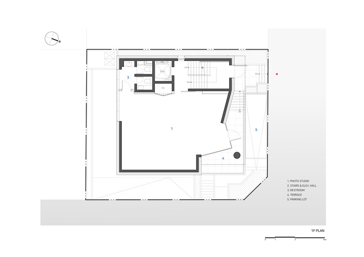
Участок, примыкающий к крутой дороге, создает перепад высот в один этаж между северной и восточной дорогой. Расположенный на пересечении дороги, первый цокольный этаж напоминает цокольный этаж. Естественный свет проникает вглубь второго цокольного этажа через расположенный в углу сад. Расположенный в многофункциональном районе, окна расположены в направлении сохранения конфиденциальности, а кирпичный рисунок фасада спроектирован так, чтобы блокировать вид на жилые районы.
Архитектура всегда трансформируется в соответствии с ценностями, преследуемыми обществом. В отличие от эпохи, когда были важны только экономичность и эффективность, современность требует приятных условий труда и комфорта не меньше, чем среды обитания. Поскольку архитектура размещается на сайте, образ, который она создает, очень важен. «N3315» станет пространством, где будут удовлетворены эти различные социальные потребности.
Источник: АrсhDаilу
客服
消息
收藏
下载
最近













