查看完整案例


收藏

下载

翻译
Solo Arquitetos designed a modern and welcoming space for their offices in Curitiba, Brazil.
For every company, moving to a new office is always an opportunity to rethink not only the workspace itself, but also the company’s culture, processes and even its branding. For us, it was no different.
After five years in our old office, and seven years since foundation, we decided it was time to move to a new space. A space aligned with our current architectural production, capable of embracing the company’s growth in the coming years, and that could offer more comfort to our team and customers.
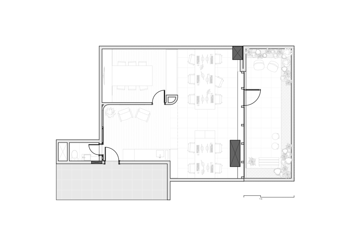
After that, the main challenge was to pratically solve the office plan. The square-shaped room, with a large pillar displaced on its facade, made it difficult to insert all the spaces we needed. The initial program included: reception, kitchen, private meeting room and the workspace – all that with plenty of storage area for all the samples and documents of an architectural firm.
Therefore, our option was to merge reception and pantry in a single space, isolating the meeting room in the inner corner of the plan, and concentrating the entire work area next to the glass facade. By doing that, all spaces benefit to some extent from the natural light and the look of the garden that we’ve created in the patio, bringing the green of the plants to the composition of the project’s materials.
These two major areas, reception and work, were also defined by a change in ceiling height, created through the elevated-floor next to the entrance to the room (building standard) and a lowered drywall ceiling in the same region. Thus, creating a more intimate space for receiving customers and suppliers, which is also marked by the engineered parquetry made of Cumaru wood. Together with a more expressive and relaxed area for the development of new projects, marked by the exposed upper slab and the cladding in black pigmented concrete slats on the pillar.
Design: Solo Arquitetos
Photography: Eduardo Macarios
9 Images | expand for additional detail
客服
消息
收藏
下载
最近











