查看完整案例


收藏

下载
O.F.D.A. associates建筑事务所的日本建筑师坂牛卓设计了一座充满活力、魅力四射的办公楼,它将作为当地商业社区的一个集合点。该项目在日本的茨城县,建筑因其与众不同的橙色表皮而成为当地的一个标志。在整个城市的建筑中,这座鲜艳的橙色建筑就像一座灯塔,照亮城市的天际线。
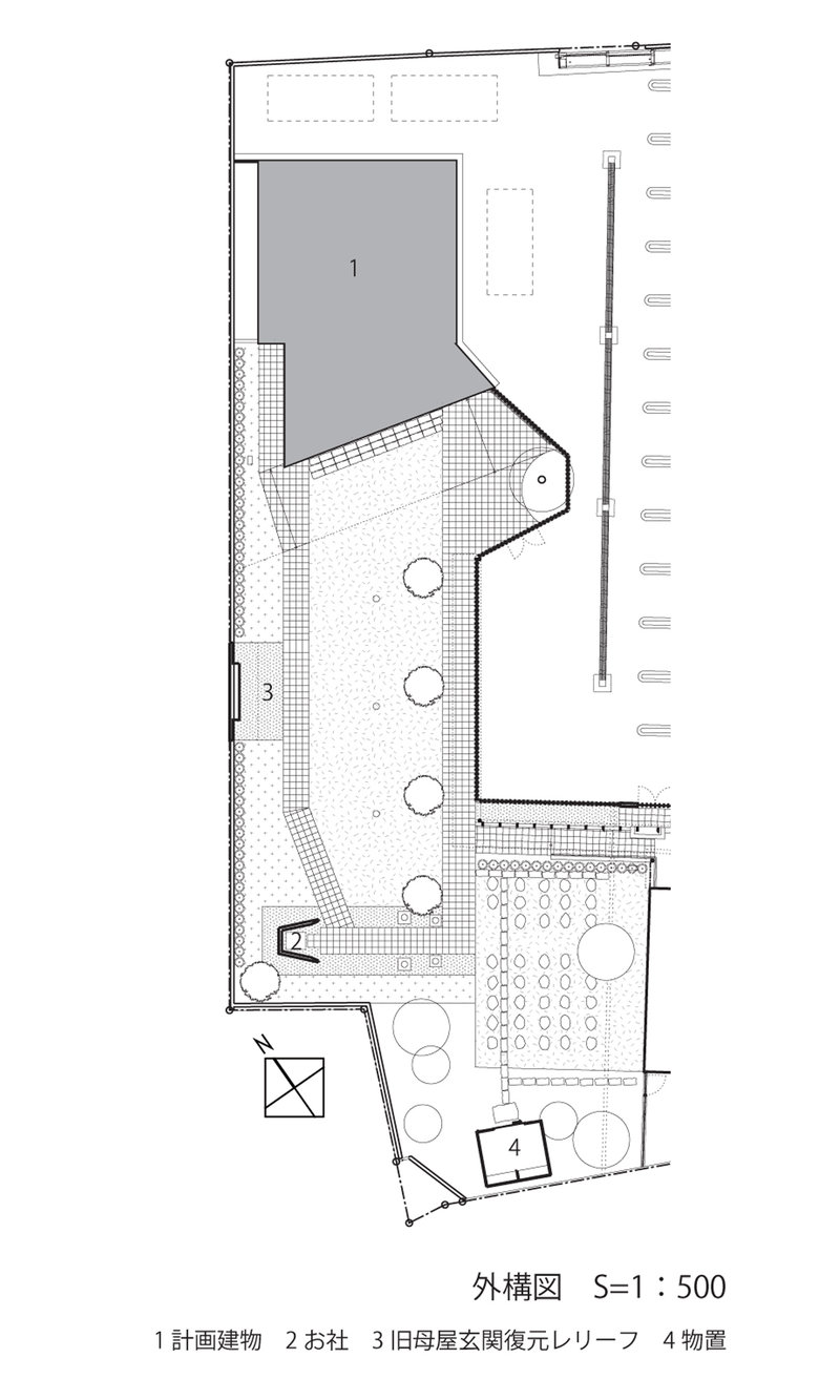
↑与众不同的橙色表皮让建筑成为该城市的标志 在一开始,业主需要一个封闭的仓库式的建筑,后来经过设计团队的说服,一个开放宽敞的建筑更能满足业主的需求。建筑入口毗邻一个长长的花园,这个郁郁葱葱的花园这为建筑的一层创造了一种生动的、充满活力的环境空间。
↑建筑入口毗邻一个长长的郁郁葱葱的花园 在一层还提供了一个开放的会议空间,而花园则作为一个公共长廊,并装点有从业主老家运来的小型神社和滴水嘴兽,散步其中,让人心静如水。当你穿行于场地中,全景开口的的入口会带来不断变换的视觉体验,让建筑物始终保持一种神秘感。
↑花园则作为一个公共长廊,并装点有从业主老家运来的小型神社和滴水嘴兽
↑当你穿行于场地中,全景开口的的入口会带来不断变换的视觉体验
↑一层的会议空间
↑两层高的建筑包含办公空间
↑立面细节
↑封闭的立面朝向行人街道
↑灯光璀璨的建筑全景
↑总平面图
↑底层平面图
↑二层平面图
↑立面图
地点:日本茨城县 用途:办公 用地面积: 819.71平方米 建筑面积: 103.95平方米 各层总面积:115.02平方米 结构:金箱结构设计事务所 施工:关东建设工业株式会社 摄影:上田宏
翻译:##-吕鼎胜
···*
客服
消息
收藏
下载
最近
































