查看完整案例


收藏

下载
概念
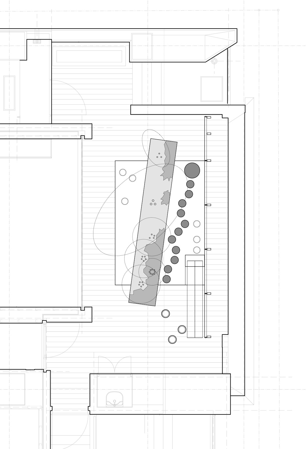
办公大楼的阁楼建成的屋顶花园,融合了在庭院造中采用的造景设计。
业主要求满足从室内看出去能掩盖对面的高楼,创造愉快的绿色空间。
植物组团以抽象化了花的模式结合水珠图案的钢墙设计。在灯光效果下,不远处的植栽帯翠玉的光映。
近处的植栽在枫树。低木地被类山野草、苔藓等日本土种的植栽,打造空气感雾喷的小雾林视觉。
竣工2009 -11
规模约24 m2
一番町弘和ビル屋上庭園
詳細情報
コンセプト
オフィスビルのペントハウスにつくられたゲストルームの庭園デザインである。
室内から外を見ると、隣接するビル屋上の機械設備などが目に入る都心の殺伐とした景色を隠す事と心地よい緑の空間をつくる事が、オーナーの要望であった。
緑の背景として、花を抽象化したパターンの穴あきの耐候性鋼の壁をデザインした。水玉模様の花のパターンからは光が差し込み、手前の植栽帯に水玉の光をおとす。
手前の植栽はモミジやツリバナ、ヨウゾメによるミニチュアの林をつくりだした。低木地被類には山野草や苔など日本の在来種の植栽を植え、ドリッピングパイプに仕込んだ小さな霧の噴水が林の冷たい空気で屋上に別世界をつくりだす。
竣工2009-11
規模約24m2
住所千代田区一番町
内容実施設計、設計監理協力
担当戸田知佐、野田亜木子
施主弘和ビル
共働建築、構造、設備:松田平田設計
客服
消息
收藏
下载
最近






















