查看完整案例


收藏

下载
在福岛市的一个安静的居民区附近,日本建筑师石川淳已经完成了一栋两层楼的住宅,即使从其他高层建筑物向下俯瞰也可以很好地保护住户的隐私。该住宅被命名为“箱型住宅6号,突出的钢制狭长水平带窗是这座住宅的特色,它的长度横跨了住宅的整个正立面,而天井则为该住宅的其他区域提供自然采光。
↑突出的钢制狭长水平带窗是这座住宅的特色,它的长度为正立面开间的尺寸 室内的空间布局有两个主要的楼层和一个夹层。首层包括一个两层通高的主卧室和各种存储空间,而儿童房则布置在其正上方。家庭的起居室布置在该住宅的最顶层,包括一个屋顶露台和一个毗邻露台的开放式厨房和用餐区。
↑住宅主入口
↑家庭的起居室布置在该住宅的最顶层
↑毗邻露台的开放式厨房和用餐区
↑在儿童房之间的一个小秋千
↑开放式交通路线贯穿于整个住宅有助于采光
↑小天井为首层的客房提供采光
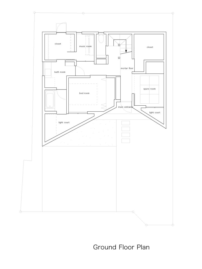
↑首层平面图
↑夹层平面图
↑二层平面图
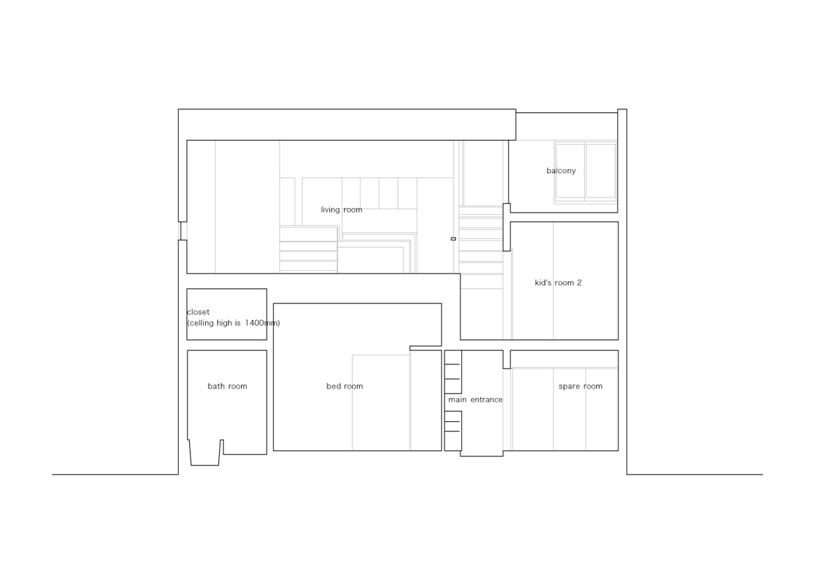
↑剖面图 翻译:##-张婵,曾辉鹏
···*
客服
消息
收藏
下载
最近














