查看完整案例


收藏

下载
由日本的柄沢祐辅建筑设计事务所设计的“S-house”住宅坐落于埼玉县大宫站附近,这座住宅代表了如今在我们网络生活常常同时出现的多样性和秩序性。住宅中部有一个垂直交通系统,将平面分割成相向的两个各50平方米的平台,并且在住宅的中心交织在一起。
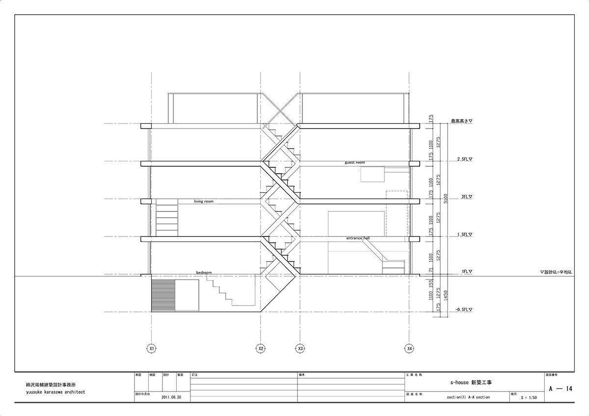
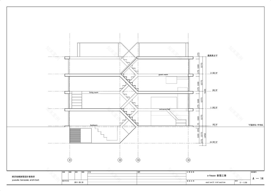
整个设计看起来只是简单的平板堆叠,但实际上则是一组错综复杂的平面网络,沿对角线互相相交,最终产生了一条从地下室贯通到屋顶平台的复杂流线。在楼板之间,逐层偏移的通高空间进一步增加了住宅的复杂性,同时也为住住宅提供了附加功能。
↑侧面透视图 地面以上每一层的外立面都由落地玻璃覆盖,以此强化平板堆叠的结构概念,并为住宅内部提供充足的自然光线和广阔的视野。私密活动也因此被安排在了下方全封闭的体量中,这也作为首层平面成为建筑的入口。
↑对角面和楼梯的相互交错成为中心交通系统的特点
↑内部空间
↑互相偏移的平面在每层与夹层之间创造了富有活力的联系
↑垂直交通系统
↑沟通每层之间复杂的楼梯路径
↑厨房空间
↑屋顶平台
↑夜色中的“S住宅”
↑住宅夜景正视图
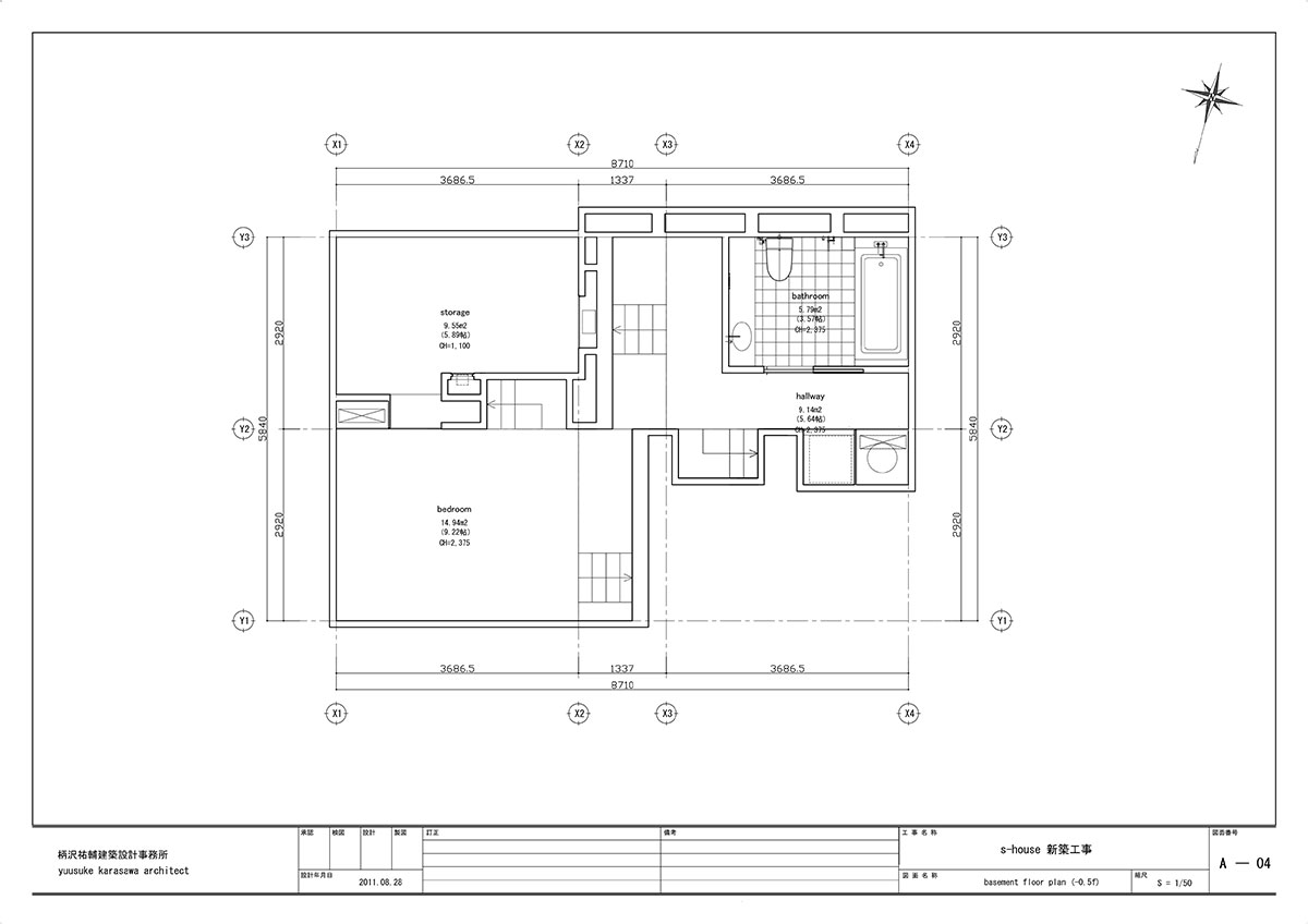
↑地下半层平面图
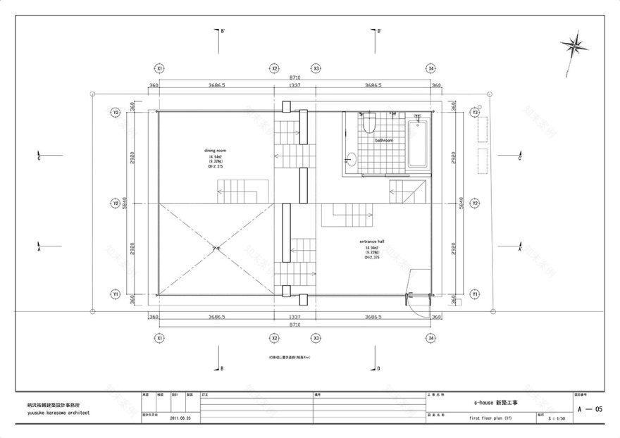
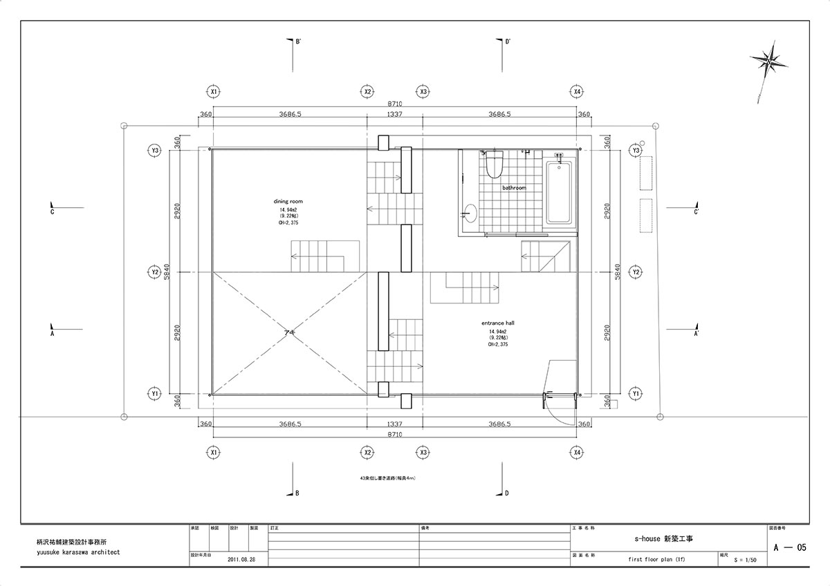
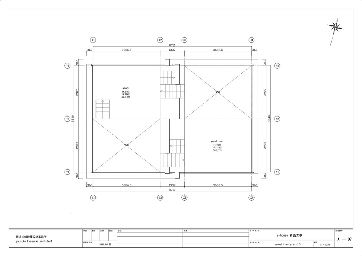
↑二层平面图
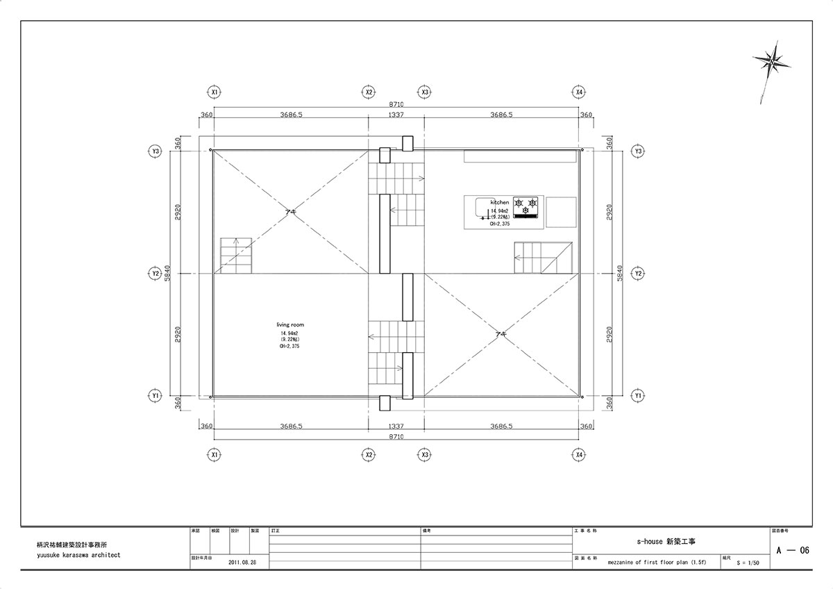
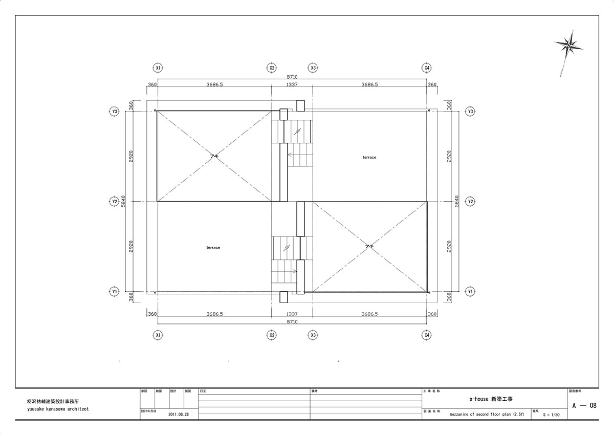
↑二层夹层平面图
↑三层平面图
↑三层夹层平面图
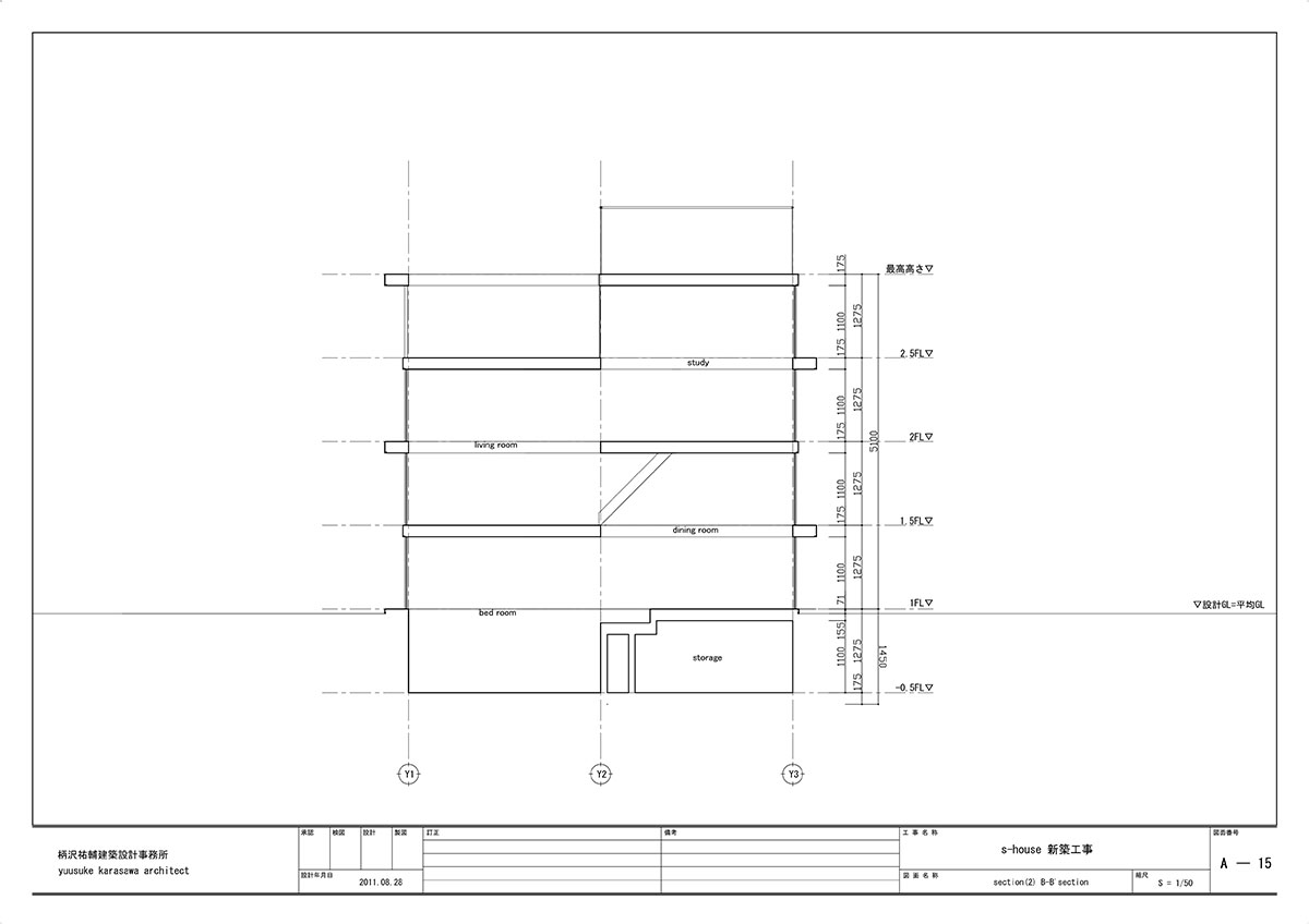
↑剖面图
↑剖面图
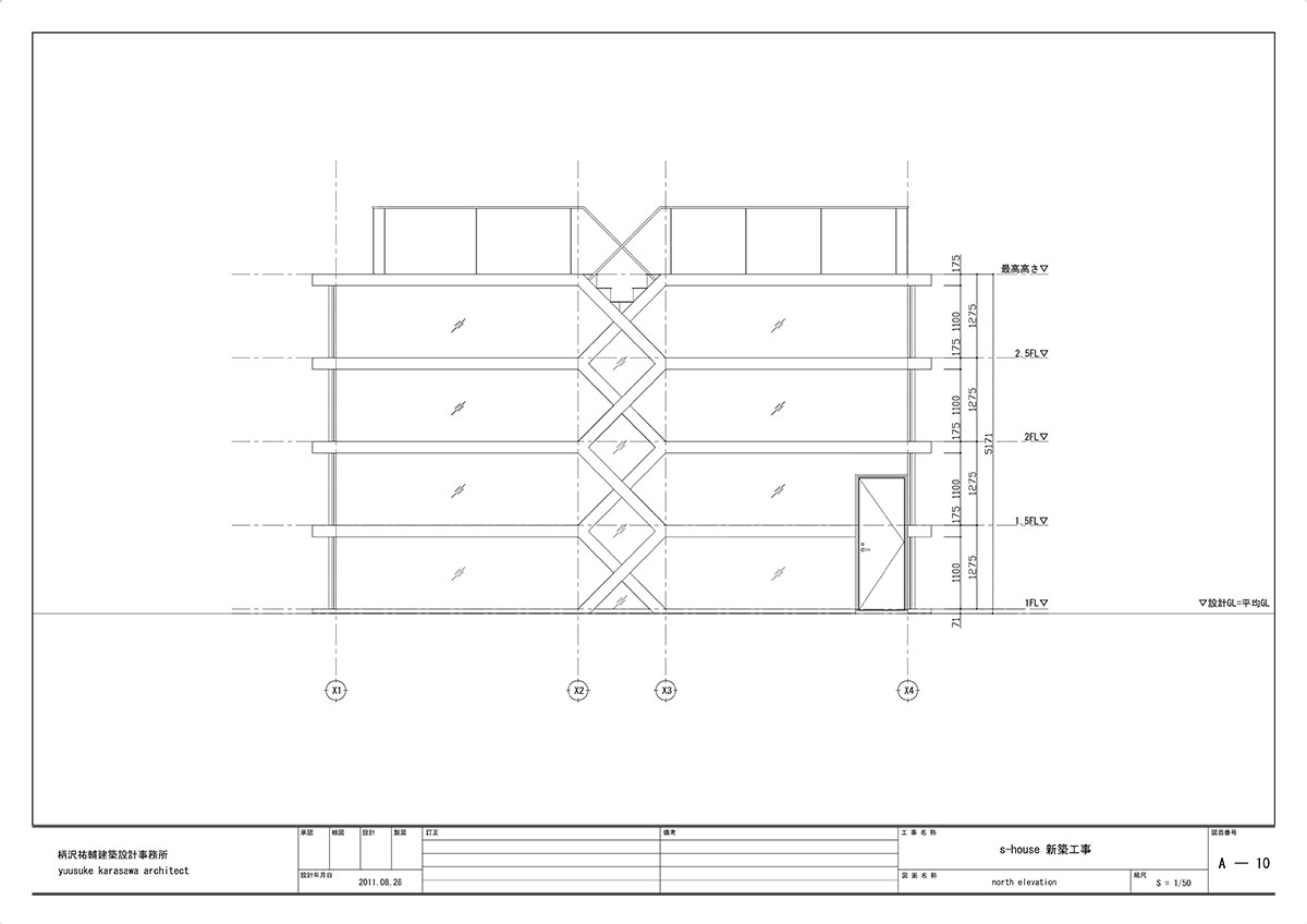
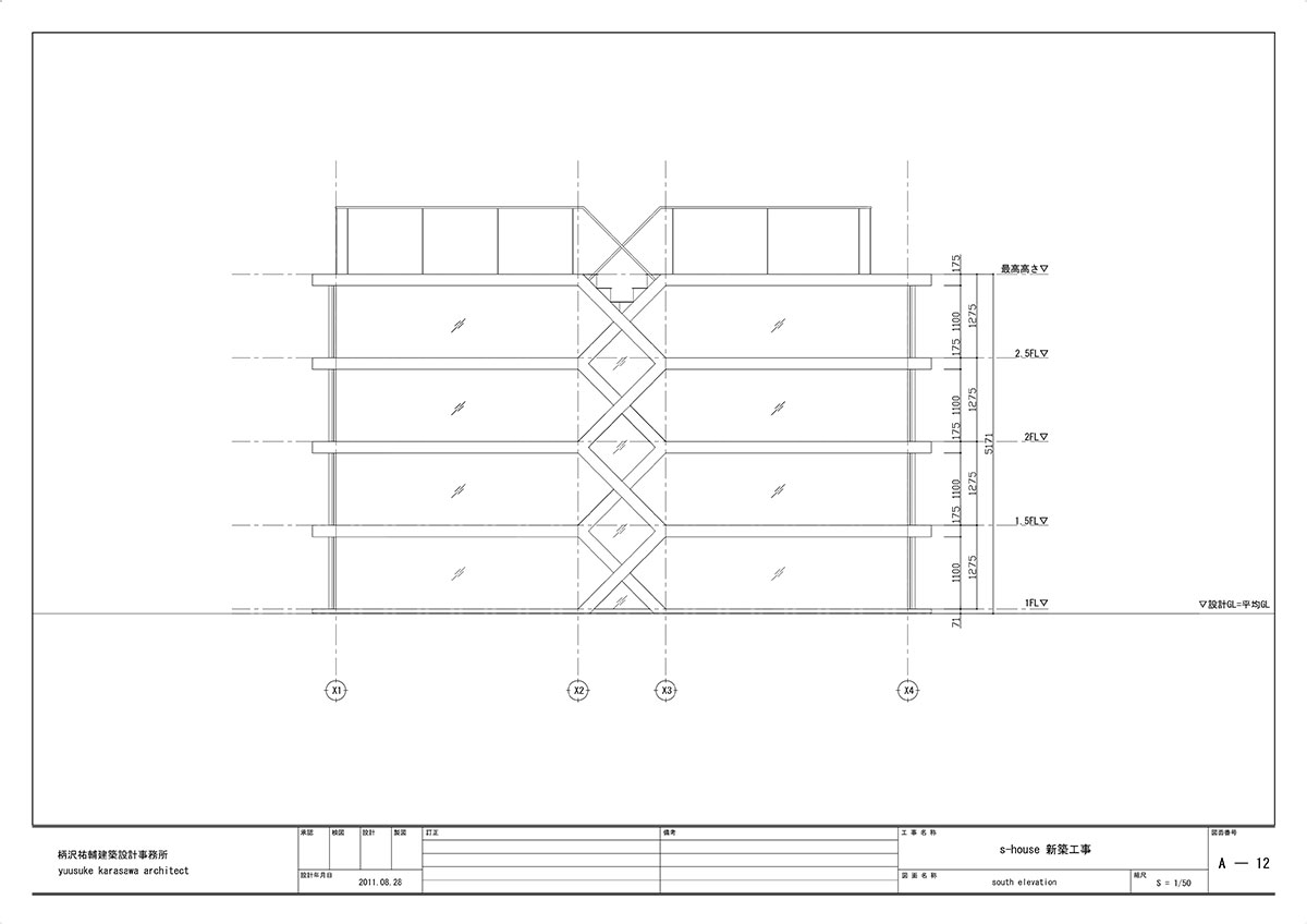
↑立面图
↑立面图
↑立面图
↑立面图
地点:日本,埼玉县,大宫站 层数:2层 建筑师:柄沢祐辅建筑设计事务所(柄沢祐辅作为项目负责人) 顾问:structured environment—alan burden,hiroaki inukai,structural 主要承建商:o’hara architectural and construction,ltd—akira ohara,satoshi kikuch 结构体系:钢制框架 使用材料:外部:钢板,着色含氟聚合物,陶瓷砖;内部:石膏板,乳胶漆,橡木地板,麻地毯 用地面积:89.46平方米 建筑占地面积:51.88平方米 总建筑面积:103.76平方米 建筑密度:57.99% 容积率:1.11598 设计时间:2010年至2011年 建造时间:2012年至2013年 摄影:Koichi Torimura 翻译:##-吴俊熹
···
客服
消息
收藏
下载
最近



































