查看完整案例


收藏

下载
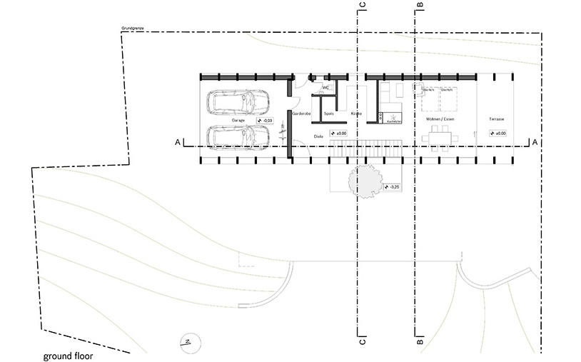
“G住宅”是由HPSA建筑事务所设计的,位于奥地利的北部。那是一个安静祥和的地方,连绵的山丘伴随着蔚蓝的天空。
↑整齐列阵的木质结构 为了遵循传统的建筑形式,工作室设计了一座人字形屋顶的住宅。在场地范围内延伸的形式将体量分成两部分。一部分是木结构的开放式生活休闲区,家人可以在这里享受朋友的温暖陪伴。另外一部分是地下室的休息区,阳光可以通过内部的庭院照射进来。
↑(左边)悬浮楼梯 (右边)浴室 木质薄片状的柱子提供了隐私保护,遮挡了周边望向室内的视线,但是并没有遮挡从室内望向周围丘陵的良好视野。此外,住宅中心悬浮的楼梯与其他部分的材质一致,光线可以透过小庭院垂直地照进下层浴室。
↑楼梯的构造细节
↑客厅室内设计
↑望向山坡
↑从旁边的大场地的角度看向住宅
↑外视图
↑晚间的背光结构
翻译:##-杨海洲
···
客服
消息
收藏
下载
最近













