查看完整案例


收藏

下载
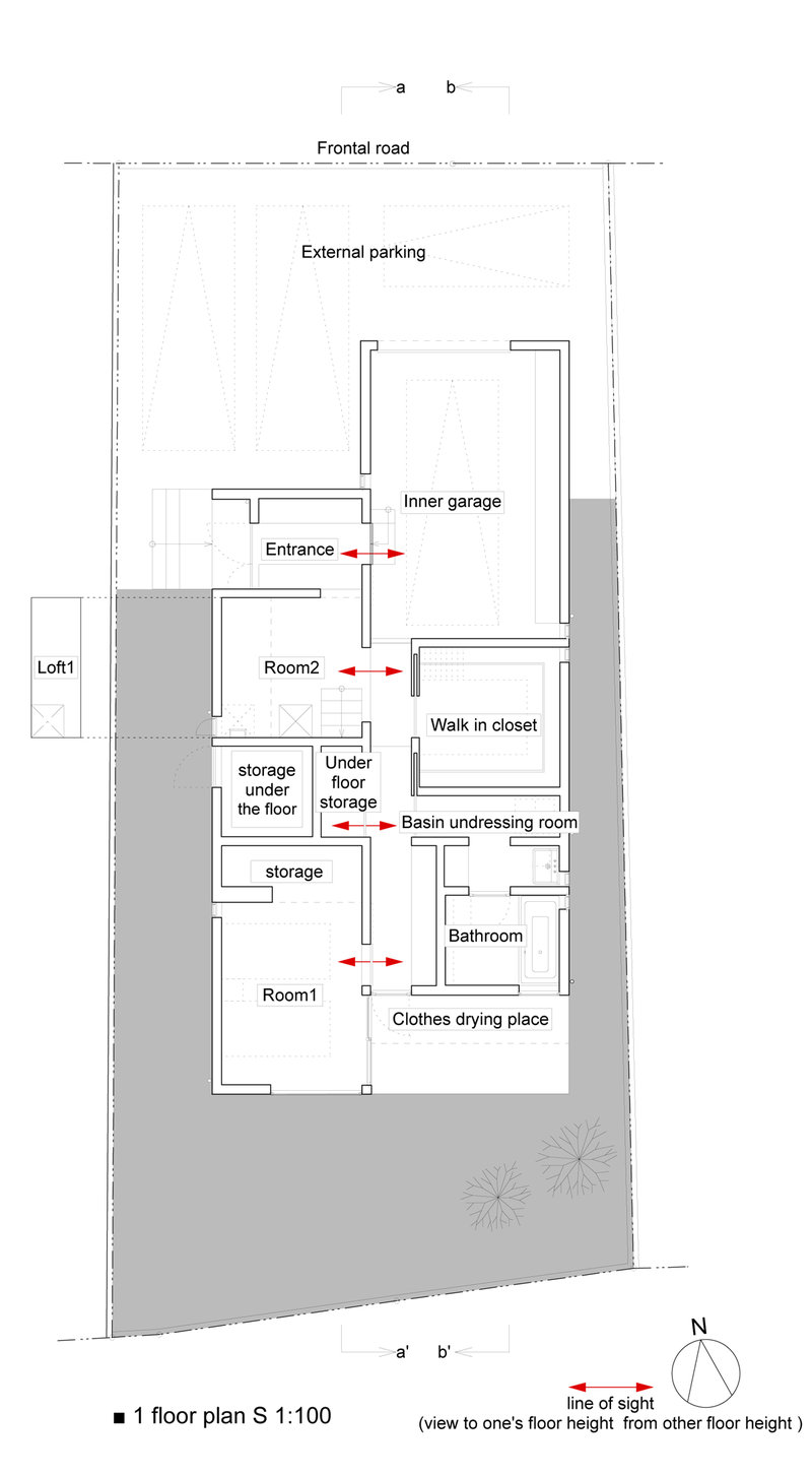
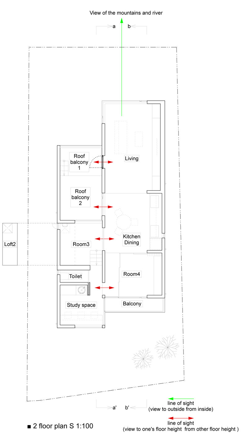
在日本福冈安静的城市郊区,日本的矢作昌生建筑设计事务所设计建造了一栋两层的住宅,并坐拥周边的自然景观视野。这座“山手之家”被山地环绕,在设计的过程中,设计师选择性的将空间打开,使阳光和自然风可以穿过建筑。在室内,住宅空间分布在九个不同层高楼层上,车库和宅中主卧被安置在较低层空间,而餐厅和起居室则被安排在上层空间。
↑为了预防潜在的洪灾,住宅的基座被提高
↑住宅空间分布在九个不同层高楼层上
↑选择性的将空间打开,使阳光和自然风可以穿过建筑
↑室内不同层高的楼层
↑主要的生活空间分布在较高的楼层上
↑露台上可以看到周边的山地景观
↑“山手之家”及其周边环境
↑一层平面图
↑二层平面图
↑剖面
↑剖面
项目名称:山手住宅 项目位置:北九州,福冈 项目负责:矢作昌生建筑设计事务所 完成时间:2014年 合作伙伴:kenji nawa nawakenji-m 用地面积:195.08平方米 建筑面积:72.87平方米 建筑体积:132.08立方米 建筑材料:木 摄影:koichi torimura 翻译:##-雪狼
···
客服
消息
收藏
下载
最近














