查看完整案例


收藏

下载
米哈雷斯住宅坐落于西班牙北部小镇santillana del mar附近的一处农村地区。该住宅由建筑师eduardo fernandez-abascal teira 和共同设计,住宅局部下沉嵌入略微倾斜的基地,同时,在基地南部的角落升高作为一个小车库。最终组合得到的建筑可以被看作是三个相互联结的体块,通过材料的对比和窗户的交替布置,使其互相关联。除了满足最基本的生活需求,这个独户住宅还提供了工作室和小花园,同时,许多室内空间都有大的开口面向相邻的室外区域。
↑住宅局部下沉嵌入略微倾斜的基地,同时,基地南部的角落升高作为一个小车库 当提及该项目的一些影响时,建筑师对该住宅的设计作出如下解释: “住宅的空间有一种50年代加利福尼亚州的建筑的味道,就像julius schulman笔下的形象或者是艺术家rodney graham的作品《天才都是业余的》的重现。它们以独特的建造方法显得个性鲜明,巨大的雕塑般的开口充分吸收阳光,建筑的形体在环境中舒展开。另一方面,过分工业化的特点用地板的天然木材、波浪褶皱的窗帘和家具进行中和。”
↑住宅被一片绿地围绕 建筑物的外墙为铝板或是暴露的混凝土,而屋顶则覆盖着植被。内表面的一个组合的材料包括木地板、树脂砂浆、玻璃、和灰色的石灰岩。为了体现现代的感觉,住宅家具设计来自柯布西耶、伊姆斯夫妇、马尔滕·凡·斯维伦、布鲁利克兄弟,以及帕奇希娅·奥奇拉。
↑一面宽的玻璃墙将客厅和饭厅联系到室外庭院
↑空间开敞的楼梯间将住宅的三层联系起来
↑办公空间的大玻璃推拉门
↑住宅的种植屋顶成为一个宜居的小庭院
↑轴测图
↑总平面图
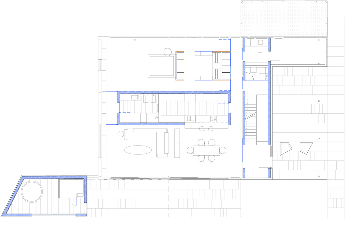
↑一层平面图
↑二层平面图
↑地下一层平面图
↑剖面图
↑剖面图
↑西南立面
↑东南立面
↑东北立面
↑西北立面
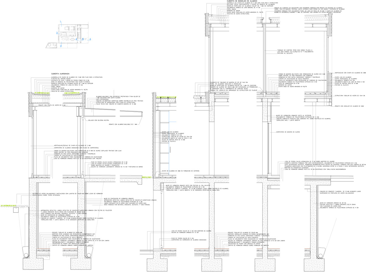
↑细部
项目位置:西班牙,桑蒂拉纳德尔玛 ,米哈雷斯 项目规模:553平方米 建筑师:eduardo fernandez-abascal teira y florentina muruzábal sitges 合作建筑师: manuel díaz pardo, guillermo fernandez-abascal 开发商: eduardo fernandez-abascal teira / sonsoles glez.valdes contreras 建造商: construcciones sendalbo 结构工程师: miguel terán 安装工程: JG ingenieros 摄像: pablo ausúcua 翻译:##-木头龙
···
客服
消息
收藏
下载
最近


































