查看完整案例


收藏

下载
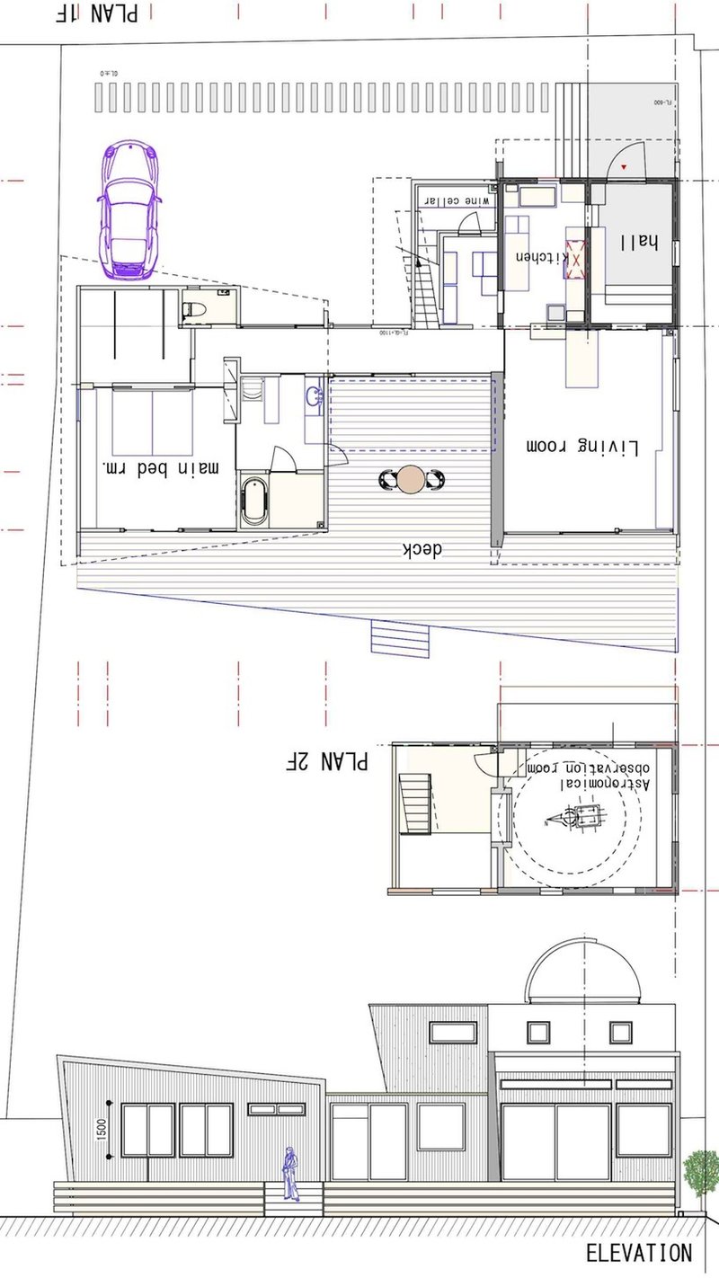
在日本的千叶市,tai_tai建筑事务所设计并修建了一栋能够观测天文的住宅。该住宅拥有一个天文台穹顶以及大型望远镜,以满足业主一家人观测星星的爱好,同时还可以用来举办一些聚会。建筑结构的一部分由木框架构成,而其它则由重型混凝土构成。混凝土能用来减小望远镜的震动,因为望远镜的功能性观测需要绝对的稳定。
↑房子的外部以裸露的混凝土墙和波纹状金属薄板为特点 房子的外部以裸露的混凝土墙和波纹状金属薄板为特点,而内部则安置了木地板和木质家具。一间风力发电机房紧靠着住宅,这也是由tai_tai建筑事务所设计,并且被赋予了相似的外形和材质。
↑木平台沿着西立面延展开
↑房屋基地邻近农田
↑住宅内的天文台从两层高的混凝土体量中伸出来
↑内部装饰包括暴露的混凝土表面和木地板/家具
↑客厅
↑(左图)储物间 (右图)风力发电机房紧靠着房子,这也是由tai_tai建筑事务所设计
地址:日本,千叶县,茂源市 建筑师:tai_tai建筑事务所/若林 秀和 ,若林 晶子 功能:住宅 用地面积:490.5平方米 建筑面积:135.35平方米 建筑总基底面积:171平方米 结构:钢筋混凝土+木结构 翻译:##-黄俊傑
···
客服
消息
收藏
下载
最近












