查看完整案例


收藏

下载
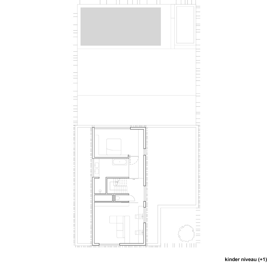
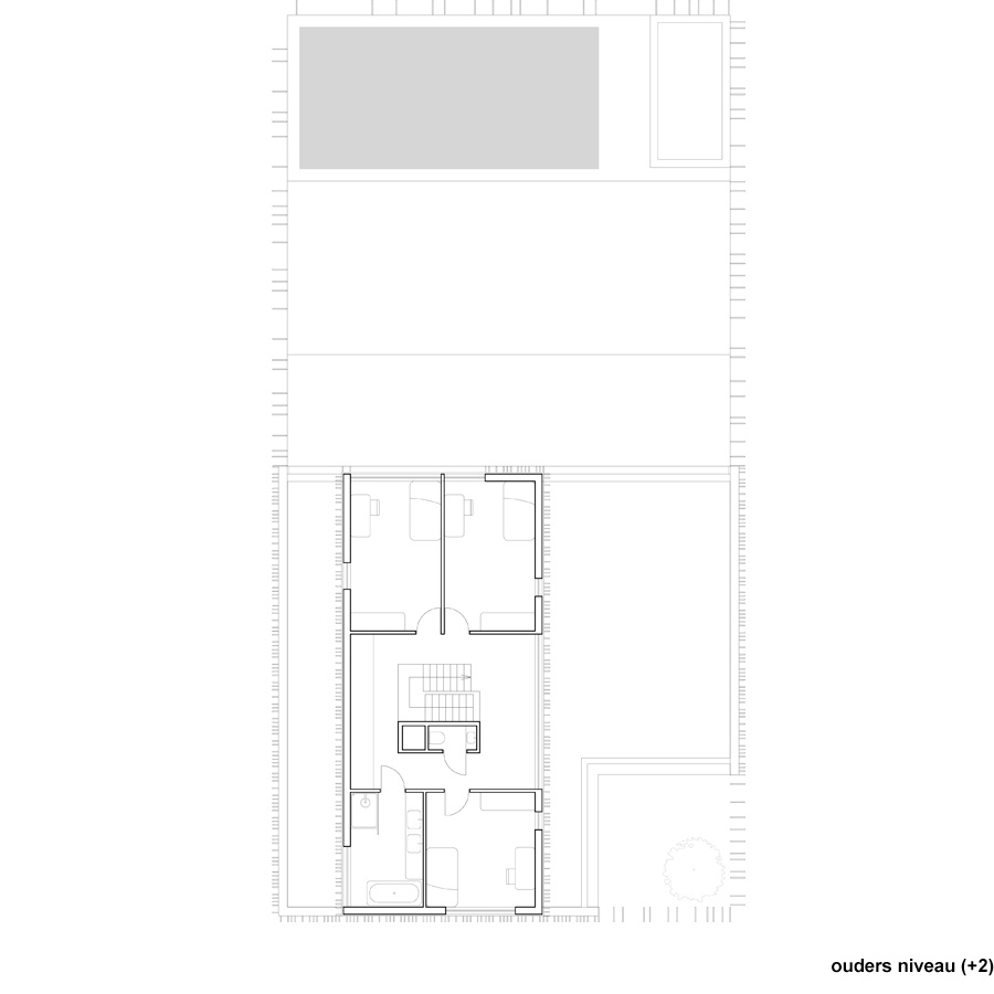
在比利时安特卫普郊区,DMOA建筑事务所应用耐候性钢材,赋予了这座“柯尔顿住宅”独特的钢片立面。考虑到住宅的舒适性,该空间划分出了明确的边界,必要时可以随时进行二次分隔。尽管各个空间的密度各不相同的,但它们也考虑到了空间中嵌入的功能。例如,在附近的银杏树向游泳池和花园处延伸,并将其部分覆盖遮挡,打断了来自周边住宅的视线,保护住户隐私。
↑视频由DMOA建筑事务所提供
↑前立面 材料的特性使得该住宅的外立面的光影变化在铁锈色的落日余辉下显得绚丽夺目。这些特征都能够通过被焊接在外立面的多孔板在气候变化的作用下来实现。
↑仰望外立面的面板↑视频由DMOA建筑事务所提供
↑向内看前庭院
↑游泳池的后方入口
↑(左)由大量钢片围合而成的庭院 (右)沿着花园周边的独立薄片
↑向后庭看
↑起居室
↑内部走廊
↑厨房细部
↑浴室
翻译:##-张婵,曾辉鹏
···
客服
消息
收藏
下载
最近













































