查看完整案例


收藏

下载

翻译
来源: АrсhDаilу
Tayourt 冲浪营 / Studio BO
建筑师提供的文字描述。 这个项目和我们工作室做的第一个项目在同一个海湾。 它发生在 Imsouane 村。 它是摩洛哥南部索维拉和阿加迪尔之间的一个小渔村。 这个村庄是世界各地冲浪者的著名地点。 他们称之为“魔法湾”
该项目是一个冲浪营地,位于“魔法湾”前的悬崖上。 它位于历史悠久的 Imsouane 村,非常靠近渔港,位于以完全乡土方式建造的小屋中间。 该项目不在前线,但由于悬崖上方崎岖的地形,冲浪营地提供了海湾的壮丽景色,并作为一个天文台,让冲浪者监测涌浪。 该建筑也高出海平面二十米。
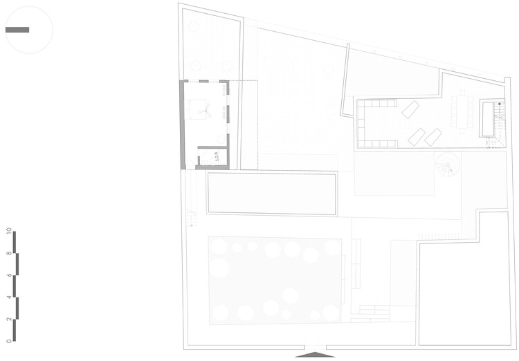
本次改造项目是一栋老房子,是村里最早的房子之一。 想法是保留老房子的露台,同时改善空间和场景以匹配未来的规划。 因此,该项目有一个接待处、大约十个房间、一个餐厅、一个厨房、一个冲浪板工作室、一个屋顶、一个露台、一个太空瑜伽室和一个中央花园。
由于村庄的乡土住宅,该项目具有明显的混杂性,由于其宽敞的地块以及不致密化的选择,该项目仍然相当通风。 材料的选择是当地的和上下文的。 地板上铺着赤陶砖,Bejmat。 所有的墙壁都涂上了石灰,有时是粗糙的,有时是 tadelakt 风格。 一些露台盖的结构由木板制成,然后用芦苇包裹。 建筑物的屋顶由酒椰树制成。
来源: АrсhDаilу
客服
消息
收藏
下载
最近












