查看完整案例


收藏

下载
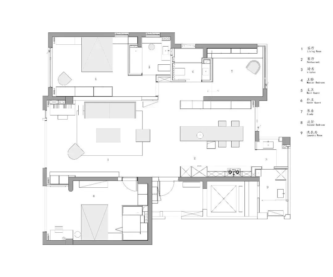
空间线条凝练爽利,块面简洁有序,让视觉变得轻盈通透,隐形门将空间的功能性与审美性结合得恰到好处。
吊顶无主灯设计,射灯作为主光源。投影仪隐藏在侧边的弧形吊顶里。沙发、茶几、绿植也都是精心挑选,简洁且不乏装饰性。
01
调和色彩,质感温润
Harmonious color, warm texture
餐桌连接岛台的一体设计,满足了使用的同时,又增加一些附属功能。经典的黑白色调以外,餐厅引入木色调,烘托自然温润之感。
厨房内部统一的色调干练精简,橱柜布局最大程度扩展可操作台面面积和收纳空间。采光和通风均得以最大化释放和改善。
02
内敛有致,韵律之美
Introverted, the beauty of rhythm
书房开放柜,沉静的深色营造出安静的工作学习氛围。在这个空间里的每个人都能找到自己的热爱,不管是工作学习还是休闲娱乐都是如此。设计无须过于繁多,点到即可。
次卧低饱和基调自带高级感,一抹绿色在空间中晕染开来简约和舒适。用简洁的曲线、弧度形成的结构,使空间达到线条的平衡。在光的跳动下,像一曲曲乐章,形成律动的美。
卧室整体以纯色白墙为底,床头采用黑色木纹,于纯粹空间凸显色彩及视觉层次,打造一个沉静安宁的睡眠空间。两侧定制悬空嵌入式床头抽屉,满足基础置物需求,也更为轻盈简洁。
项目名称 | 寻心归处 享悠然之悦
设计公司 | 现象空间设计
项目地点 | 浙江·温州
主案设计 | 林珊
设计时间 | 2021.03
完工时间 | 2022.02
主要材料 | 乳胶漆、木饰面、钛金、地板
林珊
现象空间设计 创始人/设计总监
延伸阅读
EXTENSION READ
300㎡自然之家,删繁就简的朴素之美 | 王瑞新作
148㎡写意宅邸,在框景中阅读暖煦日光 | 叙研设计
联系设计品鉴
合作/投稿
15011229364
客服
消息
收藏
下载
最近





































