查看完整案例


收藏

下载

翻译
来源: АrсhDаilу
Shiva Stuthi 住宅 / Wright Inspires
位置 – 位于班加罗尔一个宁静的住宅区,这个 2400 平方英尺的线性地块的较短一侧面向西面的一个安静公园,其他住宅毗邻三边的其余部分。
概念——这个家被命名为“SHIVA STUTHI”,它寓言地引用了自由流动和平空间的概念。 该计划是在引入空间体积的同时在家庭范围内营造舒适的泛音,从而散发出平静的能量并与用户建立情感联系。
设计——整个结构从接近层高出五英尺,有一条直线人行道通往住宅。 一个多活动空间悄悄地藏在地下室里,还有一个化妆室。 迎接客人的是入口处的花园,随后是连接宽敞房间的门厅,以及一个独特的下沉式休息区,可供闲聊,这是对传统阳台的现代演绎,以该地区的祖屋为特色。 使用精心设计的倾斜窗户可实现充足的自然通风,确保全年无需外部冷却。 在紧凑的城市地块中,作为一名设计师,人们寻求加高的天花板和天窗,而不是面向邻居的大窗户,以在空间中创造体积,同时保持隐私。 房子的公共区域展开为起居室、餐厅和厨房,它们在视觉上相互连接,同时在功能上是独立的。 父母的房间朝前延伸到一个柔和的角落座位空间。
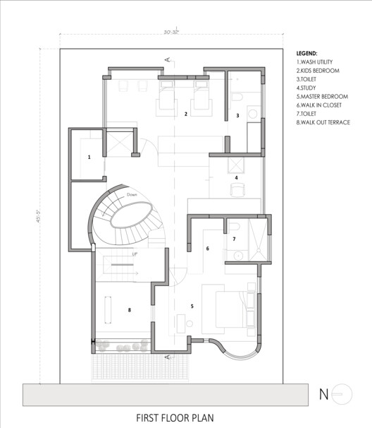
一条温文尔雅的曲线楼梯沿着所有楼层延伸,并辅以巨大的天窗,为住宅增添了生机,描绘出日日夜夜的无数图案。 在一楼,楼梯通向一个学习空间,然后分支到主人房、女儿的卧室和一个户外秋千露台。 透过主卧室的传统窗户,人们可以俯瞰设有古朴花园和秋千的庭院。 一楼拥有波浪形填充板屋顶和眼形天窗,延伸至露台上方的飘动凉棚屋顶。 该住宅还包含多个跨层绿色口袋,其采光和通风自然元素的使用显着降低了能源需求。 最引人注目的元素是弯曲的玻璃立面,它让人可以向外看,同时不允许路人向内看。
材料——这座房子完全是用线切割砖建造的,采用了一种独特的建造方法。 裸露的隔热墙提供了足够的热舒适性,使住宅能够对周围环境做出反应。 以悬挑和天气棚的形式添加了新颖的混凝土元素,以补充设计。 地板主要是天然的 Kota 石材,内部设计的木制家具突出了整个家庭采用的自然设计调色板。 为了最大限度地减少热增益,屋顶板采用砖和乡村瓷砖填料等环保方法进行双重隔热。 Shiva Stuthi 是由 Wright Inspires 团队设计的具有文化根基、情感吸引、美学愉悦的现代生态住宅。
来源: АrсhDаilу
客服
消息
收藏
下载
最近













