查看完整案例


收藏

下载
自由流动的蓝调空间
自2020年,盐·创意西厨落户佛山,提炼餐饮市场的品类差异化,伴随产品迭代、店面模式升级而呈现一个兼具温度与轻奢感的创新西餐品牌。继广州金沙洲金铂天地首店后,盐·创意西厨将新店选址在天河佳兆业广场,唯尼设计与之再度联袂,担纲空间场景的整体解决与创意执行。从空间设计和品牌策略的维度,将优雅的简练与美学意象相结合,以温度、感知和细节的集合,回归烟火与时光交融的艺术。
因应场域特质
化平庸为优势
旧现场环境
项目入驻繁华中心地广州天河区的老商场内,周边多为办公写字楼和老旧住宅,面积达480平方米的场地现状不尽理想,硬装、动线、灯光环境都尤为压抑而亟待重整焕新。
01
SENSE OF CEREMONY
仪式感
基于与业主方的双向理解及物业对品牌的支持,设计团队对楼层环境进行系统梳理和拆分,借助三维图直观预演场景使用,点对点破解一系列限制性条件,解构并重塑空间的价值表达
平面布局与使用机能,外围公区层高,低于商场标准的3.2至3.5米而仅有2.7米,且竖立着不可拆除的承重柱阻挡视线,设计依循现有结构及采光推导门头方案,以内退式界面形成门廊休闲缓冲区,整面墙的玻璃门和落地窗贯通内外
邻近商场洗手间过道的右侧柱体转变为一隅打卡区,简约轮廓的旋转楼梯连同嵌入的薄屏,吸引与聚合人流的同时有效展示品牌动态。围绕左侧柱体开辟创意时尚酒水区,隐性灯效渗入特质陈列架围合微醺氛围,契合西餐文化的轻仪式感
02
COMPLEXITYTOSIMPLICITY
繁复至简
金属与镜面的空间,金色光境中散发着清透温暖的雅致,玲琅满目的酒水陈列墙面,给人以唾手可得的满足感。光影构筑空间映画,灯饰的造型感与通透性是空间灵动的存在
鉴于餐厅主打“盐与海鲜”的融合料理,设计提取地中海的游艇蓝作为跳色,赋形于实用而时尚的软饰细节。肌理 色块 形体,以和谐调配的比例,还原一个中性但不冷的空间,实现有序之下的自由与高效
03
NATURAL SUNLIGHT
自然阳光
由外及里 内部环境亦因管线老旧,消防排烟设置不合理导致部分层高过低,原后勤保障区甚至仅高2.3米,极其压抑的硬性结构使得观景窗几近废弃,至少70平方米的空间被低效浪费
设计针对或高或低的层高区域布置差异化场景,多维度平衡考量从落地到运营的空间逻辑。基于品牌创始人对生活健康品质的高标准要求,以趋向自然阳光的简净与轻盈环境,异于市面常规的“暗黑系”西餐模式,升华更多样化的用户就餐和社交体验
延续品牌标志性的开放式厨房设计,130平方米的明厨区域,几乎无死角地全然呈现厨师专业操作,恰到好处的灯光结合斜向延伸的镜面装饰。以反射扩大的视觉效果消释餐区前环境的拥塞感,动静之间的看与被看,传递最真实而有意义的感性共鸣
04
INTERACT GENTLY
温柔互动
纳入风景 人与自然温柔互动,趋光是人类的天性,也指引着本案空间改造的可持续设计介入,将人为与自然的风景叠合为自成一体的崭新环境
原本作为办公室和储物间的最低层高区,结合内外景观全部重新优化,设计方案协调空调管道 消防强排和外墙栏杆,以弧形落地窗围合出一个抬高区域
重获俯瞰整个天河北商圈的核心景观视野,曾经无人问津的角落,经由高价值感的设计,而成为需要预订的超人气餐位
天花铺展的高清镜面板,从内而外映照出周边的景色,隐藏处理的定制镜面射灯,最大限度地优化天光与灯光的平衡互补。设计亦根据不同餐位在不同时间段的空间表情,全方位考量色温的选用和家具的选材,赋予日常物品新的生命力
用心打造空间 餐品和食客之间有机连接的场景体验,承载轻松且包容性强的健康生活方式,在求新求异又高频迭代的商业背景下,成为更长久可续的存在
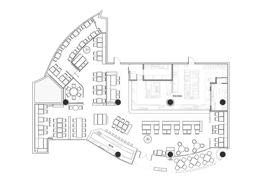
05
ANALYSIS DIAGRAM
分析图
INFO
项目名称:盐·创意西厨
设计机构:唯尼设计
主创设计:蔡威
项目面积:480㎡
项目地址:中国 广州
项目摄影:谭啸
-
DESIGNER
蔡威
设计总监
唯尼设计,设计总监蔡威, 多次荣获国际设计大奖,意大利A'Design Award设计奖,美国建筑大奖(American Architecture Prize)设计奖,德国IF设计大奖。
拥有10余年商业全案空间设计经验,擅长餐饮、商业等全案策略空间设计,注重文化与精神的多元化空间表达,强调艺术感与商业氛围及实用性结合的整体化构想。
创意-以商业目的为核心、做与众不同的空间设计;拒绝程式化、套路化设计;便利性-以客户的需求为本、提供专业的配套服务、为客户节省时间、减少麻烦;项目落地--成本可控、全程跟进各专业落地细节及配合;增值空间--设计赋能商业、建设品牌空间独特体验感受。
客服
消息
收藏
下载
最近










































