查看完整案例


收藏

下载
设计风格:
此案设计风格以简约现代为主,旨在营造一个自在舒适的状态,空间被赋予了开放、自由、豁达的性质。用简约的色彩与物料的碰撞共同组合出丰富细腻的肌理层次,富有哲理的意味。
设计图例:
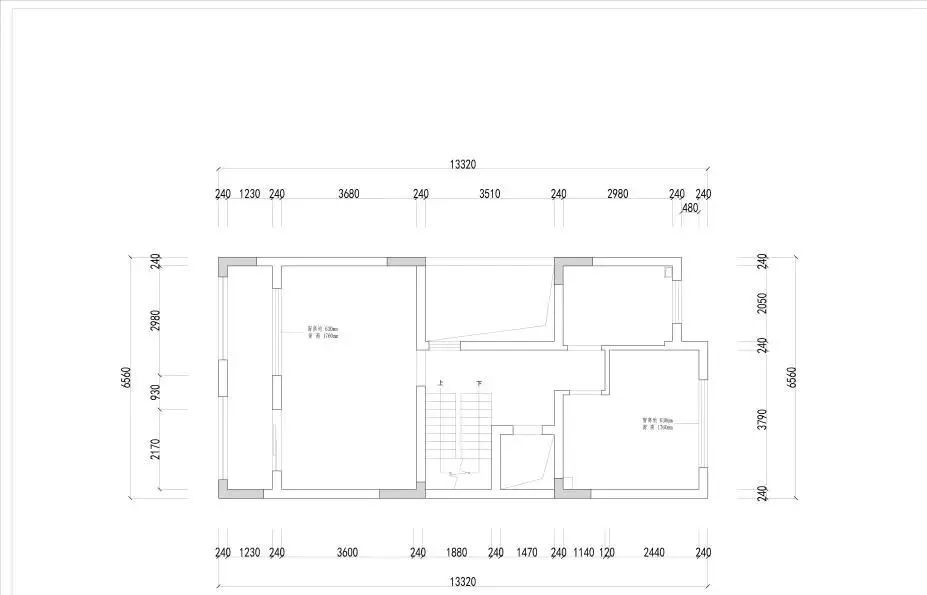
(负二层原始结构图)
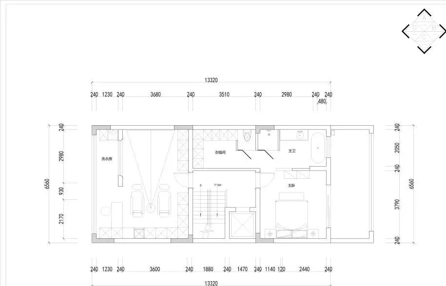
(负二层平面布置图)
(负一层平面布置图)
(一层原始结构图)
(一层平面布置图)
(二层原始结构图)
(二层平面布置图)
(三层原始结构图)
(三层平面布置图)
01
负二层休闲娱乐厅旨在体现时尚个性的艺术氛围,挑空的空间搭配简约的弧形玻璃栏杆,顶面层次递进的点光源与轨道灯的融合,白色墙面与木色不规则造型窗的相互映衬,黑色酒水柜与暗红色挂画的视觉冲击力,使整个空间呈现出克制又个性的高级感。
(效果图)
0
2
餐厅区,把西厨与餐厅融为一体,岩板餐桌与西厨台面及墙面的石材相呼应。酒水柜与西厨储物高柜设计的搭配,增加了餐厅就餐的氛围感也提升了西厨与餐厅的互动。
客厅空间,圆形顶面的尺度感搭配细长射灯的个性感,茶室储物及展示的功能则通过弧形造型的过渡与电视墙完美融合。木质与金属的撞击,灰色与白色的对比,无一不体现出屋主对生活品质的追求。
(效果图)
03
主卧空间,利用光影与线条分割出利落的空间,在纯粹的状态里出落大方而内敛。亦在一帧一帧静态的影像中,寻找美与功能的平衡。
(效果图)
04
多功能空间既兼具衣帽间的储物功能,亦能观影,也能小酌,更能建立情感共鸣,完成一个有情感的空间氛围,与当代人更加开放自由的生活模式完全适配。
(效果图)
业主单位|私宅
项目面积|450㎡
室内设计|田婷婷 杨倩
项目设计|重庆东亦启宸设计
编辑/徐雪
审核/陈婧菁 田婷婷
客服
消息
收藏
下载
最近



















