查看完整案例


收藏

下载

翻译
来源: АrсhDаilу
三角屋 / TIUM Architects
基本特征:有风景的土地。 土地位于城市边缘,也是沿城市斜坡的公园入口处。 这些位置的特点使房子可以看到城市的全景。 南面是城市景观,北面是可以包容自然环境的公园。 该地点既有享受城市生活和自然环境的优势,也有前往市中心的交通便利的劣势。 根据居民的生活方式,好恶可能会有所不同。
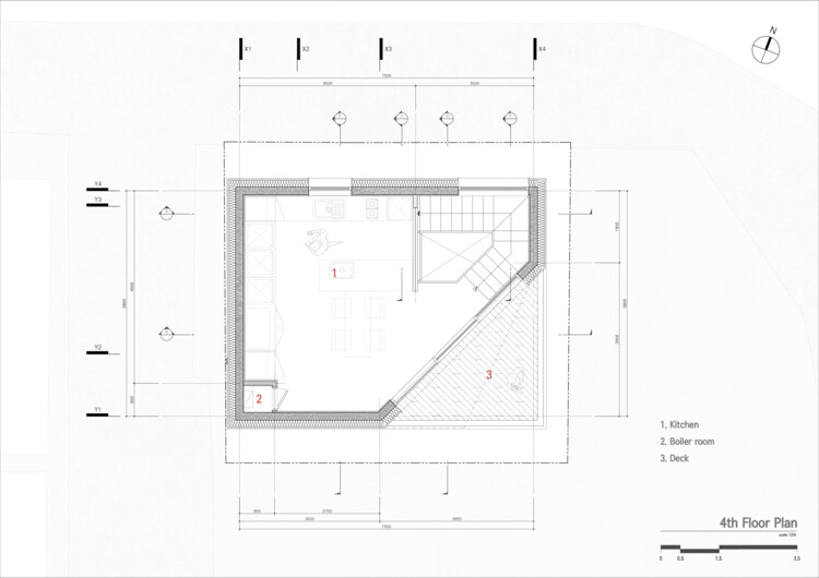
客户强烈要求:厨房和露台应该有一个很好的视野 – 程序安排。 从一开始,客户(妻子)就想把厨房设置在房子的顶层。 她渴望有一个风景优美的屋顶。 按照她的要求,4楼的节目具体安排好了。 自然,我们将一楼描绘成一个多功能空间,四楼包括露台、厨房和餐厅。 在一家四口的节目设置中,一楼和四楼都是这样决定的。 现在,还有一个问题; 我们如何组织公共空间和私人空间? 如您所知,2楼和3楼的角色可以根据地域或居民(父母和2个孩子)的关系如何分隔空间来改变。
当然,如果空间足够宽敞,我们可以灵活配置2楼和3楼,同时配置4楼的厨房、餐厅、客厅。 但是,我们只有 13 坪(43 平方米)的面积。 没有足够的空间将包括露台在内的公共空间放在建筑区域。 如果将 1 个 RM 转换为约 3.3 坪(11 平方米),则 4 个 RM 放置在 13 坪中。 除了楼梯和厕所,每层可以插入这些程序的空间大小约为2.5RMs~3RMs。 我们选择根据居民关系将公共空间和私人空间分开。 我们将每间卧室设置在 2 楼和 3 楼,以确保父母和即将成年的孩子的隐私。 然后我们在三楼的中间区域布置了一个客厅。 私人空间和公共空间适当地位于每层楼。 房子的组织如下:入口+一楼的多功能室| 入口+两个孩子的房间+二楼的厕所| 三楼(小)客厅+主人房+浴室(带衣柜、洗衣房和烘干机)| 四楼的厨房、餐厅+露台。
露台布置:建立城市关系,挖掘空间,切割,切割,斜角切割。 露台的位置根据楼梯、厨房和餐厅的关系设置在东南方向。 由于南侧和东侧两条道路的开放式布局,我们可以利用楼梯前(南侧)的剩余空间,实现高效流通。 至于露台的利用,我们以各种方式寻找最佳的建筑空间。 与露台空间成反比,室内空间(厨房和餐厅)缩小了。 因此,我们没有选择正方形,而是将这个地方切成三角形。 此外,楼梯也是倾斜的螺旋形。 这样一来,餐桌的内部空间就得到了保障,内部和外部可以通过一扇大窗户相遇。 由于窗户位于北侧,露台窗户靠得更近,光线和开放感被扩展到楼梯和气管。
我们在两条道路相交的十字路口创建侧面而不是拐角。 通过侧面,我们创造了与城市相对应的各种立面。 通过模糊正面和侧面模糊的边界,可以将其视为连续的立面或三维外观。 每个视点都有不同的高度。 在太平洞的房子里,露台不是太阳辐射的副产品,而是从计划一开始就根据客户的要求规划的空间。 北边的露台不利于采光。 相比之下,南边的露台不仅保证了阳光的照射,还保证了观赏城市的权利。
创建带楼梯的垂直气管。 如果由于水平空间小而无法将所需的空间保持在一层,我们必须使用楼梯创造一个连续的生活空间。 各楼层的节目编排完成。 考虑到大小和方向,主要空间放置在南侧,辅助空间和流线放置在北侧。 动线从二楼正门开始,垂直穿过东北侧的楼梯,连接南侧的各个主要空间。 2楼迎宾区(前厅)与3楼客厅相连。 此外,3楼的客厅与4楼的露台和餐厅相连。 我们增加了风管的作用,以缓解由于连接空间的功能作用而导致的堆叠空间之间的疲劳。 通过垂直安装的风管,光线进入,内部空气循环。 位于四楼的南北窗户使管道的功能活动增加了一倍,用于采光和通风。
享受简单的日常生活。 我们希望您对城市景观有点无聊。 有时我们需要在忙碌的城市生活中感到无聊。 出于这个原因,我们画了一个简单的房子,它自然地埋在城市景观中。 它分为两个体量,以营造温馨的外观——四楼,有山墙屋顶和三角形露台; 1、2、3 楼,见方白色。 (分为正方形或三角形等可作为单个图形阅读的形状。随着阅读变得更容易,以直观清晰的建筑词汇表达。)水平环境的较低楼层应用了白色石材饰面作为简单的基础。 与此形成鲜明对比的是,设计为山墙屋顶的上层(4楼)以红色光滑砖完成,以延续邻近建筑物的陈旧外观。
根据不同的观点,它以两种形式出现。 上坡时(从南侧看),从1楼到4楼可以看到整栋楼。 反之,沿着马路走(从北侧看),它看起来就像一个简单的三层楼房。 它与城市和谐相处,舒适地坐在它的位置上。 白色方块上的红色三角形看起来像一个韩语单词“슴(意思是:简单或朴素)”。 因此,我们用韩语将这所房子命名为“슴슴”。
来源: АrсhDаilу
客服
消息
收藏
下载
最近























