查看完整案例


收藏

下载

翻译
来源: АrсhDаilу
LOFT 工业住宅综合体 / Botticini + Facchinelli ARW
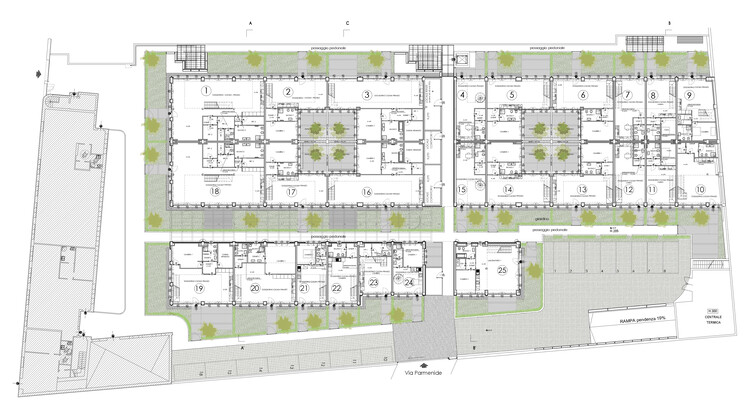
建筑师提供的文字描述。 LOFT是一个住宅项目,位于米兰郊区蒙扎大道地区,靠近地铁站和铁路连接,干预了典型的战后工业结构的恢复。 该建筑由三个街区组成,具有典型的山墙部分和内部钢结构。 三艘长而平行的工业船展示了建筑的主体,并被天井切割,允许空间被回收用于住宅用途。
Columella 街的 25 间阁楼构成了一个优雅的住宅综合体,在底层和夹层上开发,有不同大小的体量,都带有私人花园,有内部庭院和外部花园,而 4 套公寓有朝外的凉廊。 每间公寓在地下室至少有一个车库/停车位,可从 Via Parmenide(街道)车道进入坡道。
有两个行人入口,分别来自 Via Parmenide 和 Via Columella。 为了保持干预形成的工业建筑的特征完好无损,它丰富了大窗户、私人花园和内部庭院。 阁楼提供的生活解决方案在尺寸和体积方面都多样化,并且具有很高的能源性能。
宽敞的内部高度使得插入夹层舞台成为可能,并且使用深灰色进行抹灰,与包围结构的强烈绿色形成对比,创造了一个具有巨大魅力和空间质量的新维度,其中光的重要存在与私密的绿色环境一起,从声学的角度来看,也有利于隐私。 在内部,每个生活单元的设计都旨在保持与现有建筑的颜色和材料的连续性,将保守项目的元素与更具创新性的结构干预相结合。
来源: АrсhDаilу
客服
消息
收藏
下载
最近














