查看完整案例


收藏

下载
设计师苏权伟此次受邀为斯李克(上海)智能系统有限公司(简称斯李克 SLEEK)设计展厅,该公司致力为中国客户带来先进的窄边框节能门窗系统及智能门窗、智能入户门系统产品。
01设计概念
根据业主需求,设计师致力于打造出一个以门窗为对话媒介、融合自然生活方式的产品展示空间。窗户的内外链接着不同的内容,窗外看世界窗内看人生,我们也希望能够通过展厅的设计引发人们对于生活的思考。
在展厅中,门窗是最核心的内容。它们定义了庭院与室内、阴影与光线,这意味着灵活的位置和不断变化的边界,所以在设计中希望能通过外部的未知刺激观众的感官内部,白色的灯膜象征着未知的外部。
空间的设计底层逻辑在于如何以空间的流动性安排引导品牌与需求者之间的互动,并为用户提供沉浸式的体验。02
消失的空间
当你凝视深渊时,深渊也在凝视你,窗户是人内心的反射,我们希望通过门窗产品的展现,在人们触摸的同时反思内心与外部世界的链接。
03 设计策略
流动的空间
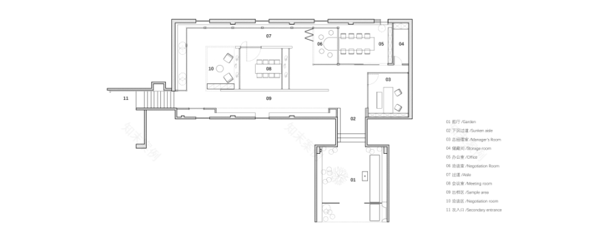
平面布置
第一视觉镜头语言
FRONT ROOM
门窗模糊了原本室内外清晰的界限,前厅入目是户外轻轻灵流动的绿意,几何线条描摹着理性逻辑,利用院落激活外部空间。
设计利用人与自然的亲近感以及门窗逆向思维的点缀营造室外庭院的氛围,由庭院进入门厅营造了具有层次感和仪式感的建筑空间。
室内外空间的过渡,增加建筑空间层次,使空间具有叙事性,即拥有前言、开端、高潮、结束、升华的全过程,也是第一重框景。
廊道/CORRIDOR
廊道的设置是设计的高潮,致敬历史中密斯凡德罗德国馆的设计。视角回到历史文献和现场中那些细节和触发情绪的关键点,路径和可视的景观节点分布在廊道的两侧,一气呵成连接接待室、洽谈厅、办公厅,不同的空间呈现出第二重室内框景。
几道片墙,限定了空间和人的路径以及视线,空间被限定成窄长的走廊与豁然开朗的景观。
FUNCTION AREA
人们在洽谈室处可通过片墙的窗洞看见墙后的雕塑,却不可达,经过由两道片墙挤压出的小径,视线豁然开朗,达到展厅后部设计的欲扬先抑的效果。
空间同时也体现了收放的变化,并对人的视线和心理进行设计和引导。这种手法在中国国代私家园林中可见一斑,使空间叠加了趣味性。
室内设计与结构改造
空间分割但割而不断。设计不再是立方体空间,而是自由竖立的墙体,这些自由墙体打破了传统的盒子,滑出范围之外,延伸至窗外的“景观”之中。
室内结构
与形成一个封闭的体量相比,这些独立的墙体被玻璃平板连接在一起,创造一种新的模糊的空间感觉,室内外空间不再被简单的定义,他们流向彼此,给予身体和视线全新的体验。
节点分析
景观将室内庭院与房间并联起来,错位的设置每个房间都有一个庭院空间,庭院是相互联通的,房间也是相互联通的。
项目利用人为的手法,使顾客体验室内室外的交替的场景,点明流动空间的主旨。
原有结构空间高度是高低起伏的,现场仍然保留完整的结构框架并附带了出风口等硬件。空间分割但不隔断,营造了
由于独特的原始空间造型,我们决定利用高差打造独特的室内天光感,将横梁与原来挑高的部分作为顶面设计的亮点。
斯李克(上海)智能系统展示空间是一个内向型空间,因此它有一种独特的展示效果。它会提供一种感受,那就是——“自然的流动”。与传统的展示空间相比,有更多面朝向自然打开,对空间的限定也更加自由。创造根据实际生活习惯从而产生连续的活动空间,另一方面第一视角的模拟框景更突出了空间起承转合的精髓,即拥有电影画面般的诗意。
剖面图-剖立面-平面图
向左滑查看更多,点击可见大图)
项目信息
项目名称 | SLEEK 斯李克门窗展厅
设计总监丨苏权伟
团队执行|麻媛梅、史鹿鸣、胡博、朱丹、赵泽
项目地点丨中国上海
| 2
完工时间 | 2023 年 1 月
项目摄影丨吴越
设计师
苏权伟
苏权伟在“建筑工程世家”长大,从小随父亲在建筑空间游走,正是这个特点激发了他的空间结构美学,塑造了他对空间设计的敏锐度。2013 年任职于香港陈建中设计事务所,参与了许多国际整体定制的专业服务,积累了国际多元美学经验。2017 年独立带领着一批具有崇高设计梦想的青年团队,一直在设计的矛盾中寻求突破。善于结合生活将空间重组,把空间特色发挥到极致,强调功能与美感平衡,尊重使用者的真实需求。
近期作品
▽ “灰空间”住宅
▽ 楠庐家具展厅
▽ 童话里的柔软生活
▽ 长寿吉利小屋
—END—
编辑 | Mas
策划 | Sansan
授权人 | 苏权伟
▼ 延伸阅读
西涛设计 | 老厂房改造而成的吱音北京展厅
未来以北 | 层叠的街头主义——WHOOSIS 成都店
DOMANI 东仓建设 | 时间的本质——MEUNIER 3 概念旗舰店
泛域设计 | SKYPEOPLE 天空人·冰冻广场
星标
客服
消息
收藏
下载
最近

















































