查看完整案例


收藏

下载
项目概况
工程地质:金都西花庭
设计风格:美式
设计团队:赵艺哲设计团队
一楼
一层空间采用开放过渡的空间排序,从玄关到厨房,客厅到餐厅,打破传统空间模式。
客厅落地窗的设计,阳光投射进来的同时,给整间屋子注满生机,明丽的色彩使空间变得灵动欢快。
电视柜内嵌,美观而不乏收纳功能。
天然石材间的高雅,雾霾蓝木饰面中的内敛,金属轮廓下的精致,了然于眼前
餐厅
雾霾蓝木饰面的柜门与整体的风格协调一致。
镜面装饰使空间在视觉上得到延伸,隐藏空间设计为空间增添了乐趣。
无论桌椅、吊顶还是照明灯饰,都散发浓郁的美式风情。
自然,餐厅不只是用餐的地方,约几好友,喝酒聊天,于人间烟火中品味惬意时光。
卧室
居室的一点一滴,都是对生活的一种态度。
温馨柔软的布艺装点,软装和背景墙的搭配,
沉静典雅的环境
展现了业主对舒适生活的追求,
隔离喧嚣与繁忙,静享夜与梦的惬意。
卫生间
花砖的选择使得卫生间氛围不沉闷,小鸟灯的选择也是空间的一个亮点。
厨房
厨房这里把原始结构设定的厨房餐厅和北阳台三个区域合并成一个,中间加了一个平时可以直接用餐的岛台。黑底银纹显出高级感同时又很酷。
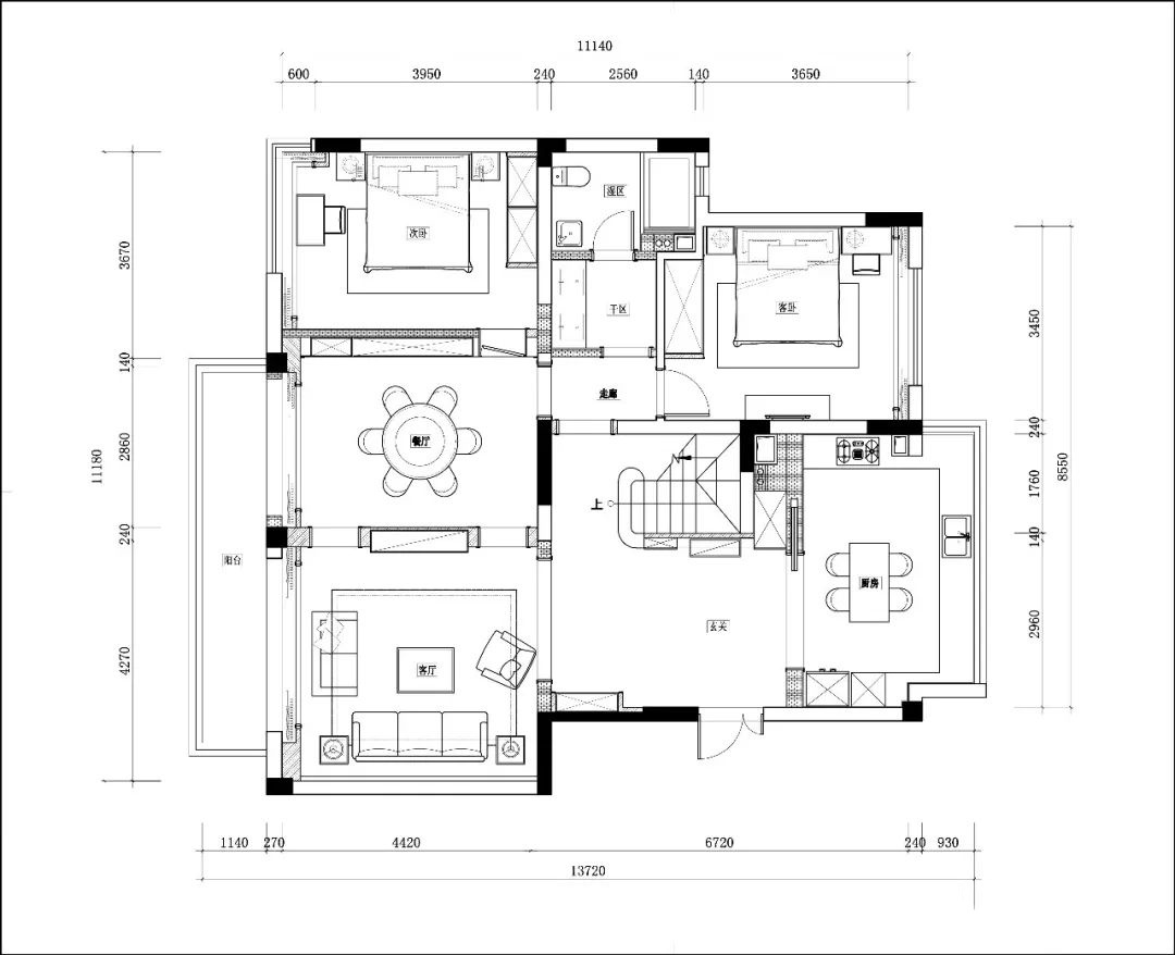
原始户型图
一层
二层
END
客服
消息
收藏
下载
最近



















