查看完整案例


收藏

下载
设计初衷(DESIGNED)
家,是什么?
是放慢脚步,探向精神丰富的深处,也是体验生活幸福的层次。
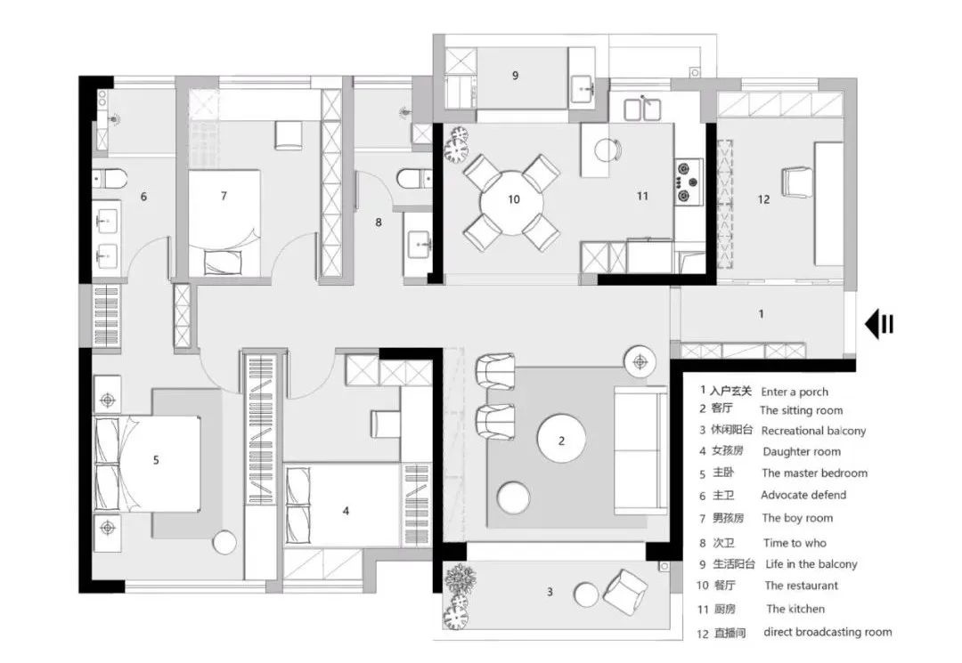
(平面设计图)
本案设计的重点是为业主呈现一套通透、舒服、自由的空间。从拘束里解脱,让空间得到最大程度的利用,不浪费任何角落,使整个空间,以及流线上都体验到舒适,视觉上感受到通透。同时“安全”的设计和合理运用,也是我们需要达到的均衡点。这便是我们一直在寻求的一种实用与美学并存的设计方式。
Address / 惠州·高弘花园
Square Meters / 120㎡
Style / 现代风格
Designer / 苏的设计
02DEFINE THE STYLE OF LIVING SPACE
定义空间
一把不过时的微光
卸下一身的城市繁华
让心归置平和
聚焦在家这处方寸空间
生活,自有时光关照
PART 1
客餐厅
通透、开阔的视觉感受
循着行进路径
一直延伸至就餐区与客厅
原本玄关尺度得以扩展
产生空间的动态情境
沙发后的装饰墙面和白墙叠加,材质粗和细的两种不同处理,同时在色彩和结构的维度,让距离感和亲和力这种矛盾的差异同时存在,丰富客厅空间的视觉层次。
以咖色为基调,融入温暖木色,让自然和清新柔和到生活的点滴。暖色调和低饱和度的处理,为后期软装提供了无限可能。随着布艺、绿植的加入,自然、平和、舒适之感呼之欲出。
人间烟火聚集的餐厅,将自然、简约、随意融入到一杯一盏之中。一日忙碌之后,置身于美味中,放松自我。家的暖阳,如乡间小溪慢慢流淌。
PART 2
卧室
日落而息,需要一个让身心释放的空间。宽阔尺度的就寝区,搭配一整面超大面积衣柜,无一不传达着温馨舒适的信号。卧室的色调既引入客厅的暖调,又以秋的色调调入其中,落落大方地邀请心中那抹暖秋来入梦中。
PART 3
全视图
尽观全景
家的方寸空间
依旧是温暖舒适
客服
消息
收藏
下载
最近




















