查看完整案例


收藏

下载
生活大都会
精英是一种态度,是身体力行后的淡定从容,也是领秀风尚后的沉稳内敛。塔尖人群能时刻感知到时代所赋予的使命感,以榜样的力量叩问时代,让人生变得更加厚重。
我们希望透过其大气简洁的审美视野,将入眼繁华去芜存菁,让家成为专属的“生活大都会”,让更多人从他们积极的生活态度中能有所感悟并汲取力量。
01
L小姐是鸿艺源设计的一个老客户介绍过来的,作为招商双玺的老业主,之前的空间已经无法与家人现在的生活需求相匹配,所以换了这套双玺420m2的房子,在她的想象中,家应该是家人的生活大都会,低调沉稳又深藏繁华。
这套房子原户型没有太大的硬伤,但从客户需求角度出发,鸿
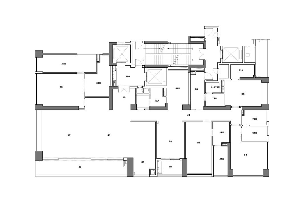
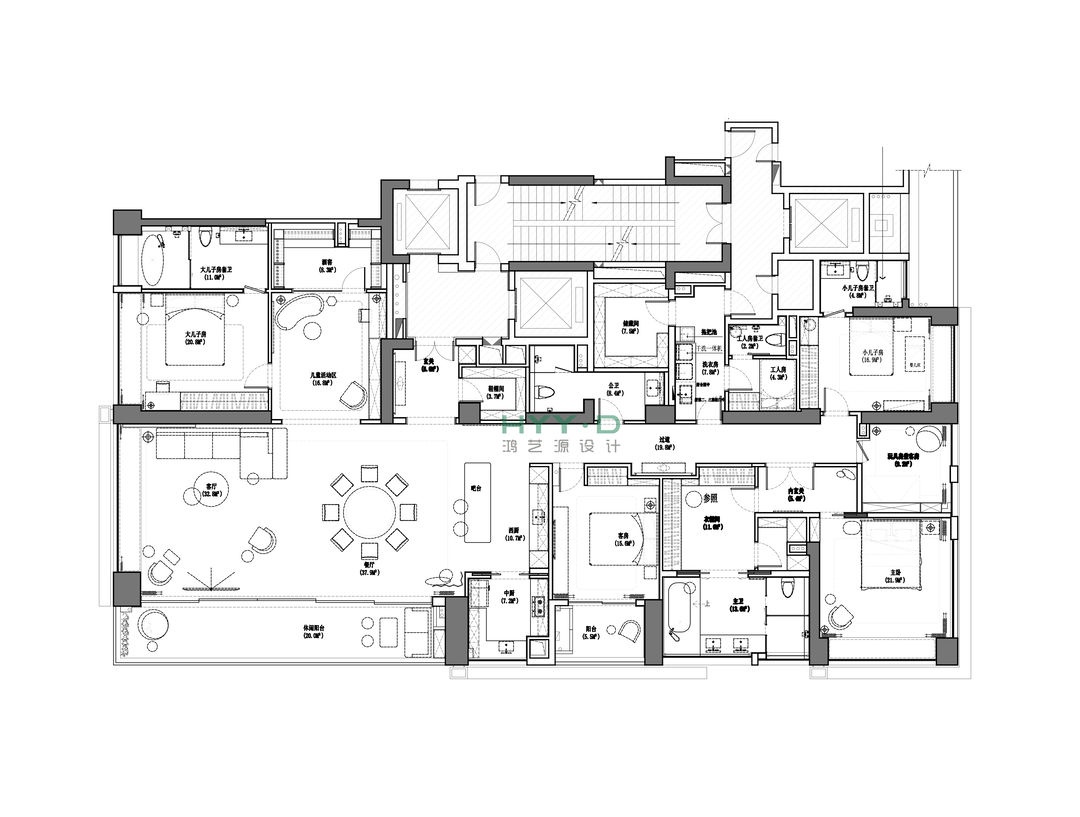
空间展示
平面布置图
改造优化:
1、考虑到屋主的观景需求,将原来景观不佳的主卧和次主卧空间对调。
2、衣帽间打开作为儿童学习区,与客餐厅联动。
3、中厨空间增加西厨功能,空间更通透。
4、主卫受原结构影响,调换洗手台位置。
5、小男孩房增加水吧台设计,方便照顾小宝宝。
项目名称 | 双玺花园
项目地址 | 广东 深圳
设计面积 | 420 m2
项目时间 | 2021年3月
硬装设计 | 鸿艺源设计
硬装总监 | 郑鸿
软装设计 | 例外软装设计
软装总监 | 徐静
遇上一个百分百信任你的业主,灵感就会像泉水汩汩而出。
——鸿艺源设计郑鸿
客服
消息
收藏
下载
最近


















































