查看完整案例

收藏

下载
La pièce principale donne le ton avec un choix de textures minutieux : chêne clair, peinture blanche et béton ciré vert dans la mezzanine qui se prolonge dans le couloir. Couleurs et matières se relaient pour séquencer l’espace et créer un parcours menant d'une pièce à l'autre. La forme en courbe du bureau-console dessiné sur mesure répond à celle des étagères et facilitent la circulation. Mobilier chiné (Emmaüs).
© BCDF Studio
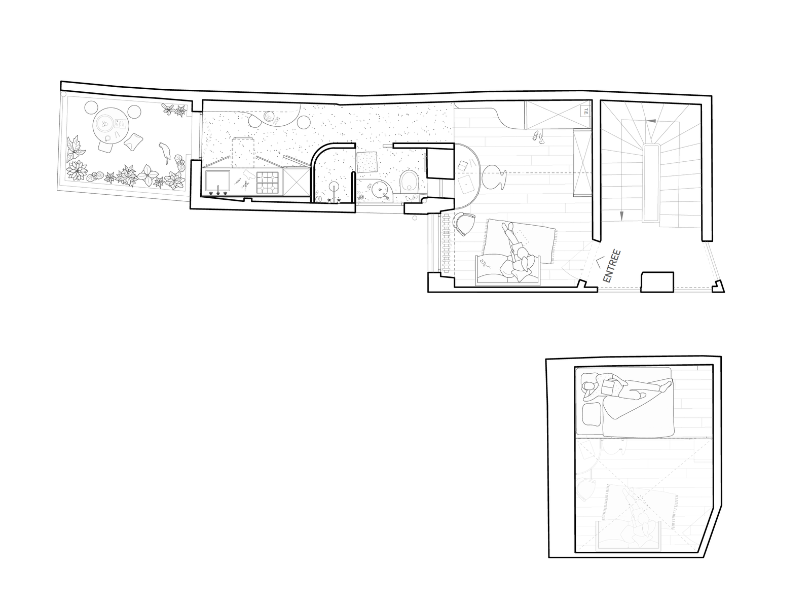
Rue de la Bûcherie, séparé de la cathédrale de Notre-Dame par la Seine, c’est un petit studio de 22 mètres carrés que ses propriétaires souhaitaient aménager pour y loger de jeunes Américains venus étudier à Paris. C’est un espace d’une pièce, avec un long couloir et, au bout, la cuisine. « C’était audacieux de leur part de vouloir en faire quelque chose. Notre parti pris a été de nous dire, “ce tout petit espace pauvre, sans qualités, haut de plafond et donnant sur une petite terrasse, il faut le suroptimiser pour qu’il soit confortable », confie l’architecte Pauline Borgia, d’Atelier Steve. Elle cherchera donc à obtenir à la fois une cuisine et une salle de bains accueillantes, un bureau, une bibliothèque, un dressing et de nombreux rangements, et pour cela maximisera l’espace en introduisant beaucoup de sur-mesure et des courbes qui facilitent la circulation. Le plan en L étant contraignant, – seul le le couloir a pu être légèrement modifié et la mezzanine existante agrandie – Atelier Steve joue sur les matériaux, au nombre de trois : plâtre et chêne dans l’espace de vie, béton vert dans le couloir qui vient couler, se répandre dans la salle de bains avec des touches de chêne comme un passage de relais de la matière, puis béton dans la cuisine où il est associé à un nouveau bois, du chêne teinté foncé façon noyer.
Les montants épais des étagères et leurs en courbes apportent des perspectives et déjouent le plan rectiligne du couloir.
© BCDF studio
La matière se transmet ainsi d’une pièce à l’autre en ajoutant une texture ou une tonalité différente à chaque nouvelle pièce. l’effet recherché est de créer des volumes différents et des matières différentes, ce qui donne à l’appartement une richesse qu’il n’avait pas au départ. « Quand les espaces sont plus grands, on essaie de garder une unité, de ne pas trop multiplier les matières ; là c’est l’inverse, mais toujours avec un lien avec la pièce précédente. » Les architectes d’Atelier Steve s’appuient également sur la forme et la courbe, car rien n’est à négliger dans ces structures aux volumes difficiles : la petite table dans la cuisine à la découpe enroulée pour utiliser l’espace là où il y en a, le bureau posé contre le mur dont l’arrondi fait la liaison en douceur entre le couloir et la fenêtre…
Les grands placards en chêne clair reçoivent des poignées d'épaisseur identique à celle des étagères. Au-dessus, la mezzanine et son mur en béton ciré vert.
© BCDF studio
Les rangements sont partout, et sont malins… dans la cuisine, une colonne intègre en hauteur le petit réfrigérateur évitant le sempiternel « mini-frigo-d’étudiant que-l’on-atteint-en-se-baissant » – ainsi rehaussé, il offre l’impression d’évoluer dans une « vraie » cuisine, pensée pour des séjours longs. « Nous aurions pu la réduire mais c’est un appartement à vivre au quotidien. » Les rangements sont beaux aussi, en placoplâtre, comme si l’on avait épaissi les murs. « Grâce à ce jeu, on est parvenu à offrir toutes les fonctions attendues, ce qui n’était pas évident parce que c’est vraiment tout petit. » Avec beaucoup de cachet pourra-t-on ajouter. Car entre le mix de matières parfois inattendues, comme le béton ciré à l’aspect velouté – une spécialité d’Atelier Steve – et le chêne clair ou foncé et les murs blancs, le style n’est pas oublié. Avec des pièces de mobilier choisies, souvent chinées, et des détails de réalisation qui font toute la différence, ainsi du plateau du bureau en escalier pour un aspect console. « Parfois on croit que dans un très petit espace, il faut en faire le moins possible, ne pas surcharger… Au contraire, plus on l’investit, plus on vient l’optimiser et plus il paraît grand, en séquençant les espaces et en créant des modules dans ce (petit) module. »
La cuisine ouvre sur la terrasse par une grande porte-fenêtre. La table de cuisine réalisée sur mesure est en chêne teinté foncé. Ses courbes font vivre l'espace en utilisant ses moindres centimètres. Les éléments de cuisine intègrent tous les essentiels pour un quotidien confortable, jusqu'au lave-linge.
© BCDF Studio
La salle de bains, entièrement habillée de béton vert, comme un tissu posé et enveloppant. Céramiques (Bordallo Pinheiro).
© BCDF Studio
Le plan de l'appartement.
© Studio Steve
客服
消息
收藏
下载
最近









