查看完整案例

收藏

下载
La salle à manger est ouverte sur la cuisine, à droite, et le salon. L'architecte et designer Martin Massé a traité les trois espaces comme un seul, unifiant couleurs et matières naturelles : bois de chêne, béton ciré beige, peinture blanche. Set design (Appartement Témoin).
Arthur Fechoz
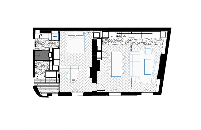
Dans le quartier Condorcet, dans le IXe arrondissement, c’est l’appartement d’une artiste peintre que l’architecte et designer Martin Massé se voit proposer de revoir entièrement. Distribution, cloisonnement, emplacement des pièces d’eau… l’objectif est d’ouvrir complètement les espaces de cet intérieur qui se divise en deux pièces, séparées par un mur porteur contenant des conduits de cheminée, donc intouchable. « On a pris le parti de retrouver dans la grande pièce du fond le salon, la salle à manger et la cuisine, tout ouverts, la cuisine calée le long du mur gauche, composée de meubles bas pour éviter une présence trop imposante dans le salon. » De grandes colonnes de rangements sont intégrées dans les murs comme si elles en faisaient partie et un long linéaire d’éléments en bois permettent de dégager la vue et d’effacer le plus possible leurs fonctions.
La cuisine intègre tous ses éléments électroménager derrière des façades en chêne teinté. La crédence et son étagère en béton ciré accueillant, comme le plan de travail, des objets de décoration éloignés de l'univers culinaire contribuent à faire disparaître sa fonction première. À gauche, une lampe en céramique de Denise Castaing.
Arthur Fechoz
Un plan innovant
Dans cette nouvelle organisation, le premier espace, paradoxalement, revient à la partie nuit. Pour atténuer la sensation d’avoir à traverser la chambre pour se rendre dans le salon, l’architecte dessine un meuble bureau dont les étagères délimitent un espace mi-passage mi-bureau qui protège la chambre proprement dite que l’on oublie visuellement. Les étagères et leurs extrémités arrondies sont une évocation un peu modernisée du style Art déco, appuyé par l’utilisation d’une laque légèrement crème associée au même bois que dans la cuisine pour le plan de travail du bureau réalisé sur-mesure – du chêne teinté, comme le parquet. Car dans le choix des matières, Martin Massé privilégie la qualité à la quantité, et le bois et le béton ciré sont utilisés en rappel d’une pièce à l’autre.
Dans le salon de tables basses de Jean-Guillaume Mathiaut entourées d’un guéridon en wenge de Martin Massé, d’un petit fauteuil signé Frédéric Pellenq (le tout Kolkhoze) et d’un canapé style Kagan. Au-dessus de la cheminée, une peinture de Christiane Pooley Topali.
Arthur Fechoz
Des matières naturelles
Dans la cuisine, la crédence ainsi que son étagère sont en béton ciré, que l’on retrouve en bandeau au sol devant les éléments bas en chêne teinté. « L’impression voulue, c’est celle du béton ciré qui remonte sur le mur… », à la façon d’un cyclorama. Dans la salle de bains, ce sont des mosaïques en pâte de verre crème qui dominent en all-over, associées au rose pâle d’une vasque et d’une petite niche en corian moulé dans la douche pour une finition parfaite. Les tonalités naturelles sont donc de mise : chêne, béton ciré très clair et peinture blanche pour les espaces de vie, en lien avec l’activité de la propriétaire qui souhaite pouvoir y exposer ses œuvres et dans un environnement neutre. Dans ce parti-pris de matières naturelles le mobilier choisi assume sa tendance craft, se composant entre autres dans le salon de tables basses de Jean-Guillaume Mathiaut entourées d’un guéridon de Martin Massé, d’un petit fauteuil signé Frédéric Pellenq et d’un canapé style Kagan. Dans la cuisine, une lampe en céramique de Denise Castaing achève d’effacer les fonctions pour créer un univers optimisé et rationnel infiniment attachant d’élégance et de naturel.Set design
Aux tonalités foncées du parquet, de la cheminée répondent les murs, les tissus et un tapis clairs. Devant un petit fauteuil de Frédéric Pellenq, des tables basses de Jean-Guillaume Mathiaut (Kolkhoze). Œuvre de Christiane Pooley Topali.
Arthur Fechoz
La lumière éclaire abondamment l'appartement dans une clarté veloutée. Devant un canapé courbe style Kagan, des tables basses de Jean-Guillaume Mathiaut (Kolkhoze).
Arthur Fechoz
De grands placards intégrés toute hauteur habillés d'une douce peinture blanche se prolongent en étagères aux arrondis sensuels dessinées par Martin Massé. Suspension Pendolita des années 1960. Set design (Appartement Témoin).
Arthur Fechoz
L'espace bureau et son meuble-séparation menuisé habillé de laque crème intègre un plateau en chêne comme les portes des éléments de cuisine. Les arrondis horizontaux et verticaux adoucissent l'esthétique dans un clin d'œil paquebot. Set design (Appartement Témoin).
Arthur Fechoz
La chambre est installée en second jour, protégée du passage par le meuble-bureau-claustra.
Arthur Fechoz
Les tonalités de blanc, de beige et de crème sont déclinées en harmonie.
Arthur Fechoz
Dans la salle de bains, ce sont des mosaïques en pâte de verre crème qui dominent en all-over, associées au rose pâle de la vasque et d’une petite niche en corian moulé dans la douche pour une finition parfaite.
Arthur Fechoz
Des Glo-Ball (Flos) sont intégrés dans les miroirs au-dessus de la vasque. Les tons sont poudrés et délicats. Set design (Appartement Témoin).
Arthur Fechoz
Le plan de l'appartement avant les travaux.
Le plan de l'appartement après les travaux.
客服
消息
收藏
下载
最近
















