查看完整案例

收藏

下载
Dans le living à la vue plongeante sur Paris et le canal, deux fauteuils Utrecht (Cassina) et une lampe d'Isamo Noguchi encadrent une table basse d'Alexander Girard (Knoll). On aperçoit sur la terrasse un fauteuil AA Butterfly vintage.
© Julie Ansiau
C’est l’appartement d’un couple de quinquagénaires qui y vivent depuis leurs années étudiantes, à l’époque en colocation, depuis avec un enfant qui a grandi et quitté les lieux. Situé à un étage élevé d’un immeuble des années 1970 quai de Jemmapes, ce 70 mètres carrés offre une vue imprenable sur tout Paris. « Ils ont eu beaucoup de mal à le quitter, alors ils l’ont acheté, s’amuse l’architecte Marie Deroudilhe, à qui le couple a confié la rénovation de l’endroit. La vue, la lumière, l’espace libéré par le départ de leur enfant les convaincra de rester, après quelques transformations bien sûr. « C’était particulier car la propriétaire, une amie, est elle-même architecte, renommée, mais pas du tout dans l’architecture d’intérieur ni les petites surfaces, elle m’en a donc confié le projet. » Dans le brief, deux exigences : introduire du bois et ne pas dénaturer l’ADN 1970 de l’appartement.
La salle à manger est ouverte sur le salon. Une banquette menuisée en tissu (Kvadrat) crée une séparation douce avec la cuisine. Dessus, un vase de Sophie Vaidie (galerie Hors-Séries), bouquet (Ephémère Fleuriste). Sur une table EM de Jean Prouvé (Vitra), des céramiques Vallauris vintage. Autour, des chaises vintage. Suspension de Jasper Morrison (Flos).
© Julie Ansiau
Un espace optimisé
Une série de petits placards et de recoins sont supprimés pour créer une grande circulation/dressing au centre de l’appartement, qui met en valeur son côté traversant. Elle offre une large percée visuelle sur le canal Saint-Martin d’un côté, l’hôpital Saint-Louis et ses jardins de l’autre. « Articulant le projet, cette vaste circulation accueille de nombreux rangements sur toute la hauteur des murs, des dressings, optimisant le plan comme tout petit espace qui se respecte. » Une grande porte à galandage vient l’occulter visuellement de la pièce de vie, permettant d’isoler phoniquement la chambre et le bureau, ce dernier appelé à une occupation régulière pour cause de télétravail. Dans cette pièce à la fois chambre d'appoint et bureau la niche bureau se loge à la place d’un ancien dressing.
La banquette menuisée en chêne crée une séparation en T entre la cuisine et le salon, revêtant un rôle 3 en 1 : accueillir les convives, libérer un maximum de place pour la partie séjour, dissimuler discrètement l'électroménager et la cuisine proprement dite.
© Julie Ansiau
Une vaste pièce de vie
La pièce de vie adopte une structure ouverte accueillant la cuisine, la salle à manger et le salon dans un même espace. « On est dans un grand volume rectangulaire dans un coin duquel on a installé la cuisine sur laquelle vient se poser une banquette pour plus de convivialité… » Dans la volonté de maintenir la cuisine ouverte tout en lui redonnant un rôle plus affirmé – les propriétaires cuisinent beaucoup – l’architecte la compacte dans une organisation calculée au millimètre. Une banquette fait la transition entre le salon, tout en apportant un gain de place appréciable, évitant la circulation autour de la table et la multiplication d’assises qui dévorent l’espace.
Le plan de travail et la niche de cuisson sont en granit brésilien White Macaubas. Une pierre qui réchauffe l'esprit scandinave des lieux sans le côté ostentatoire d’un marbre luxueux
© Julie Ansiau
Des tons naturels
Vue depuis le coin repas du large espace circulation/dressing et ses grand placard toute hauteur en chêne. Cette pièce traversante peut se fermer par une porte coulissante, en chêne également.
© Julie Ansiau
Mi-pièce mi-couloir, la circulation est aussi une respiration et un pivot au cœur de l'appartement.
© Julie Ansiau
La simplicité de la chambre est tout travaillée : la tête de lit en chêne, réalisée sur mesure, intègre interrupteurs, prises et chevets. Appliques de Arne Jacobsen et de Le Corbusier. Au mur, un collage de Maxime Ansiau. Voilage (Création Baumann).
© Julie Ansiau
Dans le bureau/chambre d’appoint, la niche bureau prend la place d’un ancien dressing, elle est réalisée en chêne clair dans une unité de ton avec le sol et toutes les réalisations en bois de l'appartement.
© Julie Ansiau
Dans le décor menuisé aux lignes graphiques et minimalistes de la niche bureau, la chaise Bold (Moustache) ressort parfaitement. Applique Tolomeo (Artemide). Œuvre photographique de Marie Moroni.
© Julie Ansiau
Ambiance ivoire dans la salle de bains avec les grands carreaux Pico des frères Bouroullec (Mutina) et un long meuble-vasque en Corian.
© Julie Ansiau
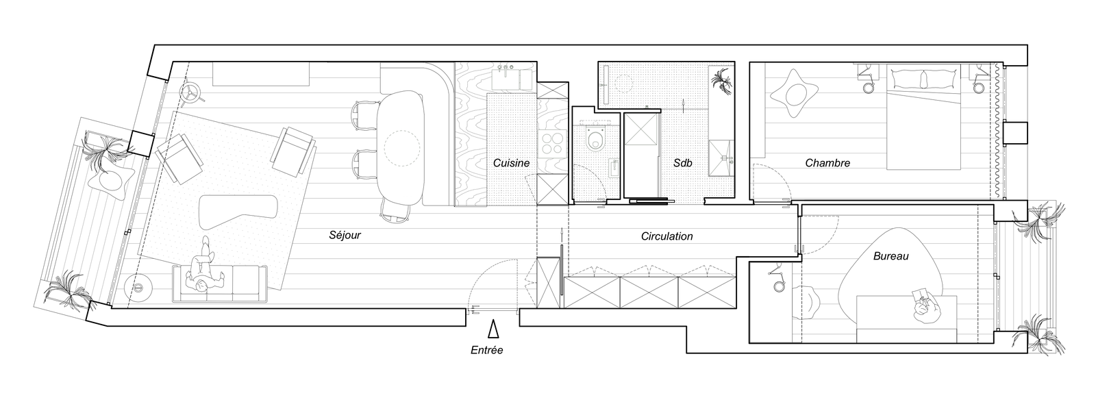
Le plan de l'appartement avant les travaux.
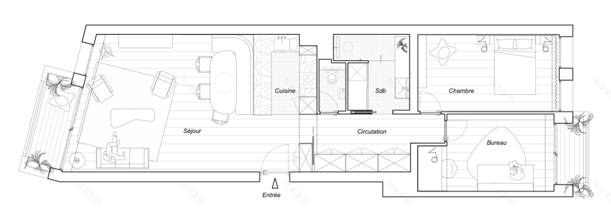
Le plan de l'appartement après les travaux.
客服
消息
收藏
下载
最近















