查看完整案例


收藏

下载
背景
CONTEXT
Le Vaud新的社区大厅是一座多功能基础设施,为整个村庄社区的居民提供服务,将他们聚集在一起。建筑可以用来举办体育比赛、演出和社区活动,在补充现有的校园设施的同时,为村庄和周边社区带来更多可能。
Le Vaud’s new community hall is a multipurpose public infrastructure designed to serve and bring together the entire village community. Hosting sports activities, shows and community events, it supplements existing school facilities while opening up new possibilities for the village and its surrounding communities.
▼建筑外观,external view of the building
所在地
LOCATION
大厅的入口位于连接村庄教堂和学校入口的道路上。由裸露的混凝土制成的前庭标识出了建筑的入口空间,庭院三边分别与运动场、教堂公墓和学校现有的操场相接。以此为基础,建筑透明的结构顺着向下的坡道展开。基地北侧可以眺望Jura Mountains的山脊;南侧则是牧歌般的勃朗峰和阿尔卑斯景观。
The hall’s entrance is sited very appropriately on the road connecting the village church and the school entrance. A forecourt of exposed concrete marks the venue’s entrance, a connecting link bordered by the sports field, the church cemetery and the existing school yard. With this base line as its anchor, the building’s transparent structure follows the downward slope of the terrain. To the north, the ridges of the Jura Mountains can be seen; to the south the site offers idyllic views over Mont Blanc and the Alpine landscape.
▼总平面图,site plan
建筑以基地的自然坡度为基础分配功能空间。裸露的混凝土板覆盖技术设施,包括更衣室和机械房,形成了一座宽敞的阳台,延伸到室外前庭。该空间面向主厅开放,拥有良好的视野,光与景观成为了新的室内活动的一部分。
The building uses the site’s natural slope as the basis for its functional programme. A slab of exposed concrete covers technical facilities such as cloakrooms and machine rooms, forming a large balcony that extends the exterior forecourt. This generous space opens onto the main hall and the view: light and the landscape play their part in the new indoor activities, too.
▼顺应地形的建筑,building following the terrain
设计和体量
DESIGN & VOLUME
建筑的体量看上去仿佛被压入斜坡,形成了不同高度的屋顶,让建筑的尺度变得模糊而抽象。尽管有着巨大的体育设施,这样的手法减少了建筑对环境的冲击,创造出了一种令学生舒适的尺度感。多功能空间本身与自然地形整合在一起,独特的屋顶轮廓呼应了学校现有建筑。
The building volume looks as if it has been compressed to espouse the slope, creating a roof with peaks of varying heights – a design feature that makes the scale of the building ambiguous and abstract. Despite the significant size of the sports facilities it houses, this reduces the building’s impact, creating a sense of scale that is comfortable for schoolchildren. The multipurpose space of the hall itself is integrated with the natural terrain, while its indented roof outline echoes the roof shapes of the existing school buildings.
▼不同高度的屋顶,roof with peaks different heights
建筑内部的几何形态和外围护结构的形状并不完全一致。两个几何体量略微错开,内部空间需要满足体育设施严格的标准和规范;外部则更加自由,在融入建成环境的同时,成为了村庄的醒目地标。小平面效应使得细长的屋脊仿佛在学校和农田之间摇摆。巨大的烟囱结构矗立在屋顶上,扩展了屋面体量,令人联想到农房或村舍的建筑原型。内外体量之间的错位在建筑山墙的三角形开口处最为明显。三角形窗户镶嵌在更大的木制三角框架中,形成保护性的天窗,将阳光滤入室内。夜晚,它们展现出了建筑内部的体量,创造出了如同美国印第安人传统帐篷一般的效果,带给山墙立面独特而富有趣味的外观。
The geometry of the building’s interior space does not exactly match the geometry of its outer envelope. The two geometries are offset: the interior conforms to the highly restrictive, standardised specifications of regulations covering sports facilities, while the freer external form is designed to blend in with its built environment and create a distinctive landmark in the village. With the faceted effects created by its elongated ridges the roof seems to sway between the school and the surrounding farmland. A large chimney structure stands out on the roof, appearing to extend across the roof mass – reminiscent of the architectural typology of farm or cottage. These offset geometries are most clearly apparent in the triangular openings that structure the design of the building’s gables. Glazed triangular windows are set within larger-scale wooden triangles, protected by claustras which filter the light. By night they reveal the interior of the building volume, creating an effect reminiscent of a Native American tipi and giving the gable façades a distinctive, intriguing appearance.
▼入口立面,entrance facade
▼屋顶上的烟囱,chimney on the roof
相对地,南北立面全部由玻璃制成,完全通透,突显出建筑飞机棚一般的结构。大厅充满了阳光。入口所在的北立面十分低矮,巨大的挑檐保护接待区不受Jura山脚恶劣天气的影响。南侧立面上类似的悬挑保证了有效的遮阳。
The north and south façades, by contrast, are fully glazed and transparent, emphasising the building’s hangar-like aspect. The hall is flooded with light. The north façade, with the entrance, is very low and protected by a large overhang – shielding the reception forecourt from the typical weather conditions at the foot of the Jura mountains. A similar overhang on the south side ensures effective solar protection.
▼南立面,south facade
▼悬挑提供遮阳
overhang providing shades for the space
楼梯和舞台
STAIRCASE & STAGE
主楼梯和舞台嵌在墙内,墙体仿佛被挖空。楼梯被设置在三角形的凹陷中,产生了一种受保护的神圣感。楼梯间中设有三角形开窗,阳光从中倾泻而下。舞台位于凹进的立方体中,空间中除了舞台本身,还包含所有相关的技术设施。一面三角形窗户成为了舞台的背景。这两个嵌入墙壁的空间回应并服务于主空间,后者由接待区和大厅本身组成。
The main staircase and the stage are set into the body of the walls, as if they have been hollowed out. The staircase is set within a triangular recess, which protects and sanctifies it. The staircase has its own triangular window which brings light flooding in. The stage is set in a recessed rectangular cuboid that accommodates not just the stage itself but all its various related technologies. A triangular window provides its backdrop. These two recessed spaces echo and serve the main space formed by the reception area and the hall itself.
▼接待区,reception
▼楼梯间设置在三角形凹陷中,staircase placed in the triangular recess
▼楼梯间
staircase
信号箱
«SIGNAL BOX»
阳台接待区中矗立着一个信号箱一般的独立结构,其中设置了建筑的交流和问询空间,包括一间小吃店。在需要的时候,巨大的门扇可以依附在结构上,形成一间单独的会议室或教室。
A free-standing structure stands like a signal box on the balcony reception area, hosting the building’s communication and information functions as well as a bar. Large doors can be attached to the structure to close off a separate meeting/teaching room when required.
▼接待区下方的功能空间,functional space under the reception
▼木制隔断与走廊,wooden partition and corridor
自然通风
NATURAL VENTILATION
南北立面上的气窗与当地盛行风的方向一致,为建筑提供了自然通风。
The building is naturally ventilated by means of transom openings on the north and south façades – sited to align with the prevailing winds in this region.
结构
STRUCTURE
两个山墙里面是主要的承重墙,支撑起巨大的木梁。这样的结构形成了完全没有阻碍的内部空间,可以沿着墙面轮廓自由扩展。
体育活动需要的所有技术设施,如吊环、可移动篮筐、灯具等,全部被安装在主厅中的U型脊梁上,使得天花上看不到任何技术设备。主梁之间的次级结构由预制Lignatur吸音板组成,支撑屋面的同时为体育活动提供必要的声学解决方案。
The two gabled façades are the main load-bearing walls, supporting giant wooden beams. This leaves the internal space entirely unobstructed: free to expand and contract following the outline of the walls.
The U-shaped ridge beam of the main hall incorporates all the technical equipment required for sports activities (rings, movable basketball hoops, lighting, etc.), which leaves the hall ceiling free of any visible technology. Between these main beams, secondary structures made of Lignatur prefabricated acoustic panels support the roof and provide the acoustic solution necessary for sports activities.
▼体育馆,设备安装在脊梁上,stadium, all the equipment installed on ridge beam
建造和材料
CONSTRUCTION & MATERIALS
材料方面,Le Vaud新社区大厅从周围的环境中汲取灵感。建造使用的主要材料为采伐自当地森林的木材,标准化的金属薄板常见于该区域的农场,而喷砂混凝土则与现有的学校一致。这些简单的材料在项目中呈现出复杂的细节和形态。
In material terms Le Vaud’s new community hall draws inspiration from its local surroundings. The main materials used in its construction are timber from local forests, the standard metal sheeting typically used by farms in the area, and the sandblasted concrete of the existing school – simple materials that are used here to configure sophisticated details and complex forms.
▼三角形开窗细部
details of the triangular opening
大火与重生
FIRE & REBIRTH
建筑本身有着极为特殊的过去。2016年7月4日,项目开放前一个月,建筑被一场大火彻底烧毁。经历过一段时间的修整和哀悼后,重建过程为人们提供了重新审视项目的机会,实现了更加细致入微的建造。这场建筑灾难以及随后的重生,成为了一本即将出版的书籍和摄影项目的主题。
This building has its own very unique history. On 4 July 2016, one month before its opening, it was entirely destroyed by fire. Following an interval of recovery and mourning, the reconstruction process provided an opportunity to revisit and further refine every last detail of the construction. This architectural disaster, and the rebirth that came after it, are the subject of a forthcoming book and a photographic project.
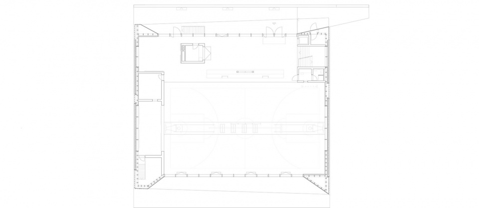
▼底层平面图,lower floor plan
▼上层平面图,upper floor plan
▼北立面图,north elevation
▼西立面图,west elevation
▼剖面图,section
▼细部,details
Project architects: LOCALARCHITECTURE, Lausanne | Laurent Saurer, Manuel Bieler, Antoine Robert-Grandpierre, Giulia Altarelli, Elsa Jejcic
Wood engineer: Ratio Bois Sàrl, Ècublens
Civil engineer: 2M ingéniérie civile SA, Yverdon-les-Bains
CVS engineer: Weinmann-Energies SA, Èchallens
Lighting: Etienne Gillabert, Paris; Aebischer & Bovigny, Lausanne
Geometric engineer: Bovard & Nickl SA, Nyon
Carpenter: Amédée Berrut SA, Collombey-Muraz
Photographer: Matthieu Gafsou
Location: Grand’Rue 4, CH-1261 Le Vaud, Suisse
Client: Commune de Le Vaud
Conception & realisation: 2014-2018
Built area: 1209 m²
Volume: 9207 m³
Awards:
Distinction romande d’architecture 2018
Mention at Prix Lignum – Western Switzerland 2018
客服
消息
收藏
下载
最近























