查看完整案例


收藏

下载
| 关于 |
無一内建筑设计事务所
我们是一个为生活而设计的团队,确切的说,有关于这个时代的一些新的生活方式。WU1 的设计永远来自于生活的需求,这是我们坚定的价值观,作品从毫米到公里,从空间跨越到视觉、品牌,我们关注的永远是设计中人与生活的关系。
我们用自己的方式在理解不同的需求和在这个时代中不同的意义,人对生活的需求并不是孤立存在的,社会在时代中的变革赋予需求不同的形态和意义。
| 尘光 |
通透空间的温柔 | 中国·扬州
打开空间,让阳光住进来
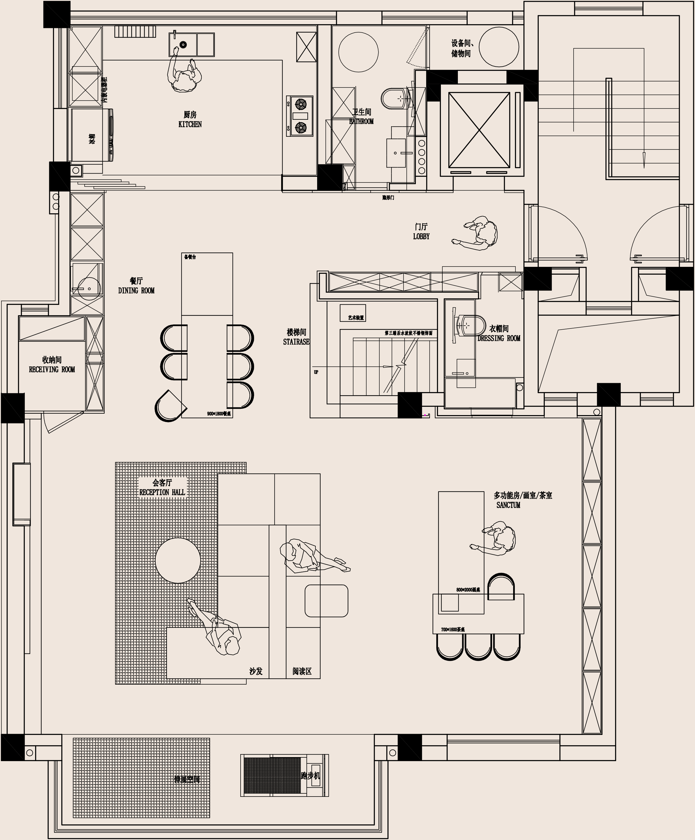
利用三层叠墅空间,将公共活动区与私密卧室区完全分开来,为家人共处时刻,创造了更多场景可能性。
01客厅
Living room
艺术是一种可以让生活有序的形式,思考本质延展空间形状,光影流连,自在如风。无论连榻而坐,还是窗边漫步,空间打破人们对客厅的固有印象,它是立体且温柔的,每一面都是另一种体验。
生活集中在这一个空间里,健身、品茶、分享、阅读…可以同时发生,无界的动线连接客厅区和餐厅区之间的联系,动与静的元素和谐共处。
02餐厅
Restaurant
时间的流逝悄然发生,日常优雅地嵌入现代结构,不寻常的事物得以形成。打破平面性,令共享与独处两者相融,空间的边界不断被模糊,形式始终为生活服务。
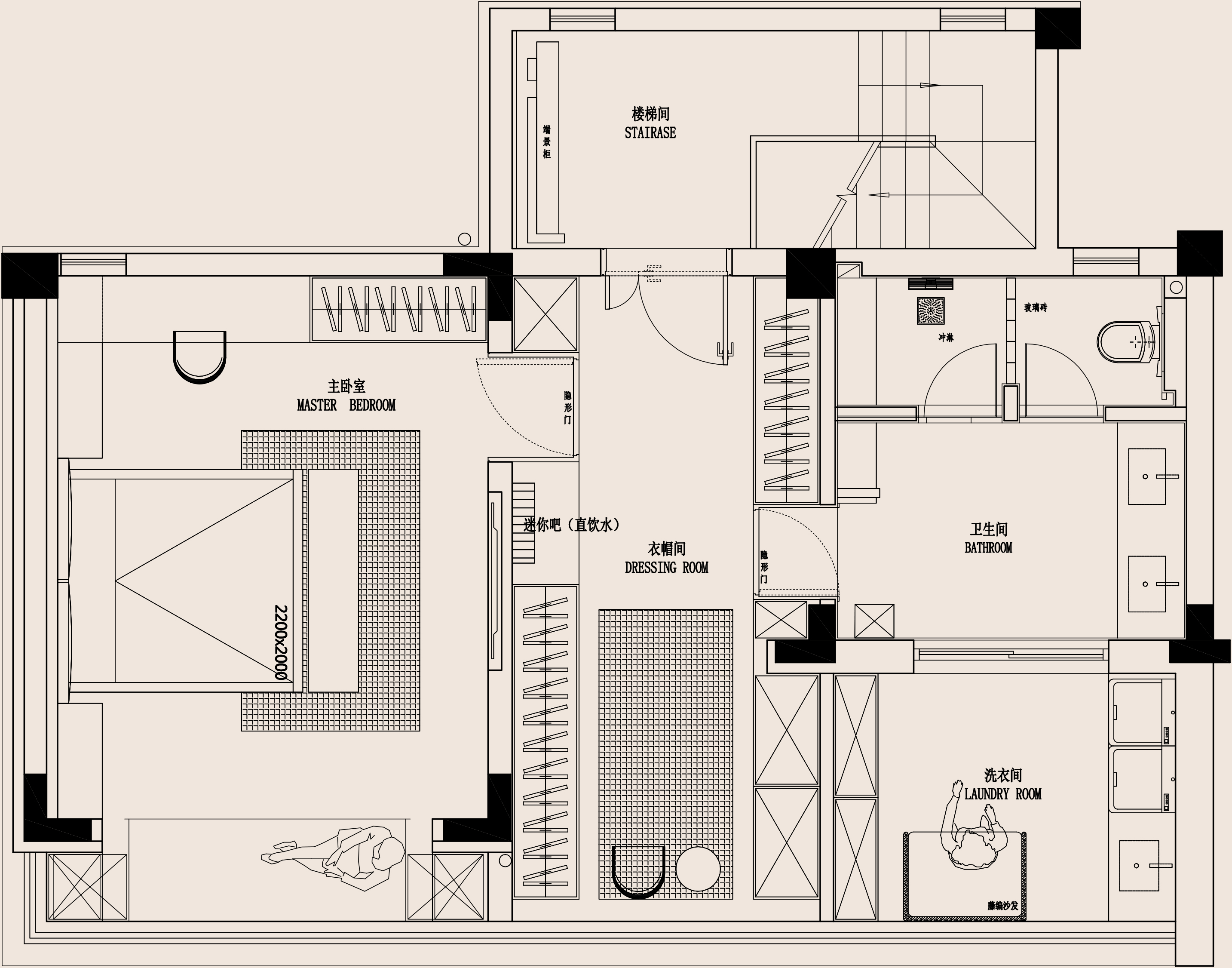
03 卧室 Bedroom
简单的色彩,漆上同样温柔的墙面,尽可能地将情感与诗意,囊括于游走的阳光、分明的结构中,当时间不断变化,但保留着本质的属性与意义。
04 卫生间 Bathroom
圆、纹理与白色,将自然感的材料与场景汇集到一起,装饰值降至最低,极简的基因即刻显性,毫无束缚的空间,给予日常极大的自由感。
05 其它 Other
随光而行,步履间,驻足时,扩容身与心的无限世界。
1F
2F
3F
左右滑动查看更多
项目名称 |
项目类型 |
项目面积 |
项目坐标 |
设计出品 |
主案设计 |
设计团队 |
完工时间 |
项目视觉 |
项目类型 |
项目摄影 |
项目灯光 |
项目木作 |
小编插话
如您需要设计
联盟好课
延伸阅读
原木风私宅,逐光踏影,跃动的活力 | 远校设计
147㎡ 现代极简,内敛雅致之家 | 宏福樘设计
内容策划 / PRESENT
撰文 Writer:無一内建筑设计事务所 排版 Editor:小九
图片版权 Copyright :無一内建筑设计事务所
合作/投稿联系 15011229364
让设计更有价值
设置“星标”第一时间接收文章推送!
客服
消息
收藏
下载
最近
















































