查看完整案例


收藏

下载
这是一处为建筑师老余夫妇改造的度假屋,作为孩子游乐和家庭藏书之用,基地位于他们在桃花源的私宅。
来自同行的设计委托使这个项目分外特别,看似随意的空间来自对尺度的分毫必争。
设计巧妙地利用了坡屋顶下的高差,将 100 多平米的原始户型拆分成了“三合院”,使用面积翻倍,共享空间连续且舒适,又能够为主人、孩子和客人提供三个私密的套房。
▼入口玄关的书架©朱清言
▼儿童游戏区的夹层©朱清言
▼整体视角©朱清言
▼从客厅望向厨房©朱清言
▼从餐厅望向儿童游戏区©朱清言
原始户型是 Y 型的两室一厅,但却有着比室内更大的内庭院,这可能是老余夫妇买下这处房子的全部理由。推开院门,无需精致打理的庭院,有着“开轩面场圃,把酒话桑麻”的朴实亲切。
▼庭院©朱清言
▼自在的风景©立木
三合院
相互借位与咬合,主卧兼做书房、衣帽间与木工房,儿童房内含游戏区,而客卧则嵌于餐厅上方。
除了“实”的三个盒子外,度假屋内还有“虚”的三个盒子,作为游乐、树屋与冥想使用,这是一种有趣的呼应。
▼妙趣横生的儿童区©朱清言
▼儿童夹层上方©朱清言
▼惬意躺平©朱清言
▼餐厅上方预留为客卧©朱清言
▼通往客卧©朱清言
▼客卧望向主厅©朱清言
▼餐厅与客卧©朱清言
▼可整体封闭的客人区©朱清言
▼主卧利用层高与书房合用©朱清言
▼夹层书房©朱清言
▼书房与儿童房的巧妙对望©朱清言
▼从室内望向冥想区©朱清言
▼庭中远眺冥想区与泳池©朱清言
▼孩子们玩耍时的泳池©业主
住宅是一种充满生命力的空间,它最可贵的在于其无穷无尽的成长性。设计以精确控制呈现随意轻松的空间,而建筑师夫妇将是未来时间里真正的设计师,用日常生活来凝结氛围与回忆。
▼质朴野趣的庭院©朱清言
开始的十年,他们和孩子们将在这里度过周末和假期,偶尔会有客人过来,喝酒聊天,小住几日,自有桃李春风一杯酒的意趣;等孩子们长大离家,这里又变成常驻的寓所,有时孩子们带着他们的孩子归来团聚,更多则是江湖夜雨十年灯的守候。这个“家”需要尺度适宜、紧凑舒适、易于打理,人多时各得其所,人少时不显空旷,有一种恰到好处的分寸感。
▼人多时各得其所,人少时不显空旷
©朱清言
▼使用中的厨房
©朱清言
▼儿童夹层望向客厅©朱清言
▼拉开窗帘迎接满园春色©朱清言
▼打开客卧门窗,通透的整体空间©朱清言
度假屋同时满足了团聚和独立的双重需求,在极致状态下,家里的每一个人——男主人、女主人、孩子、客人都能拥有一方完全独立的小天地,可能是在这个信息爆炸时代我们对于度假的最终幻想。
▼剖面图©立木
▼改造前平面图©立木
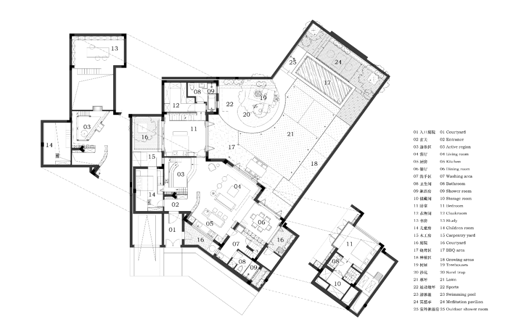
▼改造后平面图©立木
有酒重携
小园随意芳菲
项目地点:安吉.绿城桃花源
设计单位:立木 L&M
项目经理:郭岚
主持设计:刘津瑞、冯琼、邹明溪
设计团队:李佳妍、赖武艺、许俊威、张恩东、杨绪伦、林小暇、谢舜冰、李美珊、吕吴凡
设计顾问:申鹏
设计时间:2019.07-2019.10
施工负责:沈舟
项目摄影:朱清言
项目委托
86+15000410160
媒体合作
客服
消息
收藏
下载
最近







































