查看完整案例


收藏

下载

翻译
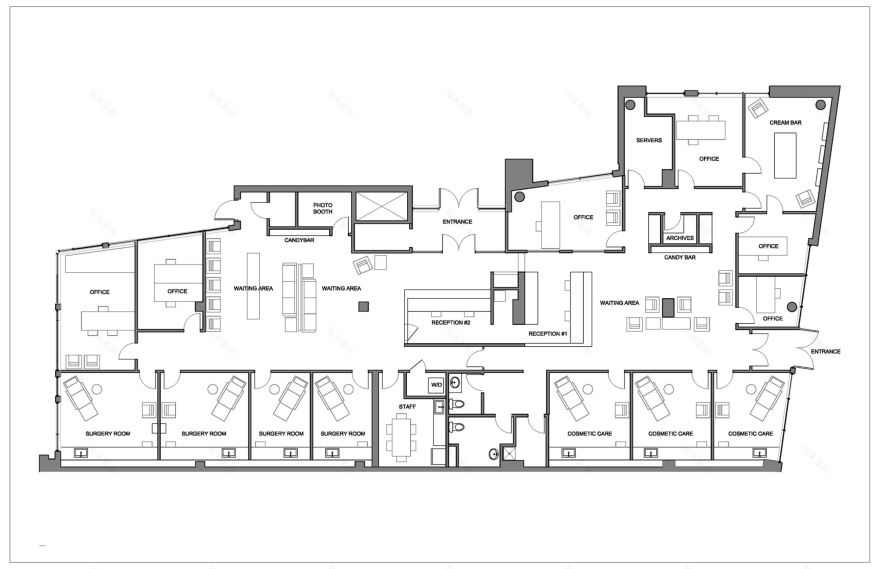
ADHOC architects is proud to announce that his project for the Univers NuFace cosmetic care clinic in Laval is now open. One of a kind, Univers NuFace offers a fantastic experience to its client transporting them into a whole new world. An alternative space which is in between the luxury boutique and a hi-tech laboratory.
Our team designed a space, which is both luminous, clean and fun. The challenge was to create in the new space a professional and immaculate image while also transmitting NuFace's owner's extravagant personality. Their desire to build a candy bar and to embellish the space with full-size Star Wars characters pushed the project forward.
Our concept was initially inspired by the butterfly's image that ties all of Univers NuFace's corporate identities together: NuFace, NuAddiction and Délivrance. It was of utmost importance that the new clinic embodied the harmony between the different brands while also allowing their specific characteristics to shine.
ADHOC's strategy was to create a clean and luminous space which would link the different parts together through colors, textures and materials. The resulting look is one of unity and coherence that allows for each zone's specificity to stand out. Easy and low-cost methods such as the creative use of contrasting paint colors were used to create different atmospheres within the consultation rooms without adding walls. Furthermore, the use of digital parametric tools allowed our team to create from a microscopic texture of a butterfly's wing a motif reinterpreted in the clinic's different zones. The result is abstract, contemporary and fundamentally linked to our client.
The short deadlines were also a challenge for our team but the amazing relationship between the different actors in the project created a resounding success. A fruitful collaboration with the contractor and with the client is even more important in such a fast-track project. In the end, this project truly embodies the definition of ADHOC: an architecture firm dedicated to solving specific design challenges by working outside of the traditional work patterns and by collaborating with a rich variety of partners.
客服
消息
收藏
下载
最近




















