查看完整案例


收藏

下载
房屋信息
菜卷の菓子屋位于浙江嵊州,是一个异地项目。从前期跟阿菜的沟通到方案设计以及后期的施工配合全程都是云服务,方案的落地性除了客户的信任也离不开专业的施工团队的配合,有幸的是这个项目兼具两者,才有了最终的呈现。
房屋信息
户型 三室
使用面积 85平米
房屋位置 浙江,绍兴
装修花费 30万元
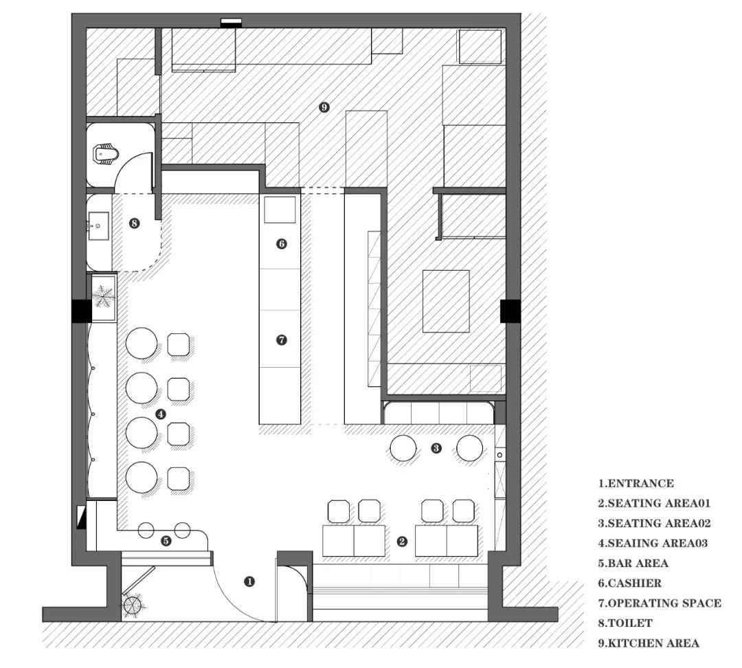
户型图
原始户型是一个10.5*8.5*4.7的box。
空间密布的消防管
原始进门下吊处层高只有2.67米,与里面高差较大
平面布局图:1.将门头整个外扩,与左右两边大柱齐平,多出了进门店的一个缓冲空间,同时室内空间往外延展,多出了卡座区域整个门头变得更有层次
2.结合厨房设备方以及客户的需求,将后厨区域合理安放
3.不同客座区的规划,满足不同客人的需求,同时丰富其体验感
4.双台面操作与收银有效的结合
5.出品窗口与搁板造型有机的结合
6.洗手区利用抬高及隔断的手法,作为卫生间与客座区的一个缓冲。
门头
原始门头比较扁平,缺少层次,并且同旁边商铺比相对内退,不太显眼。
将门头整个向外延伸,增加了进入门店的缓冲区,以及悬浮卡座区
室内
进门左侧的卡座区利用弧形与软垫增加包裹感与舒适度。
卡座与洗手区利用花台与长虹玻璃隔断作为过渡。
吧台区域选择深一个色号的艺术涂料,利用盒子的概念,与客座区作分区,增加空间的层次
吧台旁的卡座,藤编的材质增加自然质朴的气息,下方则作为空间储物的补充
利用弧形元素缓和了空间高低差的生硬感,挂画处原为消防栓,消防栓外包隐形门,左右两边内凹的位置则做壁龛,作为店内周边产品的陈设。
靠窗位室内和室外作了背靠背的卡座区,考虑到两者的私密性,下方选用长虹玻璃。
进门左侧靠窗的吧台区
洗手区
客服
消息
收藏
下载
最近





























