查看完整案例


收藏

下载
With Everything I Love
與喜歡的一切在一起
我们必须要学会按照本来面目看待事物本身,而不是用人类通过理解的方式,使这个世界客观化。
We must learn to look at things as they are, instead of objectifying the world through human understanding.
——
李禹焕
人员分析:
功能配置:
剖面图|本案空间为跃层结构,业主一家四口,追求通透开阔的空间属性,并希望能够依据每个家庭成员的个性表达,进行独立的设计考量。与喜欢的一切在一起,乃人生之幸事。
The space in this case is a duplex structure. The owner has a family of four, pursuing a transparent and open space property, and hopes to make independent design considerations based on the personality expression of each family member. It’s a blessing in life to be with everything you like.
大胆的开放结构
原项目的问题来自南北纵向的长度与宽度间比例的失衡,带来空间视觉上的狭长感。设计师以功能先行梳理空间布局,自空间的通透性为目的出发,重新规划区域间的关系属性。
将南侧定位为外向的公共区域,融合客餐厅间的关系,集中公共活动于此向空间。北侧则被划分为较为私密的寝居空间,两侧空间的关系被打断,纵向长度被忽视,从而形成开阔的格局感受。
The problem of the original project comes from the imbalance between the length and width of the north-south vertical, which brings a sense of narrow and long space vision. For the purpose of space permeability, the designer first combs the space layout with functions and re plans the relationship attributes between regions. The south side is positioned as an outward public area, integrating the relationship between guest restaurants and concentrating public activities in this space. The north side is divided into a more private sleeping space. If the relationship between the space on both sides is interrupted, the longitudinal length is ignored, thus forming an open pattern.
叠与透的艺术 |
除平面的打开以外,设计非常大胆地将目光落于立面的沟通之上,沿落地窗形成餐厅区域与二层卧室的挑空,引导视线向上延伸。突破常规思维的设计方式,多维度的场景转换,尽可能地让一二层间的互动变得更加立体而有趣。
In addition to the opening of the plane, the design boldly focuses on the communication of the facade, forming a space between the dining room area and the second floor bedroom along the French windows, leading the line of sight to extend upward. The design method that breaks through the conventional thinking and the multi-dimensional scene transformation make the interaction between the first floor and the second floor more three-dimensional and interesting as far as possible.
设计师相信空间的呈现是结构与软装的联合发力,自结构的弧形线条为始,结合曲面的座具、桌面以及导台,在横平竖直的空间中,增加灵动而柔和的场域力量,亦是在视线延伸的过程中,创造优美的弧度,形成韵律般的美感。
The designer believes that the presentation of space is the joint force of structure and soft decoration. Starting from the arc line of the structure, combining the curved seat, desktop and guide platform, in the horizontal and vertical space, it increases the flexible and soft field power. It is also to create a beautiful arc and form a rhythmic aesthetic feeling in the process of extending the line of sight.
贯通的视觉感受
设计以线性空间与几何架构表达区域间的克制与平衡。通往二楼的楼梯被隐藏于储物柜之后,以半包裹的形式短暂地处理视线的延伸关系。但同时当你踏步而上的时候,镂空的阶梯形式带来光影的重重变换,自缝隙而出,目光落于空间的边角,亦是一种婉约细腻的结构美学。
The stairs leading to the second floor are hidden behind the lockers, and the extension of the line of sight is briefly handled in the form of a semi package. But at the same time, when you step up, the hollowed out ladder form brings many changes of light and shadow. It is also a kind of graceful and delicate structural aesthetics that comes out of the gap and looks at the corners of the space.
区域间的功能关系,自结构生发。除楼梯边承载的储物功能以外,部分储物空间被安排于一层的走廊区域,在保证空间舒适度的同时,极大程度地利用可用空间。同时,分散的储物形式也能带来日常生活中的相对便利。
The functional relationship between regions is self structured. In addition to the storage function carried by the stairs, part of the storage space is arranged in the corridor area on the first floor. While ensuring the space comfort, the available space is used to a great extent. At the same time, decentralized storage forms can also bring relative convenience in daily life.
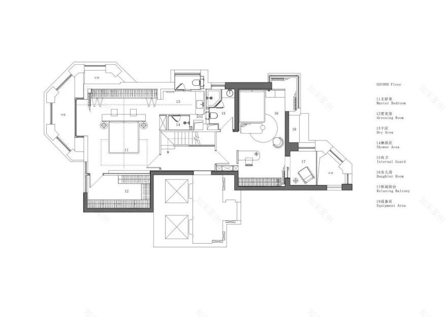
因人而构的空间力场。主卧置于二层南侧,通过落地窗与一层形成互动关系,同时窗外的景亦不被遮挡。不同寻常的是床体并没有被安排于空间的一侧,而是落于空间的中间,依墙面设置衣柜,床头自然形成梳妆台,空间被利用到极致。
The master bedroom is located on the south side of the second floor, forming an interactive relationship with the first floor through French windows, while the scenery outside the window is not blocked. What is unusual is that the bed is not arranged on one side of the space, but in the middle of the space. The wardrobe is set on the wall, and the bedside naturally forms a dresser. The space is used to the extreme.
北侧为女儿房,除大面积的留白与弧形元素呼应空间的主题以外,在色彩上运用偏暖的橘黄色调,营造小女孩的生活场景。
The north side is the daughter’s room. In addition to the theme of large area of blank space and arc elements echoing the space, warm orange color is used to create a living scene for little girls.
考虑到男孩年纪尚小,在成长的过程中需要较为宽敞的游戏空间。于是设计将儿子房设置于一楼,与一层公共区域相联通,同时紧邻休闲活动区域,保证其在安全的平面空间中,可以得到自由的穿梭与玩乐。
Considering that the boy is still young, he needs a more spacious game space in the process of growing up. Therefore, the son’s room is designed to be set on the first floor, connected with the public area on the first floor, and close to the leisure area, so as to ensure that it can get free shuttle and play in a safe plane space.
设计师认为,私宅空间的属性应是包容的,不被框架束缚,亦没有既定的规则,是在不断适应居住者本身需求的同时,强调更便利健康的生活方式。
The designer believes that the property of private house space should be inclusive, not bound by the framework, and there are no established rules. It emphasizes a more convenient and healthy lifestyle while constantly adapting to the needs of residents.
左右滑动查看更多 >
平面图 |
项目信息
项目类别 / 住宅空间
项目名称 / 與喜歡的一切在一起
项目地点 / 中国.浙江.乐清
项目面积 / 252m²
设计时间 / 2021.3
完工时间 / 2022.5
设计团队 / 目后空间设计
摄影团队 / 李迪
主要材料 / 书香门地美学地板、温州瑞极照明、本杰明摩尔涂料、朗居丽家·木作、HBI 瓷砖
设计团队
目后,目而后思,一切表象背后的思考
感谢您的关注与喜爱
Business cooperation
媒体合作 / Media cooperation
Mail:
物料联系 /
工作机会 / Job opportunities
tell:13758896635
请将个人简历与作品集发送至 Mail:
客服
消息
收藏
下载
最近












































