查看完整案例


收藏

下载
点击蓝字 关注我们
First Frost
引言 / Preface
Project address:Dover Green City Green Lake
Space area:138m ²
@
房间装修也是一种热爱生活的方式
Room decoration is also a way of loving life
「图 赏」
▲
改造前原始图
▲
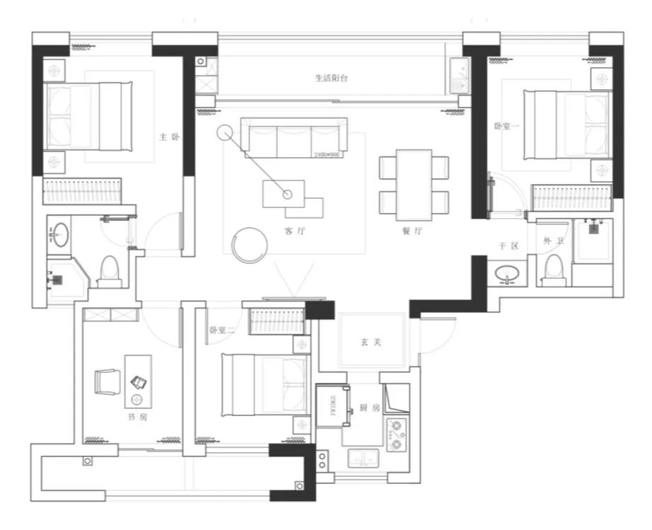
改造后布置图
设计师根据屋主需求在布局上进行了如下优化:
①、
玄关增加柜子
②、
餐厅区域增加柜子
③、
原本客厅墙面打通做AB面:主卧做衣柜、客厅做柜子
玄
关 | Hallway
玄关处悬浮玄关柜与电视机墙采用转角连体设计,颜色和整体性一致,达到视觉统一的效果,同时也满足归家的收纳需求。
客厅 | Living room
客餐厅以沉稳的棕色、干净的白色为主色调,呈现出简单而温馨的家居氛围。开放式设计布局,充分利用自然光线,打造舒适明亮的空间。
卧 室
| Bedroom
房间以低饱和的灰色为主,搭配灰绿色家具,让整体空间既有绿色的活力,又带有灰度的高级。
书 房
| Study
书房不仅是处理工作的区域,也是繁忙生活中的栖息地,搭配个性书桌造型绿植点缀,提升空间格调;摆放有序的书柜,呈现一种规整的空间感。
「对比图」
【客厅】改造前vs改造后
【玄关】改造前vs改造后
【卧室】改造前vs改造后
【书房】改造前vs改造后
项目地址:多弗绿城 · 翠湖里
空间面积:138m²
主要材料:岩板、涂料、木作、瓷砖
设计施工:MU STUDIO
地址:温州汤家桥雁荡西路100号和乐大楼
客服
消息
收藏
下载
最近




















