查看完整案例


收藏

下载
NT 私宅
NT private house
深圳市局内设计咨询有限公司
山东曲阜(孔庙的所在地)保持着深厚的儒家传统文化影响,项目所在地兖州离曲阜仅半小时车程。项目为五个家庭、两代人共同居住。
▼航拍视角
融合一词是用作此项目中对于新旧、内外概念的阐释以及个体与群体之间关系的重构。业主一家由于年龄的差异、受教育程度的差异和对美见解上的差异,都造成了对于空间和功能的多种需求和不同标准,以及外来文化所影响的审美是否能与传统观念中的一些理念在这个空间中立足共存。面对这个问题,这些设计中的巧思和实践都一一变成对环境的回应,在环境与人中以融合回归安宁。
▼街道视角
像这样一个大家族同住一个屋檐下,是将其分离独立确保私人空间,或是将空间把家庭的内在距离统一,作为设计师我们需要考量多方面的问题,同时也需要倾听每一个人对“家”自己的看法与对空间的功能、心理的诉求。为了应对这些多种影响因素,此时在传统文化中许多方式或许能带来不同的思路,并建立起另一种联系。
▼设计布局
北高南低的中国传统四合院风水格局,完美的回应业主对家族伦理秩序的重视。四周的建筑单体都有内凹式的骑楼,二层的带型阳台直接连接东西两座楼栋。中央庭院原有的树木全部保留。
▼航拍内院
围绕主庭院空间,在相邻建筑单体之间是四个尺度亲密的小院子,由建筑与围墙之间的带状后院串联成为连续的步行系统。位于东南角的“小院子”对外成为主入口,便于作为接待功能东座出入,同时也连接庭院;位于东北角的“院子”与现状的业主住宅山墙围合成一个私密的共享花园;西北角的小院子直接通往西侧的私家花园。最后建筑与景观空间混合交织,构成了园林般的系统空间秩序。
(空间图解)
在与业主沟通的过程中,我们了解到业主的审美喜好更加偏向于德国精制严谨而简约的风格,这可能也是由于他身为一名制造业精英,并拥有留学背景,受到了德国制造业浓厚的工业审美和风格影响。
在两种文化和风格的影响下,对审美的抉择或许是矛盾、犹豫的。为了平衡这一点,我们发现清水混凝土的围墙与建筑裙房的火山岩与景观元素良好契合,主体运用陶土砖、铝板以及陶板等材料相互交替穿插,确保建筑体块简洁硬朗的前提下,也以此避免了过于冰冷的工业气质。
▼边院视角/内院视角
多家庭的构成的居住结构通常需要尊重各个家庭和成员的各种需求,在功能设置内,我们将 5 个家庭设置在南北两栋单体内,将东西楼设置为带有商务功能以及康体、活动的公共空间,坐北朝南,主入口面向中央庭院,垂直交通系统彼此独立,重要的生活空间如卧室/起居室都面向不同尺度的庭院花园,确保私密的前提下,拥有良好的景观与采光。西栋为康体楼,25 米的恒温泳池直接面对花园展开。
▼内院视角
NT 室内/Interior design of NT private houseNT 东楼/East Building东楼二楼主要是会所功能,服务于企业级高端接待,承担日常中业主商务上的社交需求和接待需求。整个空间是在私宅中比较开放的部分,南厅面向入口前广场,朝东透过一颗姿态优美的白蜡树可以远眺花园。
东楼临近主入口,首层设置了一个专业级的厨房为五个家庭提供正餐服务。(各个家庭自己的开放式厨房一般不做正餐,只是用于早餐或者便餐)北厅可直通户外露台,同时在餐厅布置了一个供 20 人用餐的西餐长台,旁边配有还有一个备餐间与酒吧,菜肴通过餐梯从楼下的厨房送达。
由于独特的商务要求,业主要求整个楼的室内参考五星级酒店的标准。但我们有意避免一般酒店建筑琐碎的过度装饰,窗前的圆形混凝土柱原始的材料肌理被刻意保存。大理石、清水混凝土以及温暖的木饰面在空间中大块面的穿插对撞,呈现出硬朗、朴素、简约的空间气质。
项目名称:NT 私宅东楼(室内设计)
楼面面积:534 ㎡
NT 北楼/NorthBuilding
这是一栋局部三层的南北向楼栋,服务三个独立的家庭。中间部分是男主人的家庭,进入首层的门厅可直接到达电梯和楼梯间,楼梯间环绕电梯井,完全敞面向自然采光。客厅餐厅和厨房是一个开场连通的大空间,南面可直通中央庭院;向北连接后院,两侧的落地玻璃使得空间完全贯通无阻。
在北楼主要配备了主卧套房以及四个儿童套间,家庭厅,小型厨房与保姆房,其中两个房间直通开敞的户外露台。男主人更喜欢稳重的木色系,配合清水混凝土墙面以及深灰色的大理石,我们将北楼整体的效果控制在更温暖的色调下,但也同时兼具明朗的线条和质感。
项目名称:NT 私宅北楼(室内设计)
楼面面积:1836 ㎡
NT 南楼/SouthBuilding
南楼共两层,包含了两个基本对称的户型,为男主人的两个姐妹的家庭使用,主入口从北侧中央庭院进入。
我们参考了日式庭园林设计,以混凝土围墙为背景,精心布置了泰山石配合枯山水和绿植搭配,从而从客厅向南观看,拥有天光的楼梯间会将你引导至二层的家庭厅。同时,为了确保所有卧室的采光和视线,部分无法在外墙开窗的步入式衣帽间和卫生间都有屋顶天光替代,确保了空间的舒适性。
项目名称:NT 私宅南楼(室内设计)
楼面面积:759 ㎡
NT 西楼 /West Building
西楼为康体中心。地面层东部一个 25 米长的恒温泳池,正对中央院子开放。天花与侧墙均匀纤细的光带强化了泳池空间的纵深感。西楼的南部为一个专业健身房,除了最大化外窗采光面之外,其他的墙体全部由镜面包裹,空间在视觉上获得了放大的同时也方便了健身者的使用。
在二层北侧,设计中布置了配有室内攀爬攀岩墙以及环旋转滑梯的儿童房,我们还为儿童定制了一组可移动的楼梯家具,折叠后变成一个小木屋图书室,屋顶可以变成楼梯直接到达楼上的夹层,方便孩子们自己探索这个空间的多种利用方式。
在二层北侧,设计中布置了配有室内攀爬攀岩墙以及环旋转滑梯的儿童房,还为儿童定制了一组可移动的楼梯家具,折叠后变成一个小木屋图书室,屋顶可以变成楼梯直接到达楼上的夹层,方便孩子们自己探索这个空间的多种利用方式。南侧与西侧分别为两套客人房与 spa,美容与保健空间。家庭影院与中央走廊之间有一个清水混凝土的隔墙分割,天光沿着墙体的边缘向下蔓延,照亮走廊的同时,强化了混凝土表面的材料肌理。
项目名称:NT 私宅西楼(室内设计)
楼面面积:1033 ㎡
项目图纸
/Drawings
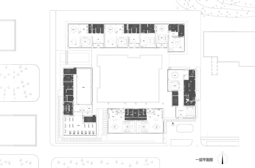
一层平面图
二层平面图
三层平面图
项目信息
ProjectInformation
项目名称:NT 私宅
ProjectName:NT private house
地址:山东,兖州
Address:Yanzhou, Shandong Province
建筑面积:4300㎡
Area:4300㎡
设计团队:张之杨、匡宇浩,杨宇环、陈磊,孔祥喜,吴文静,周艺
Team:Zhang Zhiyang, Kuang Yuhao, YangYuhuan, Chen Lei, Kong Xiangxi, Wu Wenjing, Zhou Yi
类型:居住 / 会所接待 / 康体设施
Functions:Residence / club reception / recreation facilities
施工图设计:深圳市同济人建筑设计有限公司
Construction drawing design: Shenzhen tongjiren Architectural Design Co., Ltd
委托方:山东兖州华勤地产有限公司
Client: Shandong Yanzhou Huaqin Real Estate Co., Ltd
摄影:白羽
Photo: Bai Yu
客服
消息
收藏
下载
最近







































































