查看完整案例


收藏

下载
——
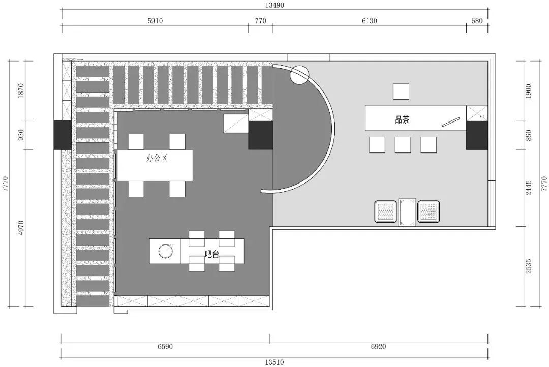
▼乙丙建设办公室
时代变革,反应在办公空间设计方面的改变。注重交流,关注内心。办公空间,不仅仅是办公场所,也是每天八小时的生活。打造一个共享的工作空间概念设计,开放、灵活的空间侧重激发更多想象的可能。
过廊透过尽头的玻璃窗巧妙引入自然光。
Through the gallery, through the glass window at the end, subtly introducing natural light.
原木材质是这一区域的材质基底,与石材质、自然光交织。
The raw wood is the material base of this area, interwoven with stone and natural light.
屏风,将空间巧妙地阻隔开,令空间保持独立性的同时,又借着屏风的透视性互通互连。
Screen, will space cleverly separated, so that the space remains independent, but also through the screen perspective interconnection.
弧形的墙体相互交织,通透半通透的空间增加了空间的“透气性”,创造出了暧昧柔和的空间边界,弧形的空间围合虚化掉了空间的紧张感,增添了空间的趣味性。接待空间曲线的围合形式,不像直线般平淡,也不像折线般生硬,有一些柔美却洒脱,谦逊却不羁的感觉。
The curved walls interweave, the transparent and semi-transparent space increases the “Breathability” of the space, creates the ambiguous and soft space boundary, the arc-shaped space encircles the virtual space to melt the tension of the space, and increases the interest of the space. Reception space curve encircles the form, not like a straight line as plain, not like a straight line as stiff, have some soft but free and easy, humble but uninhibited feeling.
流动的光影,真实存在但又不可触碰,在时间性与空间性的交织下,连绵形成独特的场景影像。
The flowing light and shadow, real but untouchable, form a unique scene image under the intertexture of time and space.
办公室以木色来营造空间的简约质朴气息,办公一角设置了白色洗手台,兼具视觉与功能性。
The office uses wood color to create a simple and rustic atmosphere of the space. A white washing table is set up in one corner of the office, which is both visual and functional.
全景玻璃幕墙模糊了窗外城市景观与窗内办公室的空间边界,立柱、墙体与物件的构图分隔,形成了不同尺寸和不同景致的城市框景。
The Panoramic Glass Curtain Wall Blurs the space boundary between the urban landscape outside the window and the office inside the window, separating the columns, walls and the composition of the objects, forming the urban framed scenes of different sizes and landscapes.
Project Name | 项目名称:乙丙建设办公室
Location | 项目地址:福建•龙岩
Area | 项目面积:90㎡
Chief Designer | 首席设计师:罗培林
Design Company | 设计师公司:甲丁设计
Participating designer | 参与设计师:焱子、黄福平
Photography | 摄影师:阿奇
文字/图片:甲丁设计
DESIGNER
设计师介绍
罗培林
甲丁设计 创始人/设计总监
乙丙装饰工程有限公司 创始人
福州室内设计师协会 常务理事
甲丁设计/所获荣誉:
2020 年荣获 IDOL 锋范&中国广西建筑室内设计年度办公室实景类设计铜奖
2020 年荣获 IDOL 锋范&中国广西建筑室内设计年度商业零售空间实景类优秀作品
荣获“TOP SHOW” 中国零售设计与美陈行业年度评选(2021 年)卓越设计师
荣获亚太设计师联盟、艺术厦门和设计博览组委会的 2021 年度评选“优秀设计师”称号
荣获 2021 年中国设计星 36 强候选人称号
荣获 2021 年 G+AWARDS 中国城市 TOP10 设计榜单
荣获广州设计周 30 UNDER 30 华东区 30 名
2021 金住奖-中国(龙岩)十大居住空间设计师
欢迎投稿作品
不忘点击“”
客服
消息
收藏
下载
最近




































