查看完整案例


收藏

下载
我不想故作潇洒
只想活得真实
就像无拘无束的风
在时光里轻盈地走
既不是标榜
也没有解释
我喜欢自然
就像喜欢流逝的往日
无论花丛还是蒺藜
过去了的
总让人染上莫名的相思
—— 汪国真《我喜欢自然》
重庆,一个富有三千年巴渝文化底蕴的历史名城,静卧四川盆地之中,栖息于长江与嘉陵江的交合之处,享“三都之地”的美誉,映衬赵熙笔下“楼台市气笙歌外,朝暮江声鼓角中”的别样风情。
旭日东升,笼罩在一片模糊的瑰色中,项目便坐落于此畔。在这个极具地域文化和生活美学的空间,设计师倾力演绎优雅与诗意,构筑起理想主义的“烟火气”场域。
01 可能性的艺术
建筑差异界定空间相生基群,设计师通过量、形、质的转换,重塑空间结构,反复连接区域间的紧密联系,将其融入到依山傍水的自然环境之中。
设计师在空间设计中,思索更多的是形式、空间、建筑间的融通关系,解构其错综复杂的多样性,探索机械主义背后的可塑能量。
理性交织感性,构成空间基调,脱离于繁复,近乎简洁、素朴的空间线条,使自然的材质肌理协调、平衡空间序列,为居者打造了一个慢生活的形态方式。
||
02烟火与温度
开端和结尾承接上下动线,移步换景,步步皆景,设计师通过在首层设置一道穿透结构的楼梯,实现建筑结构的动线变化以及各空间关系的多样化。
平直回绕的框架跳脱出固有模式,引至向上的轨迹动线串联起灵动逸趣,每至一个新的空间,皆有戏剧独白。墙面朴素的色彩衬映着木质的魅力,碰撞出的微妙感知附和着隐秘的未知气息,独有的呈现方式解构秩序,探索无理化边界。
一体化的客餐厅设计,衔接出敞亮的内部空间,这里是生活的起点,亦是凝聚情感的地方。
构筑一个自由空间,木色裹挟整体空间氛围。在这里,轻松怡然的和谐氛围足以容纳一家人的默契。置身其中,围谈或休憇,缓缓升起家的归属感。
一室的光影留下从容的“脚步”,渐渐布满每个角落,在一片沉寂无声中拼凑时光闲隙,舞弄交错间,构成一幕没有终曲的生活独角戏。
||
03旋律
当你在建筑的国度
你会意识到自己触碰到的
正是人类的基本情感
如果不以此真理作为出发点的话
建筑将永远不会成为人性的一部分
——路易斯 • 康
满园的玫瑰,令人沉醉于花海中,勾勒出馥郁芬芳,是男主人送与女主人的私人花园,在这缱绻的岁月,绮婉如歌。
空间载体承载着人文魅力,设计师无问出处,契合屋主内心向往的品质生活,使其不论何时来归,只道是释放情绪,裹挟着舒适和惬意在柔和乡梦中渐渐“沉沦”。
造一处适合远眺的境地,将人工之美的艺术手法与自然属性极致结合,随着时间、空间的秩序交替,景象也在不同场景里发挥着共同的作用。闲听半晌,对语平静的江面,奏响安宁、自在的主旋律。
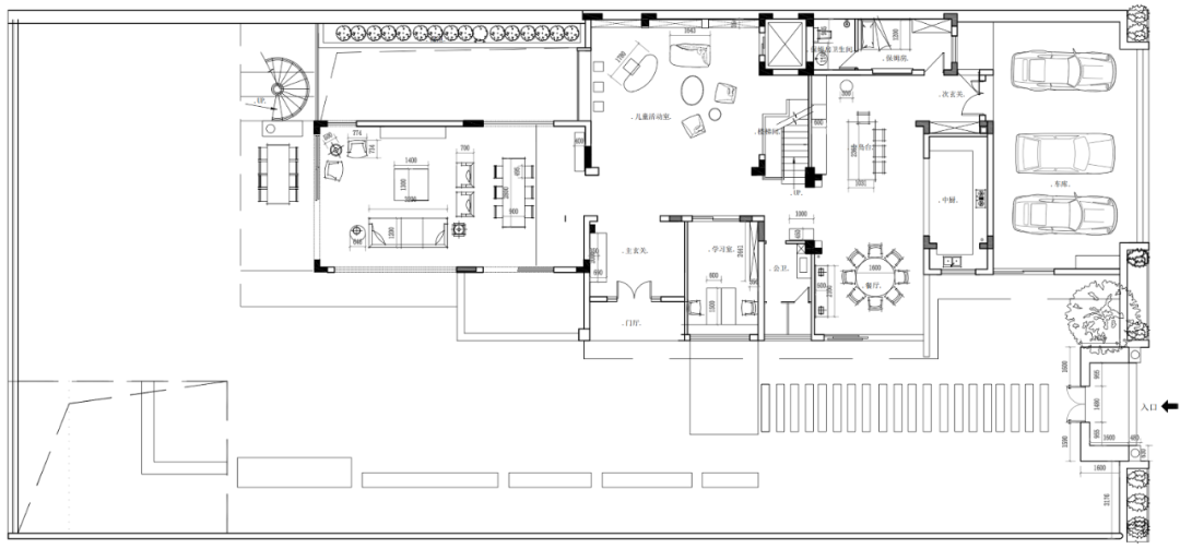
△ -1F
△1F
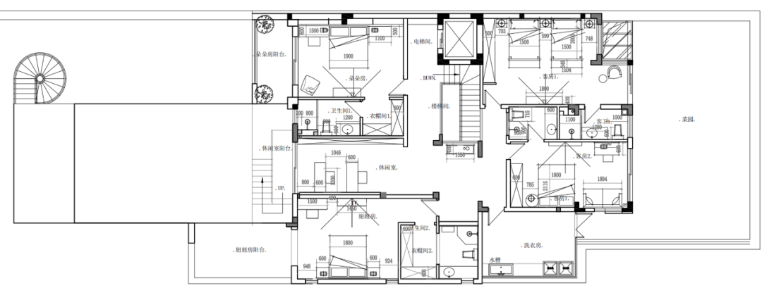
△2F
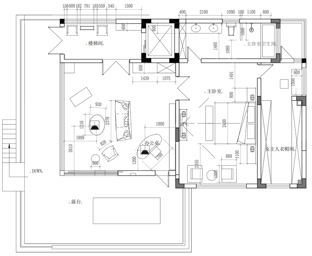
△ 3F
#DESIGNER
△ 设计师赵梓妍
# 往期推荐
灵想设计 | 重庆 24PM 婚纱礼服馆,走进“精神殿堂”
双宝设计 | 勾勒雅致意式,一方身与心的自留地
徐京华新作丨北京×礼遇轻奢,叙写优雅的生活常态
#了解更多
贰拾柒设计经纪服务内容
客服
消息
收藏
下载
最近





































