查看完整案例


收藏

下载
慢生活的方式和诗意的栖居,在今天,是许多人居住空间葆有的期待。
旧屋,是主人对过去的回忆,对曾经的追忆,是先前存储记忆的意象显示。当往日的生活逐渐褪色,设计师一改十年前设计风格,重塑空间,功能再生。
改造前照片
左右滑动查看
空间所谓的风格,并不需要明确化。「加法」与「减法」之间,每一处细节、每一个弧度,都在提醒着人们,时光的珍贵和空间的粘度有关。
空间的粘度,是对一个舒适生活场域的最高赞美,它衡量着人居关系的融洽、物质的精粹与精神的富足。
紧-tight-本案中,平面格局上的紧凑和单个空间的舒展形成强烈而舒适的对比,以平面挖掘空间使用的内核,以材质传递情绪上克制而平和的表达。
设计师通过对原结构梁柱的柔化,丰富立面结构,客厅与阳台间出现的弧形弱化了原始结构的枯燥感。通过压低使用界面将原本外露的照明设备做了隐藏,视觉层次就此铺展。温润的木皮与质朴的墙壁一同衬托空间中时光的静谧感。
在好地段一房难求的今天,设计师尽可能将空间的结构关系抽丝剥茧,一部分消解传统的起居、餐厨的关系,一部分挖掘卧室的生活面。简约的生活方式与自由的精神世界相辅相成,共同构成生活的乐章。
松
- loose -
空间承载着人们生活的基本需求,合理的平面布置开启了这个私宅项目的丰富承载力。设计师重新梳理活动、习惯与空间营造本身之间的关系,规避原本局促的条件限制,将每个独立的卧室空间倾注进使用者的性格,重筑一种理性的建构逻辑。
静 - quiet - 清晨,阳光从餐厅的窗户洒入;午时,移步客厅畔的阳台;傍晚,西斜的日光带着微醺的暖意中和着空间木皮的色彩,形成一种静谧的醇熟。
光影流动之间,室内散发出迷人的生机和魅力,在未来的生活之中,都会记载下时光的痕迹,未有烛、而后至者,形成私属的故事。
笃 - Benedict - 致虚极、守静笃。人与居住环境时而亲密、时而物我两忘。应是物我两相统一,彼此独立又共生的最佳状态。
无关空间大小,以理性梳理空间秩序,再赋予些许浪漫的笔调。不论承袭还是重构,对于住宅设计,许多动人之处都源于我们对生活本质与人最原始的尊重。
当新的生活在这里拉开帷幕,空间开始继续生长,如同植物一般的幸福爬上藤蔓,延续属于它的光阴故事。
△ 改造前平面布置图
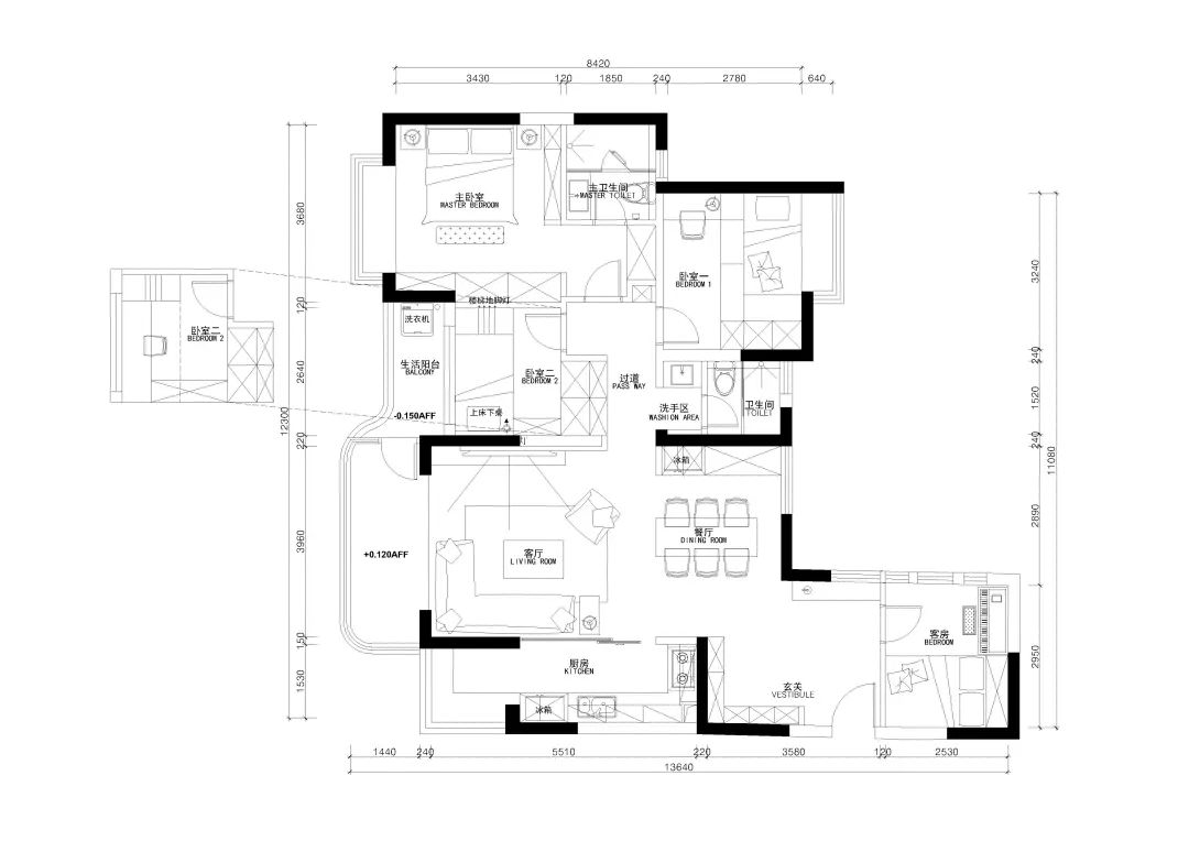
△ 改造后平面布置图
#
DESIGNER
△ 卢维涛
广州大匠设计创始人、设计总监
国内知名设计师/室内建筑师
2022 年美国缪斯金奖,获奖作品《垣酒吧》
2022 年祝融奖广州赛区一等奖,获奖作品《慧亚办公空间》
2021 年获得 G+AWARDS 全球设计精英大赛中国(广州)TOP10
2021 年 IDA DESIGN AWARDS -honorable mention,获奖作品《垣酒吧》
2021 年新加坡室内大赛铜奖,获奖作品《垣酒吧》
2021 年一兜糖 APP 展出作品 400㎡的《艺术·家》
2020-2021&2021-2020 连续两年蝉联中国设计星全国 36 强
2020-2021 年 40under40 中国(广州)设计杰出青年
# 往期推荐
谷沧设计作品 | 把家改成“艺术馆”,300㎡只求“一室一厅”
MFD 苜梵设计 | THAT DOOR·玩家
夏天作品 | 580㎡别墅,以自然感知极致优雅美学
#
了解更多
贰拾柒设计经纪服务内容
客服
消息
收藏
下载
最近



































