查看完整案例


收藏

下载
设计是一场境遇,看似平淡无奇,有光,却绘声绘色;是一种营造,看似平凡寡淡,却是一种永恒与精神。
本案设计师夏天契合业主优雅、精致的生活方式,以景入室,模糊内外边界。以严谨的架构,让室内与户外、建筑与景观紧密交融,从容且质朴。
以丨景丨入丨室
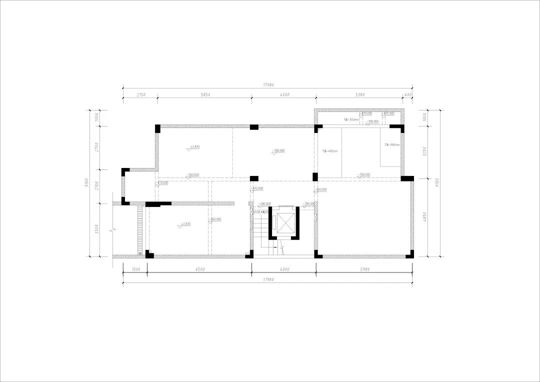
△ 原始平面图「负一层」
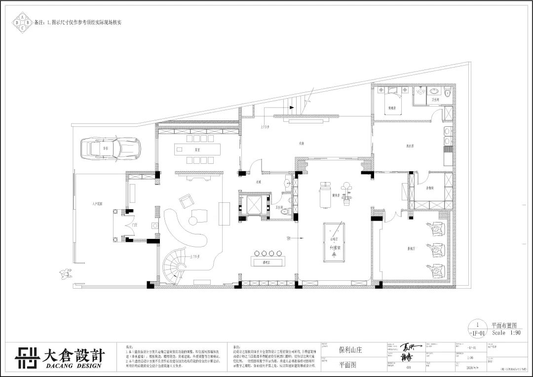
△ 平面布置图「一层」
静雅的艺术墙体为画布,光影为素,刻画迷人而纯粹的艺术光感,隐隐约约中传达自然与优雅,似有若无的韵律给人以无限遐想。
简单利落的线条分割和谐中诠释极致细部,大面积的开窗设计,引景入室,让生活贴近自然,更加从容自如。
挑空的纵深气势,诉说着居住者对生活品质的孜孜追求。运用简洁线条展露艺术张力,定格艺术之境,以形塑意,支撑舒适精致的卓越体验,为平凡日常提供惊喜与享受。
以异破异,设计师将几何语言发挥到极致,在亦虚亦实间,衔接着四季变换的景致,将大自然的治愈力完美糅合。
每个空间,都有自己专属的空间形式和理想的内在精神。茶室恰到好处的陈设比例,填补空间原本结构空缺,悠然布置出舒展的姿态。
细腻而简约的几何线条,精致的大理石铺设与家具摆件,细节处即可寻觅到法式的浪漫及精致考究,将怀古的浪漫优雅情怀与现代人对生活的需求结合,营造出富有艺术与现代感的生活方式。
以丨形丨构丨室
对于多层空间而言,遵循富有辩证性的设计逻辑,更能彰显实用性、动态性、诗意性。
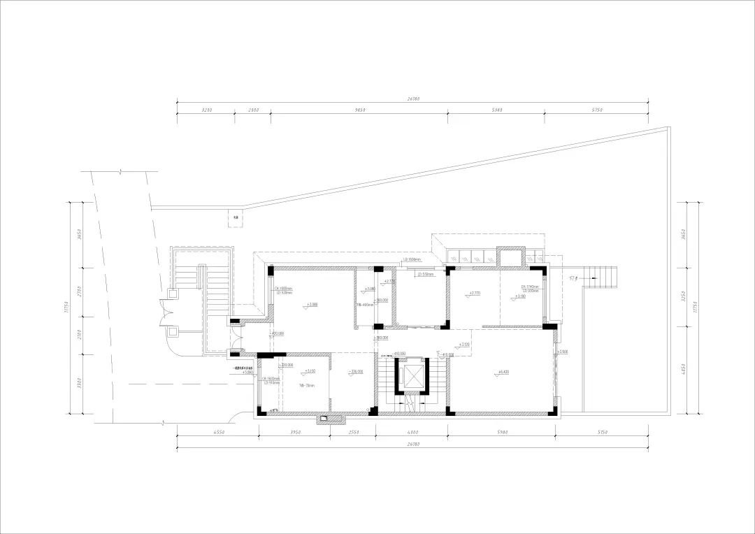
△ 原始平面图「一层」
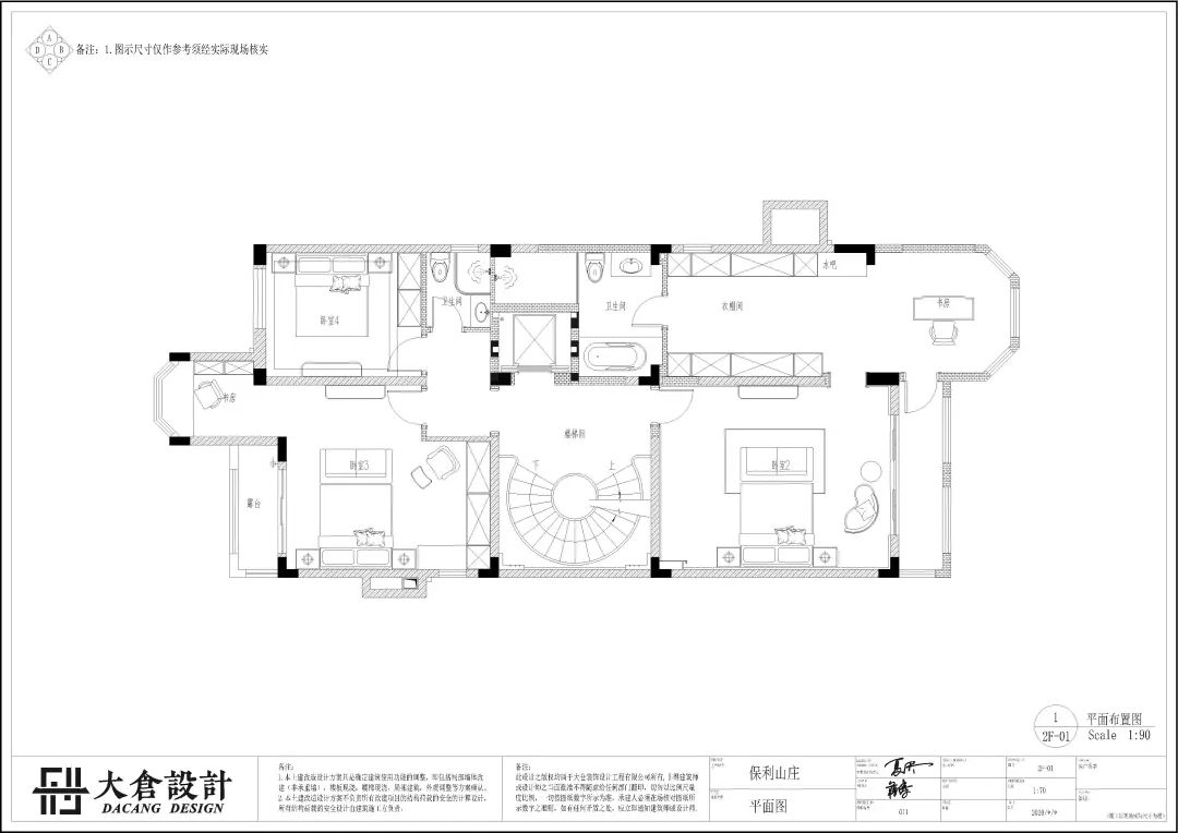
△ 平面布置图「二层」
蜿蜒而上的旋转楼梯,不仅连接上下空间,同时也构成空间装置艺术品,优美的曲线增加了空间的灵动性。
开放式的餐厅设计,强调家的融合之美。简洁的设计中,隐藏着点、线、面的灵活运用,无一不体现精益求精的设计精神。
开辟优美风景的八角亭区域作为早餐区,每一个清晨都将从自然的无限魅力中开启。
时丨光丨交丨叠
△ 原始平面图「二层」
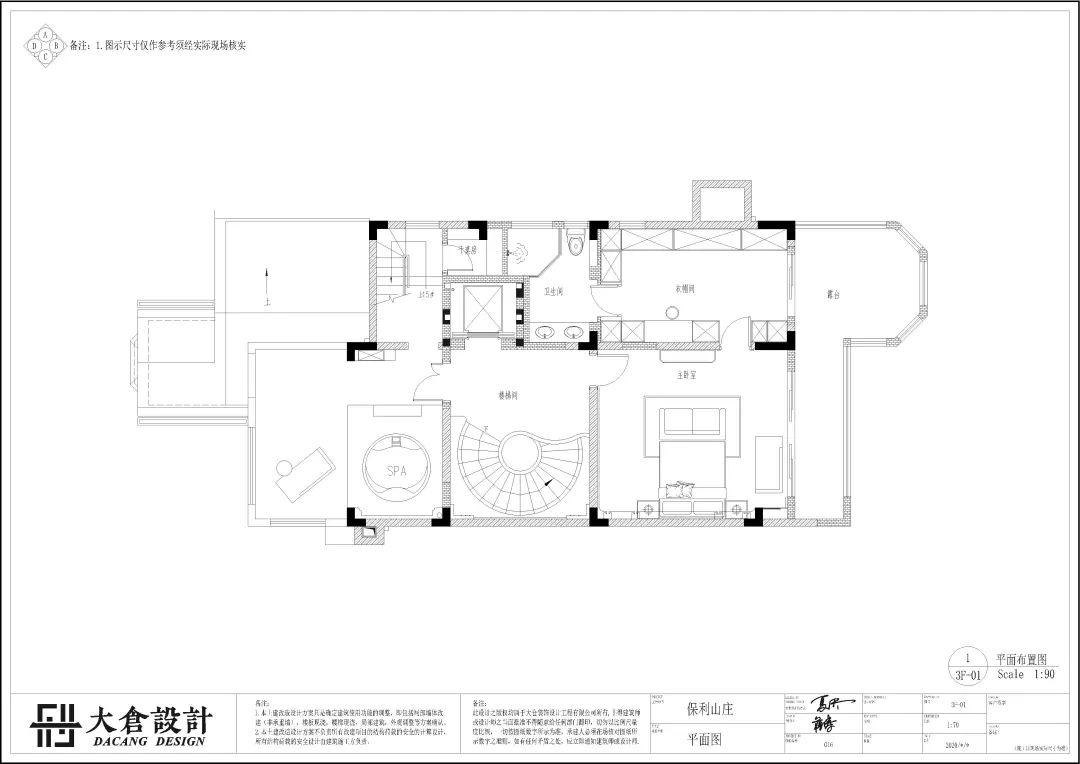
△ 平面布置图「三层」
睡眠区呈现沉稳克制的简洁艺术感,木栏栅与大理石共同释放出空间的视觉层次感,尺度舒适。
△ 原始平面图「三层」
△ 平面布置图「四层」
将庭院绿意引入,SPA区域大面积落地窗,似隔未隔,酝酿浪漫,延续艺术。设计师用创造性的精神和专业性的表达,赋予空间价值,通过光影互动,捕捉空间生动的表情。
以自然的方式表达出业主的生活态度:惬意、自然、和谐,宠辱不惊,看庭前花开花落。
四季更替,终而复始。将自然与质感写进每一寸生活空间,让生活逐渐放慢节奏、回归本色,感受内外融合、时光交叠的美学深度。
#
DESIGNER
△ 设计师夏天
# 往期推荐
齐峰作品丨予白,感知张弛有度的空间生命力
天行作品丨隐于喧嚣,构筑极简与本真
KD私宅 | 当代语境下的自然极简美学
客服
消息
收藏
下载
最近








































