查看完整案例


收藏

下载
设计师邓周彬(以下称阿布)从事设计师行业 20 年,这期间阿布的房子随着家庭成员和对生活理解的变化而不断改变。从单间公寓到塔楼平层,联排叠拼到板式大平层,他不断在买房、卖房、装修的过程中循环奔波,只为寻找一个可以完全释放自己设计能量与理想的空间。
多年的跃层生活之后,这一次阿布和家人共同搬进 158㎡大平层,希望通透、开阔的大平层可以消除隔层空间产生的距离感,让家人之间的相处真正做到「零距离」。
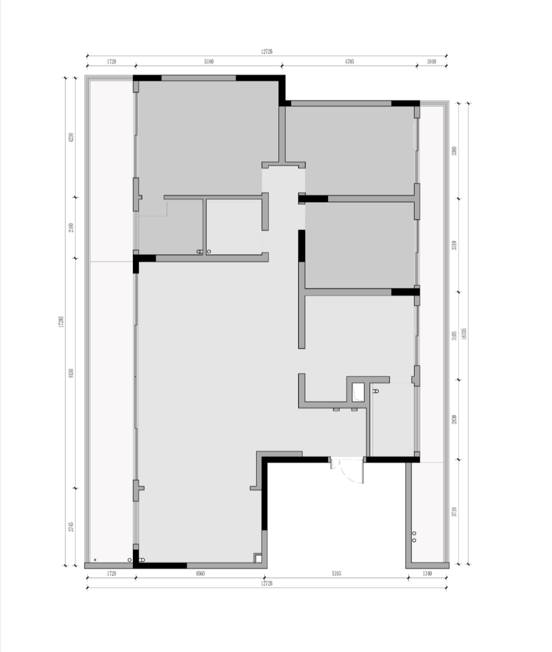
原始户型分析
Original house type analysis
优势:
·房屋两侧 17 米独立露台,居家活动范围较大;
·房屋户型方正,空间结构改动不大;
不足:
·四房三卫,公共空间面积较小,不满足空间通透的需求;
·顶层主梁较低,客厅层高仅有 2 米 4;
·卧室空间较小,无法满足衣帽间收纳;
自身需求分析
Owner’s brief
四口之家的生活空间,无需规划客房空间;阿布休息时享受做饭带来的愉悦感,爆炒、油炸容易产生重油烟,厨房需要封闭;公共空间需要开阔、通透才满足家人间娱乐互动;主卧需要独立的卫生间;
改造后
After transformation
· 封闭式厨房可防止油烟进入公共区域;
· 根据自身需求保留三间卧室,两个卫生间;
· 打通原始次卧区域,扩大整体公共区域面积;
· 主卧向次卧移动出一个衣帽间区域,两个次卧空间面积完全相同;
「格局开合」
- 资深设计师面对自己的房子与面对客户房子时最大的区别,是阿布很清楚自己真正需要的是什么,应该如何去实施。
家,必然有着和主人相似的气场。穿过入门玄关,即可见全面开放式的空间:一边是宽敞、通透的客厅,一边是包容万千的厨房餐厅,中间通过一道宽敞的走廊连接起公共与私人空间。
客厅层高在主梁的压迫下只剩 2 米 4 的距离,为了满足空间开阔通透的需求,阿布利用两个圆弧塑型,通过让视觉逐渐宽阔的设计手法,消除原有空间产生的压迫感。
餐厅由于尺度问题很难与厨房完全对称,阿布正好利用不对称的结构关系摆放餐桌,在视觉上形成相对对称的效果。直径 1.2m 的餐桌刚好满足家庭日常 4 人的用餐需求,相互对坐的餐桌无形间拉近家人间的距离。
「空间尺度」
对于家的构想,阿布一直都是会讲故事的设计师,他习惯于通过一个个生活化的小场景给客户描述空间的结构与设计,让其在故事里「看」到家的模样。对于这次的家,阿布希望打造一个完全属于家人的空间,无需热闹,只求舒适。
多年来阿布与家人们一直生活在有隔层的空间里,loft、联排、叠拼。随着自己对生活的需求从呼朋唤友相聚到享受与家人独处,阿布意识到别墅空间不再适合他目前的生活需求,于是大平层顺理成章地成为了下一个「试验地」。
客厅旁的共享空间,是阿布为家人构筑的小小天地,大人可以在此喝茶、聊天、工作,小朋友可以画画、看书,相互陪伴又互不打扰。
阿布家里的陈列大多都处于开放式的呈现,不论是入口处满墙的鞋柜,背景墙的书柜还是卧室的衣帽间,整个空间察觉不到一丝因生活面积缩小而产生的窘迫感。在这个不大的空间里,所有物品的存在都有着他的意义。
私人空间的处理考虑更多的是自身生活习惯,床尾的休憩沙发,完全敞开的衣帽间皆是阿布自在、舒适的生活习惯,他将在这里感受最大程度的放松与自由。
「家的故事集」
「由俭入奢易,由奢入俭难」从叠拼换到大平层的阿布却觉得「俭」才是目前最符合自己的生活方式。
平日里,日光会从早晨的这方缓缓移动到另一方。而最美的,是一家人围坐在桌前享受各自的闲暇时光,互不打扰却又相互了解。好像无论外界怎样变换,这里都是那个让家人获得心灵深处宁静与释然的中心。
家在逐渐变化的过程,似乎就是不同时期真实自我的反射。具有年代感的宜家小边几,入口处的可可叶,种种即有现代的审美与功能性,又同时有时间沉淀下来的韵味的物品,都被妥善地安放在各处。
设计潜能被充分挖掘后,家的一部分便交给了自然和四季,空间在某种意义上开始自然生长,就像孩子每天回家认真叩响的敲门声,最初的设计已经躲在了生活之后。
◤ 请回答,设计师 ◢
①本次装修过程中,有接触到哪些新的工艺和材料吗?
厨房的无边框门是本次装修中的新研究,将门套嵌入石材里,视觉上保证空间整体性的同时,还保留了空间的开阔感。
②本次装修在挑选家具的过程中,主要考虑是哪些方面呢?
所有的家具摆放都是从生活实际出发,首先舒适感是第一位的,其次造型、比例、体量感都必须达到一定的协调。
③ 从 260㎡搬到 150㎡,真正的居住感受如何?
居住感很舒服,年轻的时候喜欢和朋友待在一起,现在更愿意独处只想要属于自己的空间。
④ 本次装修中有哪些未完成的遗憾吗?
没有遗憾,从业这么多年,现在设计方案里面的遗憾越来越少了,因为前期考虑很充分,也花了大量时间来更正设计,哪怕一个小细节也会调整 N 版。我认为这也是一位成熟设计师所具备的能力和素养。
About Designer More
推荐阅读
设计师的房子 X 王朝婧 | 70㎡精装房改造逆袭,真实版「小家越住越大」
设计师的房子 X 谭月 | 一场「以家为名」的博弈
客服
消息
收藏
下载
最近







































