查看完整案例


收藏

下载
空间本身是一个开放性题目,答案远不止一种,但质感与舒适逐渐成为人们对空间理解的共识。
围绕“品牌调性、空间体验”等关键词,品牌方尹氏木业与MYD美愿设计聚焦空间体验与互动结合的社交属性,结合全屋定制系列产品特性,打造出集休闲办公、产品展示、功能接待、商务洽谈等功能于一体的木作展厅。
尹氏木业展厅在其运营属性与社交属性中寻求共生与平衡,为每位追求美好生活的到访者提供沉浸式感知场景,在长达30年的品牌沉淀中,演绎出一场场精细化定制故事。
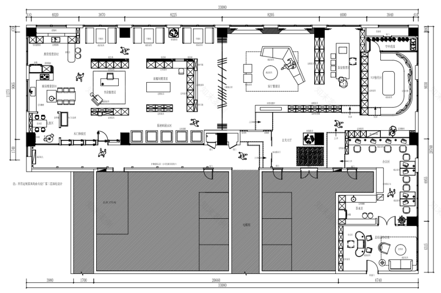
如何划分各个功能区域,并串联起整个场景,是本案设计重点。经过多次方案碰撞,设计师刘秘、潘琼超将空间划分为办公、大厅、VIP洽谈区、茶室、书房、衣帽间等区域,兼顾多场景。根据不同场景需求,给出三条动线选择,同时满足办公、会客、洽谈功能,使空间得到最大程度释放。
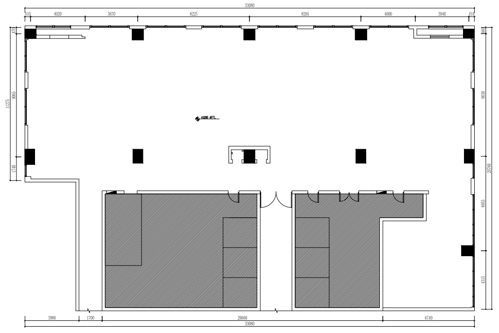
△ 原始平面图
△ 功能划分后平面图
探秘
-
“
要给人好印象,只需要7秒钟。”深邃的门头,经过一系列工艺打磨,呈现出来的是简炼、平静、质朴、耐人寻味,给到访者留下独特的品牌第一印象。
门头的发光logo与石台下的线性灯,衬出几分精致与幽谧。室内的光影试图闯入到访者的眼帘,却又被阻拦于玻璃砖墙内,隐秘而缱绻;两级抬高的阶梯营造出一丝似有若无的距离感,吸引到访者不由自主地想一探究竟。
甫一踏入门厅,由一方景观池、PU石墙和荣誉展示柜围合出的玄关厅里,自然的气息在蔓延,空间的静谧感更为强烈。头顶镜面不锈钢映照光影涟涟,增加了视觉上的高低落差,玄关厅层次更加立体。辗转的通道明暗幽灭,指向变幻的不同空间。
长长的廊道与玄关厅隔梯相望,大面积透明玻璃门窗模糊了视觉边界,从感官上将廊道纳入厅内,空间维度被完美打开。
沉浸
-
设计师以纯粹与自在为设计导向,通过空间结构与场景展示,给予到访者如家般的自在与舒适,从而沉浸其中,流连忘返。
大厅一侧通过沙发围合确立视觉中心焦点,一侧用作休憩、会客场所。经典的黑白灰配色安静、沉稳;沙发、墙体的笔直线条与桌椅流畅的弧线交织,简洁明净;光线漫过纱窗,映照出木材的天然质感,于自然肌理中获得治愈的力量,整个空间开放却不失亲昵。
共享空间、共享功能、共享视角,开放式餐厨空间与书房贯通,增强了空间的链接感,丝丝缕缕弥漫着的温情也得以连结。此间烟火,彼间书香。温润的木予人清新与平静,光洁冷硬的岩桌予人精致感与理性,小小的书房足以安抚人的心绪。
拐过书房,鲜活的绿跃入眼帘,与清新的春色拥个满怀。设计师在设计卡座选材区之前,反复思量,严谨推敲,秉承着将舒适最大化的精神,利用人类视线可视范围调整材料展示柜高度,最大程度释放空间的同时,创造出悠然惬意的场景供客户静心挑选。
调性
-
木作之美,得之于型、艺、材、韵。MYD美愿设计深谙设计与品牌调性的有机结合,将细节藏于工艺、材质与韵味中。
干净明朗的茶室,是供精神休憩的缓冲地带。全景落地窗将室外风光引入,在每一个遐思迩想的瞬间,勾勒出脑海里对生活的绚丽绘卷。
这个由木作建构的世界,是由品牌方尹氏木业长期的实践和对木性质的透彻认知支撑起来的。设计师刘秘、潘琼超围绕木作、纹理、色彩等元素,剖析入理,于细节处诠释产品细节和品牌调性,并给予到访者沉浸式空间体验,汇聚成一个个充满温情的精细化定制故事。
DESIGNER
△ 设计师刘秘(左)、潘琼超
(右)
About Designer More
▼
推荐阅读
品界刘琦 X 尹嘉新作 | 以空间之形,见证魅力诞生
陶罡作品 | 黄山 X 300㎡新概念住房结构,链接亲情的纽带
林璐作品 | 浙江 X 靡靡深海梵音,吟唱空间美学
客服
消息
收藏
下载
最近























