查看完整案例


收藏

下载
楼盘名称:安贞西里
案例户型:2居
案例面积:60㎡
案例风格:轻奢
设计说明:
这是一套80年代老小区、带着标准的80年代的建筑特点,厨房卫生间比较小。客户是美女医生在安贞医院上班,平时自己一人居住,原始2居室改成1室2厅,要求干湿分离,整体定位轻奢风格。
MY LIFE
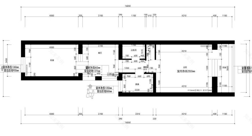
原始户型图
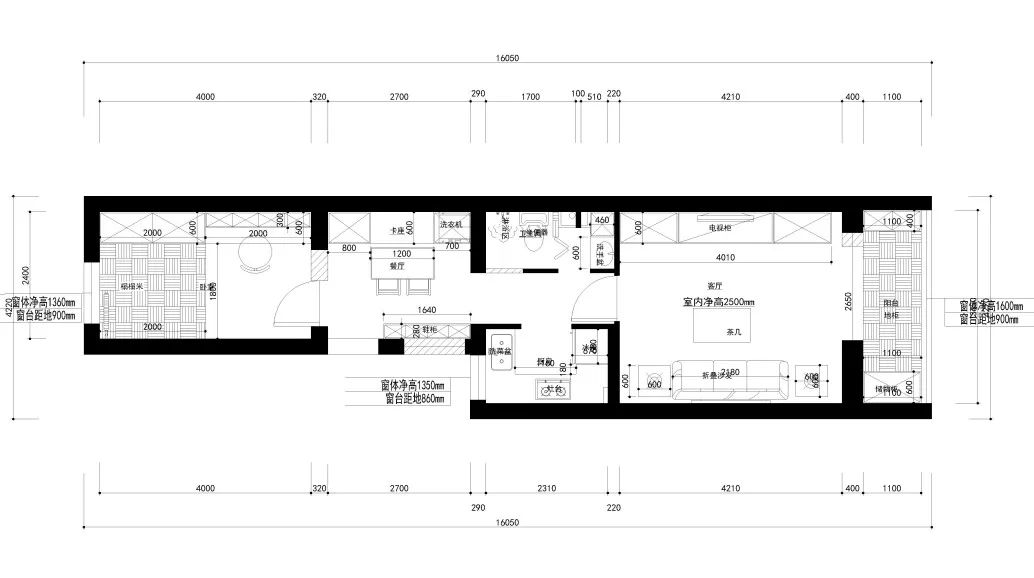
改造户型
改造解析:
厨房改成开放式,门要扩大,卫生间门要封闭,从侧面开门,改成干湿分离,客厅窗台拆除,卧室改成平开门。
案例前后对比图
客厅
解析:
改造前门连窗把客厅和阳台分开,从视觉上看采光差一些,空间显得小一些,改造后客厅采光更好,视野更开阔,整体都采用了灰色地砖,灰色墙漆,搭配上舒适的轻奢风格家具和软装,营造出惬意悠闲的居住氛围。
卧室
解析:
改造前东西较多,储物空间少,空间显得比较拥挤 , 改造后整体做榻榻米,衣柜书柜整体结合,比较省空间,好储物,空间利用率高,墙面用灰色墙漆,贴合空间主任的沉稳个性,简约而不简单。
厨房
解析:
改造前老房管道比较多,比较乱,整体储物空间较少。改造之后储物空间较多收纳整齐,整个厨房显得亮堂。
卫生间
解析:
改造前洗手, 淋浴都在一个空间,改造后干湿分离设计,方便使用省空间,侧面做了边柜方便储物,能够很好满足收纳的需求,镜子用圆形,龙头设置在墙面,比价省空间好用好打理。改造前门连窗把客厅和阳台分开,从视觉上看采光差一些,空间显得小一些,改造后客厅采光更好,视野更开阔,整体都采用了灰色地砖,灰色墙漆,搭配上舒适的轻奢风格家具和软装,营造出惬意悠闲的居住氛围。
实景实拍
客厅
窗台拆除客厅采光更好,让视野更开阔,整体都采用了灰色地砖,灰色墙漆,搭配上舒适的轻奢风格家具和软装,营造出惬意悠闲的居住氛围。
餐厅
金色艺术感吊灯与灰色墙让整个餐厅变得更有情调。
卧室
主卧整体做榻榻米,衣柜书柜整体结合,比较省空间,好储物,空间利用率高,墙面用灰色墙漆,贴合空间主人的沉稳个性,简约而不简单。
厨房
厨房,鱼肚白墙砖+白色柜子的搭配平静而温和,整体干净整洁不失格调。
卫生间
干湿分离设计,方便使用省空间。侧面做了边柜方便储物,能够很好满足收纳的需求。镜子用圆形, 龙头设置在墙面,比较省空间好用好打理。
重要通知
海尔智家·创邸设计(海尔智家001号店)在本月22号盛装开业,进店有
精美小礼品
拿哦🎁,可别忘记了哦!
“2021年会更好的”
“点个关注,我们为您分享更多装修故事”
客服
消息
收藏
下载
最近



















