查看完整案例


收藏

下载
楼盘名称:三环新城
案例户型:三居两厅一厨两卫
案例面积:92㎡
案例风格:轻奢
设计师:杨阳
居住需求:
三居,主卧,儿童房,独立书房、卫生间干湿分离,功能区划分,最大化利用空间。
设计说明:
生活品质的提升,促使我们去追寻更深层的享受——舒适、优雅的生活态度,同时不失品位和高贵,这就是“轻奢风格”设计理念。
MY LIFE
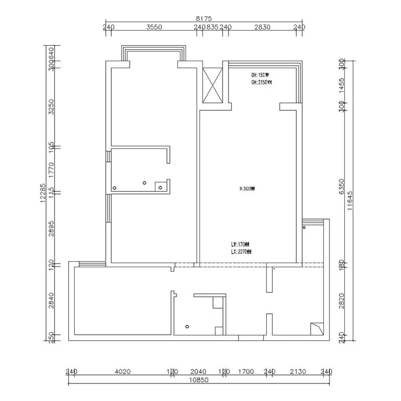
原始户型图
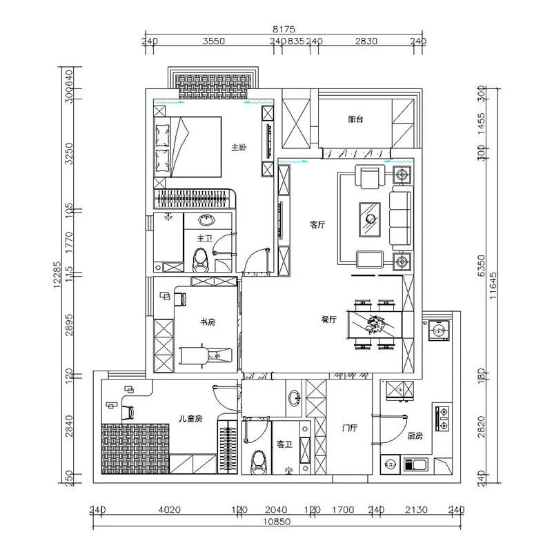
改造户型图
案例前后对比图
客厅
解析:
原卧室墙拆除,作为书房,书房做移门,采光和通风性更好,客餐厅空间扩大,空间感更强,更多空间加入轻奢元素。
餐厅
解析:
屏风隔断划分客餐厅区域,使用上和整个空间动线更为流畅。
卧室
解析:
简单的造型设计,配上轻奢系软装,简洁而不单一,阳台定制,增加休闲区与储物。
儿童房
解析:
客户孩子是女孩喜欢粉色,儿童房以粉色为基调,并且做了拼色主题墙,空间气氛活跃不单一,书桌书柜也给孩子更好的学习空间。
实景实拍
客厅
餐厅
卧室
厨房
卫生间
“2021年会更好的”
“点个关注,为您分享我的更多故事”
客服
消息
收藏
下载
最近


















