查看完整案例


收藏

下载
中国 / 上海 / 服装店
#
艾舍尔设计
#
○
巨鹿路东起金陵西路西至常熟路,全长 2290 米,两侧花园洋房和海派新式里弄林立,是上海极具代表性的历史风貌区;路边法国梧桐绿荫如盖,虽毗邻静安寺的繁华商圈,却独享一方宁静。
○
R130 买手店位于巨鹿路西段 845 弄 5 号,
银灰色的建筑外观低调温和,与周边环境融合在一起;
A3 VISION 艾舍尔设计团队和 R130 花了两年多的时间,
将这幢 4 层老房子打磨成一个当代艺术、时尚和设计的融合空间。
△区域图
1. 老房子的改造
Renovation of old houses
△施工过程
由于年代久远,加上南方的潮湿和蚁蛀,原来的木楼梯和楼板已无法使用,内部结构也因不同时期的改造而杂乱无序。设计团队经过多次商讨,最终决定拆除原有结构,重新构筑内部框架:在约 4 x 20 米的长方形基地内,由 20x20cm 方形 H 型钢。将整个结构编织成三维几何网格,这个支撑体系的金属框架成了这座老房子的新生骨骼。同保持原封不动的外部建筑相比,室内空间则被彻底改造,具有强烈现代风格的银灰色空间与历史街区并存。
▽《结构的时态》艺术展,艺术家王嶺带来具有粗野主义创作风格的家具作品(中)
△《结构的时态》艺术展,当代漆装置艺术家孙文佳以作品诠释时间的印记(左)
空间氛围的营造
The creation of space atmosphere
△开放的楼梯与外墙形成一个狭小垂直峡谷。
建筑入口及一楼的地面使用了花岗岩和广场砖这两种常用于户外的材料,并一直延伸至南侧的院子,有意无意地串联并入街道小巷,融入城市肌理之中。
站立于一楼中庭公共区域,视线向上移,原本将各楼层连接起来的金属楼梯,被中间的墙体分割成私密与开放两个部分,开放的楼梯与外墙又形成一个狭小垂直峡谷,一直向上延伸至屋顶,阳光穿过采光井投入室内,即使在建筑底部,也能感受到一天之内光线的变化。
#03
序列之美,冷静而有力
The beauty of sequence, calm and powerful
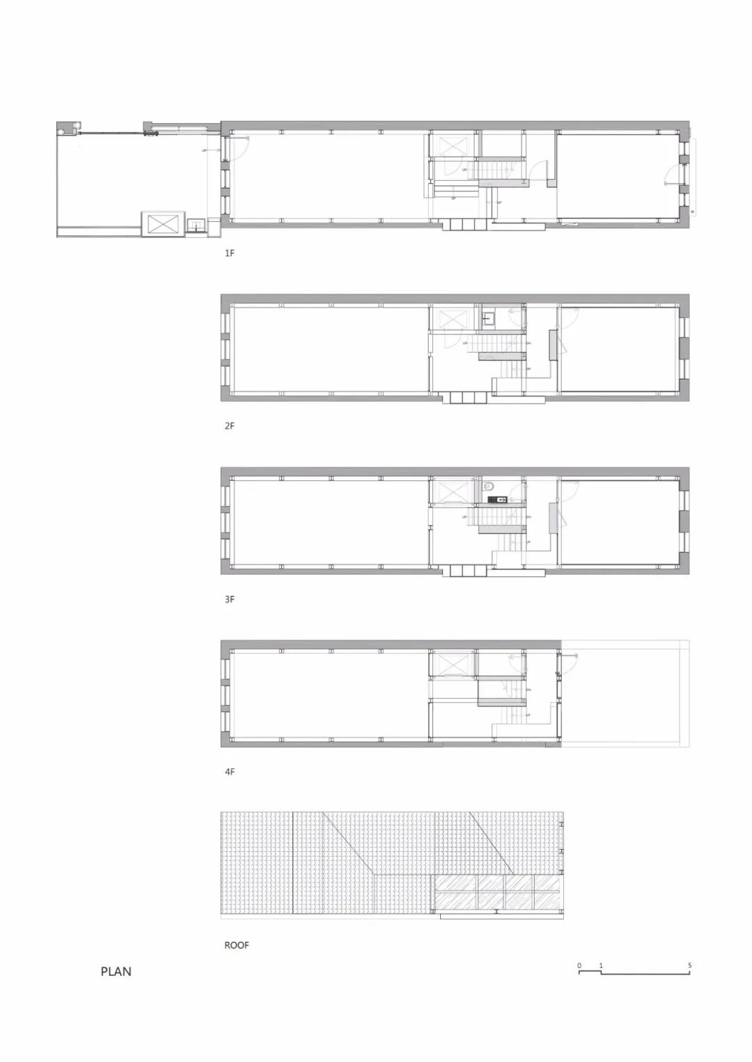
楼梯、储物、设备等集中在中间,做为垂直交通和功能空间。房间分布在南北两侧,向中区通透与开放,同时在立面上保持错层关系。四层楼的正方形和长方形在立面上交错上升,详尽传达了内部空间序列组合形态。
△材料研究
△银灰色调统一了立面和顶面,保持了视觉上的一致性。在细微处,无论是顶棚上与柱同宽的钢构、墙面未加装饰的原色石膏板拼接,还是地面铺装的地板与石材的规格,都在比例、尺度上进行了推敲,这种摒弃装饰的现代主义语言,呈现出一种序列的美感,冷静而有力度。
△《结构的时态》艺术展,陶瓷艺术家张敏以陶瓷材料为媒呈现艺术的解构与重塑(中前)
△《签名时尚:安特卫普新生力量》展览
△
《签名时尚:安特卫普新生力量》展览
4 安特卫普精神的延续 The continuation of Antwerpen’s spirit
行至四楼,映入眼帘的是一个全白色的空间,从二手市场淘来的木柜、门板、沙发等不同年代的旧家具,被重新刷白,还原了 Maison Martin Margiela 初创时期的店铺场景。
△全白色的空间
北侧的顶层露台让空间从室内延伸到室外,同时将弄堂巷道生活的画幅延伸至屋顶,俯瞰巨鹿路,穿行的汽车,漫步的路人,茂密的法国梧桐,构成了一部长镜头电影。
▲模型图
▲立面图
▲平面图
Project Information
项目名称:R130 巨鹿路店
项目地址:上海巨鹿路 845 弄 5 号
建筑面积:300 平方米
设计公司:艾舍尔设计
设计主持:王志峰
设计管理:范进
设计团队:谢佳秀、裴泳翰
项目时间:2020 年 12 月-2022 年 11 月
施工单位:上海德茂建设工程有限公司
主要用材:H 型钢、镀锌板、金属漆、石膏板、橡木地板
About Company
艾舍尔设计,创立于 2008 年,是一支具有探索精神,致力实现设计概念的团队。长期专注商业空间领域,为包括时尚、办公、餐饮、酒店等多种形态的空间提供室内设计服务。在设计实践过程中,基于真实和人文主义价值观,以永恒的美学及秉承克制和精致的现代主义原则,并在此基础上寻求突破与创新,创造人们感到舒适并经得起时间考验的空间。
*投稿须知
投稿方式:
资料要求:
1.项目实景图不得少于 20 张(图片小于 10M)
3.项目需提供相应的项目信息
(项目名称、面积、竣工时间、设计团队、主要材料等)
4.设计师以及设计公司介绍(设计师形象照、设计公司 LOGO 与简介)
5.头条位置的作品必须为首发项目,请在邮件内标明
首发
6.投稿务必留下
,方便后续宣发沟通
发布要点:
1、预览项目后,告知可否刊发和具体发布日期
2、排版后,最迟刊发日期前与投稿方预览、确认等
3、周一到周五 18:00 进行推送
15010580132
客服
消息
收藏
下载
最近



































