查看完整案例


收藏

下载
“你从未看到森林里的一草一木,却感知身处林间。”
——伊振华
对于一家拥有20多年品牌积淀的餐饮品牌,重新升级改造后的空间承载了很多新与旧的融合,变与不变的博弈。
其中最难的部分是跨越年龄、性别和阶层,打造属于每个人的
餐厅
。
“小丑的天堂”是
设计师
伊振华反复打磨出的设计理念,平等、开放的就餐空间,没有商业化的年龄定位局限,来到这里每个人都可以卸下社会角色的防备,除去仪式感和形式感,像舞台上彻底放松、肆意释放的小丑一般,表达真我的快乐。
设计师伊振华把小丑与舞台的关系提炼并再次演绎,少一分则不够尽兴,多一分则过于散漫。
原始平面并不规范,进入具有欢迎仪式的大门,来到童话小镇一般的“花海广场”,左侧具有最好视野和景观的部分是“梦幻森林”,转向右侧,散台区被集中打造成“童话小镇”,穿过一段“小径”,视野豁然开朗,木、石造型包房隐于“林间”。
对公共空间面积规划极其“奢侈”,花海广场和通往二楼的
楼梯
十足宽敞,为消费者带来极好体验。
楼梯背景墙是一整面海贼王模型的天下,收藏展示最心爱的玩具,这是一种追求幸福感的能力,来自日常最平凡的快乐。
“追寻内心的那份童真”是设计师希望赋予每个客人的内心感受,希望人们在这个童话般的“小丑的天堂”里忘掉烦恼,寻找属于自己的那份欢乐的记忆。
在所有的空间参差植入抽象的人物或动物,尽力去展现自然界中,生命之间融合共生的状态。
在规划动线之上加入场景的营造,并在细节上展现品质感,设计的完整性最终回馈给消费者的是代入感极强的森林童话世界,让人们以美食的名义相聚。
为儿时承载味蕾、陪伴成长的餐厅赋予全新的定义与理念,注入新的生命力,同时也是设计师伊振华对它的感情回应。
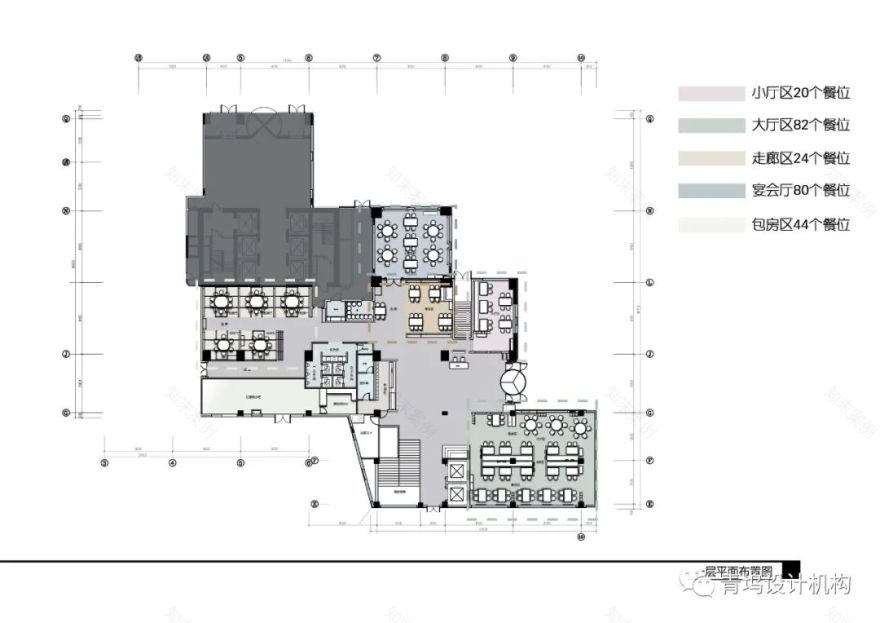
▽平面图
项目信息
项目名称:红樱桃·欢乐餐厅
项目地址:
沈阳
项目面积:2200平米
设计公司:天晟设计机构
设 计 师:伊振华
设计团队:张晓彤 李浩 孟令军
完工时间:2019年6月
主要材料:铝板、硅藻泥、木材、瓷砖
摄 影:大白
撰 文:丰美
伊振华
东北设计领军人物
青坞建筑设计(沈阳)有限公司 设计总监
天晟设计机构 设计总监
作品曾被《中国室内设计年刊》、《辽宁省首届艺术设计展》、《国魂.精英》等国家杂志收录
十间坊中国实战设计大赛2018全国十强设计师
中国光华龙腾(国 科奖社证字第0223号)2019中国设计十大杰出青年百人榜
第十一届中国国际空间设计大赛—2021年度中国建筑装饰设计奖—餐饮空间工程类金奖
第三届CBDA中国空间陈设艺术设计大赛—2020年度中国空间陈设行业最具影响力设计人物
40UNDER40(2018-2021)中国(辽宁)设计杰出青年
2018法国双面神“GPDP AWARD”餐饮空间设计类银奖
红棉奖中国设计奖·2019室内空间设计餐饮类优秀奖
红棉奖中国设计奖·2020室内空间设计餐饮类优秀奖
2019金堂奖年度杰出餐饮空间设计奖
2019金创意“ID.G”国际设计大赛餐饮类铜奖
2020年第八届Hi一Design室内设计大赛“商铺组金奖”
2021年第九届Hi一Design室内设计大赛“商铺组金奖”
2018金外滩奖餐饮空间类入围奖
2021 ID 星级设计榜—最佳设计师指南
上海. HOTELEX 30周年·2021年度杰出餐饮设计师奖
客服
消息
收藏
下载
最近





















