查看完整案例


收藏

下载
项目类型:葡萄酒●生活体验馆
项目位置:惠州·华贸睿臣
项目面积:300㎡
设计机构:誉山设计事务所
设计时间:2020 年
一件艺术品最高成就是什么?有的人或许认为根据拍卖价格决定,有的人会觉得取决于这件艺术品摆放何处,一如凡尔赛宫《蒙娜丽莎》。一座“万人迷”葡萄酒会所,除了散发自身艺术魅力令人陶醉之外,更重要的是设计带动酒与人之间的共鸣。
▲图片取自睿臣酒会活动
# 夜幕下的太阳
项目定位
睿臣 Wine Life 创立于 2020 年,其定位为品牌加盟、创新葡萄酒生活体验馆;以体验式新零售模式打破传统葡萄酒经营模式,运用葡萄酒空间美学、专业的品酒及侍酒服务,推广和传播葡萄酒文化。
项目需求:在这个浮躁的快节奏时代,酒常是桌上的应酬,是人们倍感压力时想到的调剂。而睿臣想创造一所专业的葡萄酒生活体验馆,带你寻找属于自己的“酒”,与之对话一种恬然的生活方式。让灵魂慢下来,感受当下的舒适惬意。
以上均为实景图。平面布局图:▼一层
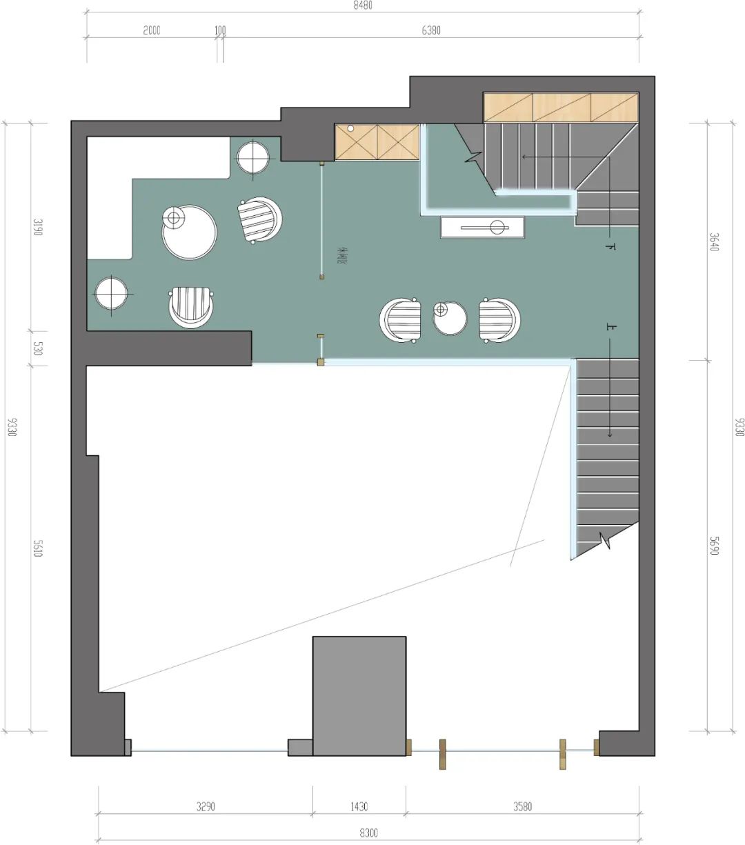
▼二层
▼三层
设计展现·实景
|门面-Facade|
户外高脚吧台格外接地气,让路过的人们想止步观望;推拉窗户&落地玻璃门的双向透明设计一览屋内景观,引人入胜。
|红酒区-
Red wine region
进门以时光廊的姿势引入顾客眼帘,探索不同年代的红酒历史;曲面连成的实木红酒墙,营造出烂漫、灵动的空间氛围,也同时具有未来感。
光影是空间的灵魂。| 私人区域-Private area |
| 包厢 - room |
移步二楼-私域。给身处拥挤闹市的都市人以喘息的空间。|会客室&办公室-Reception room&Office|
三楼作为 VIP 体验区,同时兼顾日常会议集合及办公区域,我们采用了橘色单人座椅搭配灰蓝色背景墙,营造出一种优雅却不失庄重的沉浸式体验,而折叠长岛桌,让空间利用实现最大化。
效果图展示
一楼▼
二楼▼
三楼▼
YUSANDESIGN
对于设计,我们始终坚持以人为本,创造幸福。
以空间之名,承载心之所往。
空间承载着生活,设计更关乎美与人性。
设计咨询
客服
消息
收藏
下载
最近































