查看完整案例


收藏

下载
知名高端中餐品牌新荣记,致力于“食必求真,然后至美”的理念,由大相设计打造出上海BFC金融中心外滩店。餐厅毗邻上海复兴艺术中心,北侧面向黄浦江,让身处繁闹都市的美食老饕和如织游客在用餐的同时,坐揽外滩繁华之景。
设计师蒋建宇认为空间设计如黑白围棋,功能落位如棋局落子,需一步一景,引人入胜。餐厅设计融入了新荣记对三国元素的解读,以古今酒文化为主题,以三国民俗壁画为基调,让人产生“一壶浊酒喜相逢。古今多少事,都付笑谈中”的情绪共情,尽情享受情景化的用餐体验。
PART1
以终为始
“餐饮空间的设计终点就是客户思维,以终为始,在设计当中一切与客户无关的体验,都是无用的。”
初入餐厅,迎面可见窗边佛龛处的关公像,以代表着中华民族传统美德的关圣帝神呼应新荣记使命,也用“待人以仁、处事以智、交友以义”揭示空间情绪。其身后一片外滩繁华之景,赤色雕像成为空间主题的楔子。坐拥黄浦江边绝佳风景的零点区,不同的餐位布局满足各类需求的客户落位。
吧台区玲琅满目的酒瓶,在柔和灯光的衬托下散发出诱人的光泽感,不禁让人看了心生欢喜。
夜色下,来一场美食与美酒带来的欢愉!
PART2
摒弃无用,引景入室
“为摒弃无用的装饰,集中所有精力引景入室,于是景致源头的餐饮档口和酒吧区就成为了空间的重点。”
场所左侧两个划分出一间红酒房作为存酒区,客户可在此隅品鉴美酒。
仿古格栅的黄铜屏风呈现半透的效果,以小空间作为大空间的收束,又可从小空间中形成视觉延伸,创造出独特的私密氛围,外侧是江边美景,内侧是觥筹交错,朦胧优雅,传统与现代在此间融合。
相较于酒房的私密性,威士忌吧台则呈现开放的状态,深色背景下,狭长的酒品展示台,半明半暗台面,光线穿过整面酒品墙,最终汇集到玻璃台面处,绘出一幅如琉璃般晶莹,似雕花般琳琅的长卷。
过渡区斜切墙面引导食客经过急剧收束的通道到达大厅,视野先闭合再开发,柳暗花明,放大大厅空间的开阔感。
运用山水画中的平远观法,使长条落地窗正好引入江景,横向排布的餐桌为第一层、窗外树木为中间层、CBD高楼为外层,层层推远,模糊了空间的界面,扩宽了视野。
餐位和包厢以体验感为主导,以色彩明显分割,使客人的行进动线、送餐动线,服务动线完全分离。
PART3
解读传统与当代
艺术家作品
大厅内的壁画是整个场所色调的灵感之眼,点睛之笔。艺术家将传统的三国故事中两大高潮——三英战吕布和五虎上将重新绘制,既保留民俗画的质朴率真,又体现国士之风兄弟情义以延续空间情感。设计师则从中提取五行设色,将这些情感色彩语言应用到空间里。
室内每一张餐桌摆放着代表新荣记标志的琉璃麒麟摆件,为餐厅增添了几分趣味。
墨色、红色、铜色……自由大胆的配色,充满情景感的传统艺术摆件,营造出雅俗共赏的空间氛围,强化了空间记忆,引发食客遐思。
宴会厅兼具多重功能,除了承担日常美食品鉴会的空间角色,也可容纳多人多主题传统宴会,在这里,上海这座城市和新荣记这间品牌餐厅互相成就,延续着传统与当代的空间对话。
窗外的金属外立面作为室外风景和餐厅的“人造屏风”,增强了VIP包厢的隐秘性。
用餐之旅的尾端是传统的lounge bar时刻,食客会选择在威士忌吧小酌和交流,“莫道千古人物风流事,笑谈俗世讪胡天”这一杯新与旧,这一桌兴和荣,都在此间举起、放下。
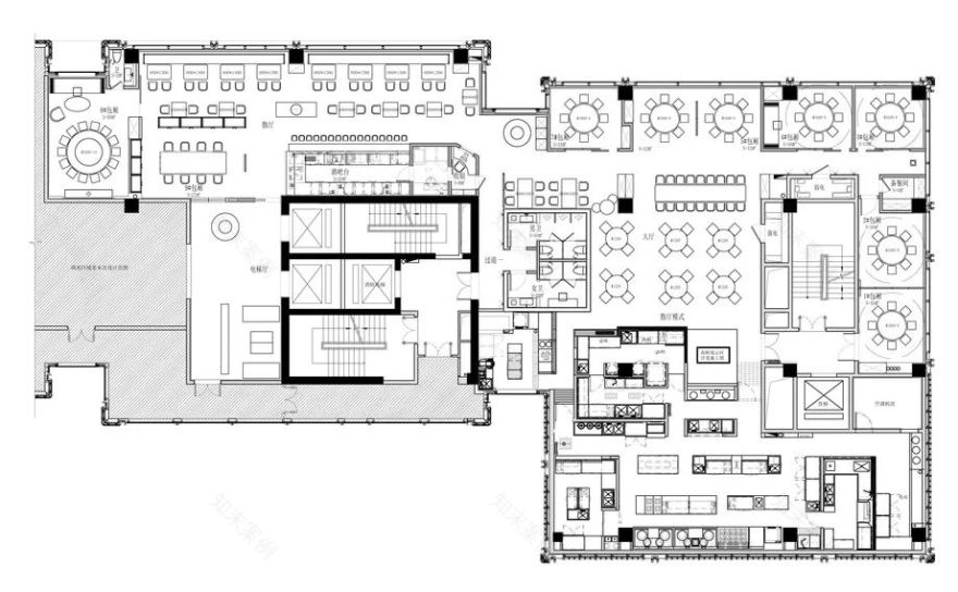
总平面布置图
【项目信息】
项目名称:新荣记上海BFC外滩店
设计单位:大相设计
设计团队:蒋建宇、郑小华、秦越、楼婷、柳永良
项目面积:850㎡
摄影:贾方
关于设计团队
大相设计1999年起步于杭州,团队专注于林泉美学语境下的精品餐厅、酒店、文化性建筑的空间设计及陈设设计的实践和研究,追求东方文化背景下的空间意境表达,强调空间与环境的交融、与商业的平衡。设计理念:因借林泉、师法自然、回归、沉静安宁。
关于设计师
蒋建宇
大相设计 负责人
中国美术学院 艺术硕士
荣誉:英国第18届《安德鲁马丁国际室内设计年度大奖》;中国国际设计艺术博览会2009年度资深设计师;金堂奖2013年度:十佳餐饮空间设计、 十佳酒店空间设计、十佳别墅设计;2014年度北京及上海最佳餐厅之一。
监制:
Grace
统筹:
小P老师
策划
:
佳佳
编排:
倩仪
校对:
O
livia
、Yanina、Ju_97
案例来源
:
大相设计
客服
消息
收藏
下载
最近





























