查看完整案例


收藏

下载
不错过每天的灵感来源
△ 项目展示
关 于 项 目
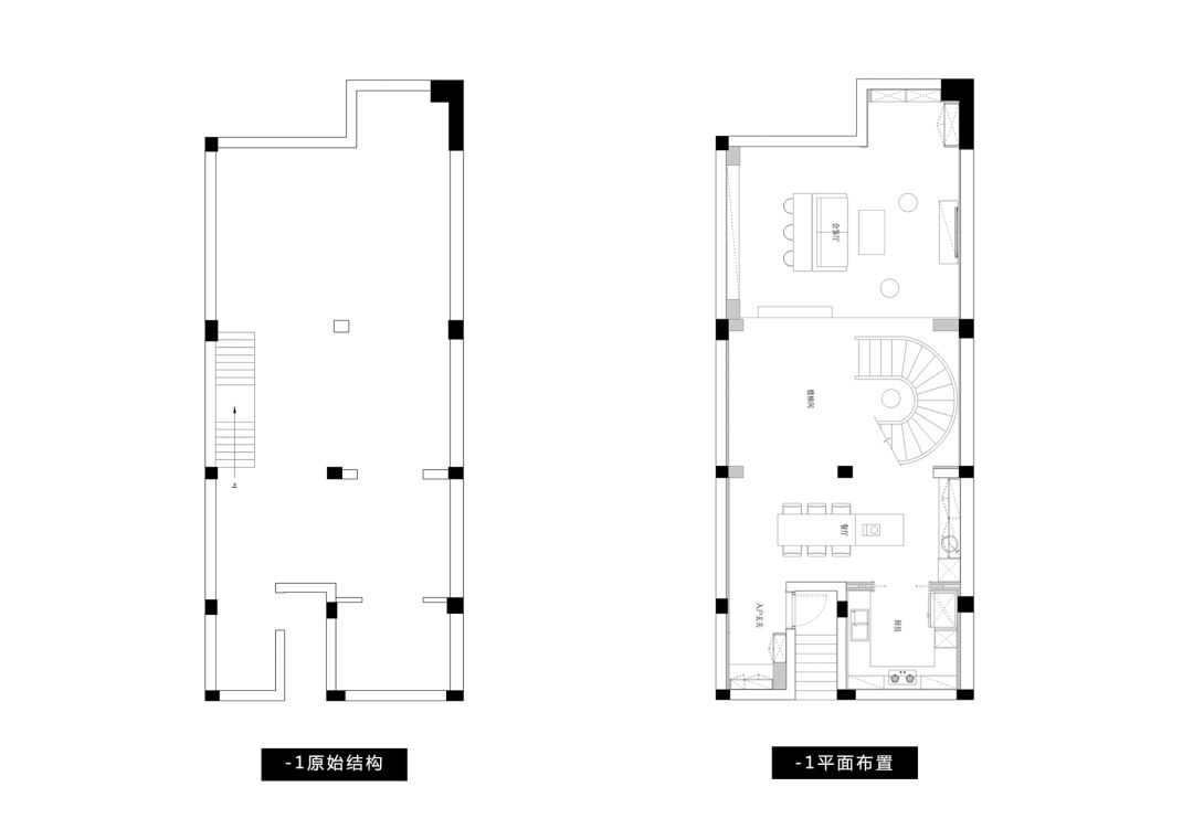
在现场进行勘测时,设计师发现了原本结构上存在的一些硬伤,整个地下室是密闭的、没有采光和通风,楼梯的位置设定局促,而且是单跑型,对于这么一套排屋的体量来说,这些都是要考虑的重心点。
所以,只有将整体结构布局理顺,调整到一个新的空间秩序后,其他功能划分也会自然而然的产生。
客 厅
一楼是亲子互动区,这里更像是一种温暖、治愈的生活仪式,我们希望能在简约中融入其他的元素,喜欢现代简约,是因为它能带给空间纯碎,但不需要它的机械感,所以在家具软装的选择上,偏向中古风,使家里的每一处细节都能有时间沉淀。
客厅沙发是围坐式的摆放,很随性,没有特定的位置,每件家具都有种20世纪中期的Mid-Century Modern Design的感觉,自由的生活模式即将开始。
光影随着时间的推移交错变换,丰富了空间的表情,为轻松自在的空间塑造出独特气质。
两种不同元素的混搭使空间如同会呼吸一般,呈现出复古感与现代美两种迷人的风采。
考虑到一楼较高的层高及整体的风格调性,我们选择了悬挂式的真火壁炉来协调空间的比例,同时提升一家人围坐在一起的氛围感。
地 下 室
地下室的设计很重要,因为浙江梅雨季节比较多,如果没有合理解决通风及采光的问题,它的潮气湿度会重,整个舒适度会降低很多,到后期往往变成不大使用的空间。
我们考虑将原本的楼梯位,改造成一楼与地下室的关联点,这块的设计不仅解决了整个地下室的通风流动性,也将一楼的自然采光引入,同时它还能带来一定的生活趣味。
钢架结构的酒柜,将功能与艺术结合,没有传统柜板的厚重,经过顶面的灯带与瓶身的折射,不均匀的光线撒落,使酒瓶的透光度不一样,像艺术品一般,悬浮在空中。
在中空部分,由一楼的顶面向下垂挂线性吊灯,光源正反面,明暗相交的光影,让空间犹如景观一般有着连续沉浸的体验。
考虑到在家吃饭的概率很低,我们将厨房、餐厅移到地下室,将整个地下室变成生活娱乐区。
楼 梯
这套房子的最大特色是楼梯改造部分,调整后的位置,是在整个家的中心点,无论去家里的哪个位置都是最便捷的。
我们认为楼梯不仅仅是上下楼的一个工具,可以通过结构造型,使它成为居室内的亮点,同时丰富空间环境。
女儿+儿子房
我们为两位小朋友搭配出不同的色彩主题,构建属于他们的童话世界。但与传统儿童房不同的是,我们摈弃了那些有着特定年龄局限的家具配饰,而选择了同样简洁大方的空间格局,让家,可以陪伴孩子一起成长!
女孩房以雅致的浅灰色打底,柔美的粉色窗帘,恰到好处的饰品轻柔地点拨,可爱的粉色浴室,氤氲出一个甜美梦幻的少女世界。
男孩房以米灰色作为基底色,温暖的色彩营造出舒适和休息的氛围,同时利用一些抽象卡通元素点缀,丰富儿童的想象力。
变成孩子的记忆盒子与梦想乐园。
主 卧
主卧以套房的形式,将各个功能区连接(起居室、睡眠区、衣帽间、卫生间等),纯白的主色调与质朴的木材带来清新自然的感受,
细节由立面至顶面延伸
,搭配定制的软装陈设
,同时将窗景引入,使起居生活与自然紧密联系,让净、简、素的基底更具活力与生机。
卫 生 间
卫生间选用了大理石铺设,水滴状的吊灯,柔和的光源设计让这里充满了雅致的艺术感。
花 园
后院是一个花园,让孩子与自然更加亲密的接触。天气好的时候,一家人会泡上一壶花茶,到院子里看看书,聊聊天。
足不出户也能欣赏到大自然中最绚烂的色彩。
全案设计丨Design:
辰佑设计
项目性质丨Project Nature:
个性全案全包
项目地址丨Project Address:
湖州 ·
奥园壹号
面积丨Square Meters:
450平米
主材丨Main Material:
乳胶漆、成品木饰面、整屋定制家具
摄影丨Photograph:
吴昌乐
△ 平面图
整理:冷清风
新媒体编辑:汪一旸
版式设计:Panda
图片及资料鸣谢:辰佑设计
以上内容由企鹅设计整理制作
往 期 回 顾
金腾奖武汉丨郑东贤即将开讲:虚实之间 东方重构
FAD南京 | 孟也&赖亚楠联袂开讲:什么是美?如何审美和创造美?
李想 x 董璇 联手跨界这是什么神仙操作?!
抢鲜M&O有福利丨如何玩转软装设计师的“弹药库”
企鹅设计
家居丨设计丨建筑丨艺术
给设计师输送灵感来源
客服
消息
收藏
下载
最近





















































