查看完整案例


收藏

下载
旗盛 新作
BANNER
NewCase
- Address:绿城新兴玉园
- Project Type:平层
- Project Style : 现代
- Area:140㎡
- Designer:李通
- 空间呈现 Spatial Presentation
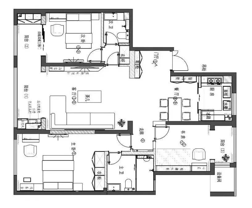
平面布局 Plane layout
简约从外,温暖从心。客厅空间抛弃多余复杂的色彩,以白色为原点,运用材质光影的变化,注入生活的温情,打造细腻动人的治愈系情调。以简洁而高级的设计手法,塑造闲适的生活意境,最大的保留自然光线,给予空间轻盈通透的品质感。
色调的碰撞,线条的交错,不同材质之间组成了一幅令人眼前一亮的画面。L 型的沙发与空间相适应,搭配色彩各异的抱枕,在保证使用功能完善的同时,也让空间揉合了时尚与独特。
以极简的色调传递家的温度,低调而不失优雅。餐桌靠墙设置,以节省餐厅占地空间。清新自然的餐椅搭配,浓郁的自然气息,让用餐环境变得更轻松自在。不管是一个人的平常,还是一群人的狂欢,在这一流动的空间里都能找到答案。
主卧的整体配色更是贴近自然,使人不知不觉中享受着放松的感受。阳光投入室内,窗前的休闲椅,别致的造型设计,满足人体工学的设计,坐于窗前,感受着窗外的四季变化。主案设计师 Chief designer
李通
从业 6 年
毕业于建筑科技大学环境艺术专业
-所获荣誉-
中国室内装饰装饰协会注册设计师
中国建筑学会室内设计分会会员
2015 阿姆瑞特杯室内设计大奖赛二等奖
2016 年中国设计设计大奖赛优秀奖
2017 年筑巢奖优秀作品奖
2018 年中国室内设计年鉴入围作品奖
-设计理念-
设计源于生活,生活因设计去改变!成就空间和谐,让设计物有所值,让细节缔造完美!
-代表作品-
金地湖城大境,龙湖花千树,海德堡,神木和谐家园,紫汀苑,曲江明珠……
客服
消息
收藏
下载
最近











