查看完整案例


收藏

下载
旗盛 新作
BANNER
NewCase
- Address:绿城新兴玉园
- Project Type:平层
- Project Style:现代
- Area:270㎡
- Designer:张骞
- 空间呈现
- Spatial Presentation
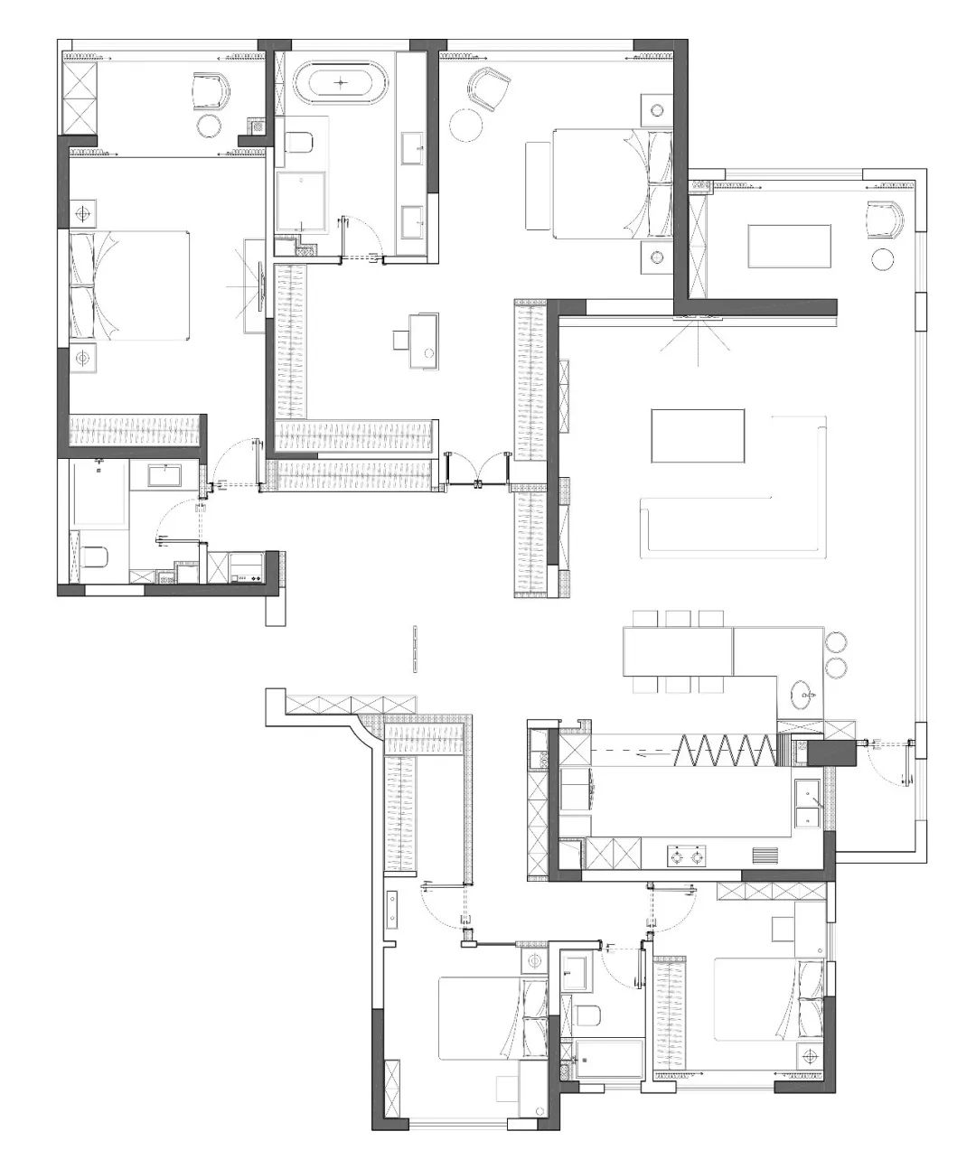
平面布局 First floor layout plan
玄关旁的一个嵌入式的鞋柜,顶上的天花嵌入暗藏灯带,搭配哑光灰色地面砖,周围的木制墙面饰板,整体空间显得简洁大方自然,回家一进门就感受到轻松自然的仪式感。
极简的现代风格客厅,将无主灯的设计延伸到整个客厅空间。“现代”的概念贯穿始终,玻璃、布艺等材质在室内的点缀,超级大而又采光良好视野宽阔的落地窗,让坐在客厅里的人,莫名就会自动放下内心的重担。
客餐厅一体化设计,空间宽敞明亮。餐厅以展示陈列柜为侧景,享有收藏饰品烘托出雅致意境。客厅地面通铺深灰色地板,家具与墙面配置跳脱制式常规,为空间增添了更多趣味的元素,让整体空间看起来一目了然。
主卧和客厅简约风格相呼应,搭配木质与亚麻的自然材质,既有侘寂之美又有温质流动,构建出了一个具有自然气息的空间。看着同样令人舒服无比,大方简洁、清雅精致又极富现代感,便是对这个卧室最好的诠释。
空间保持着大男孩活泼的氛围。蓝色系的装修设计有利于从小培养孩子冷静、清醒的头脑和意识。视野广阔的落地窗为室内带来通透明亮的视觉感受,搭配了大量的简约元素,以最简单的方式创造出温暖与舒适。
女孩们恬静,色彩倾向上偏向于甜美浪漫的色彩。淡粉色的背景墙非常适合女孩子,凸显了女孩子温柔如水的一面,将房间打造成地地道道的公主房,将现代风格的美感在此升华到另外一个层次。
卫生间灰色系列的瓷砖,搭配白色洁具与黑色五金挂件,简单实用又耐看。还加装的藏光设计,让卫生间看起来层次分明,显得格外的宽敞明亮。
主案设计师
Chief designer
张骞
从业 9 年
2007-2011 年就读于西安美术学院环艺系
2011 年于深圳市弘立高装饰设计工程有限公司
2012-至今工作于西安市旗盛装饰设计工程有限公司
-所获荣誉-
荣获 2012 年西安市室内设计行业最佳新人奖
荣获 2013 年“筑巢奖”复式类优秀创意奖
荣获 2014 年“松下杯”优秀设计奖
荣获 2105 年“三星杯”设计银奖
2016 年“逸舍网”评为逸.人物
荣获 2016 年“京瓷杯”最优秀设计奖
荣获 2017 年“锋尚杯”最佳空间布局奖
荣获 2108 年度亚太设计师大赛优秀奖
荣获 2109 年度广州设计周新锐奖
-设计理念-
擅长“听”比擅长“说”更重要
-擅长风格领域-
擅长风格:现代、极简、港式、现代法式、新中式
擅长领域:将现代与传统元素结合
客服
消息
收藏
下载
最近


















